ГОСТ 34986-2023 Тракторы сельскохозяйственные и лесохозяйственные. Утилизация. Порядок проведения
ГОСТ
Скачать ГОСТ в PDF или DOC бесплатно
Основная информация
Обозначение:
ГОСТ 34986-2023
Статус:
Действует
Тип:
ГОСТ
Название русское:
Тракторы сельскохозяйственные и лесохозяйственные. Утилизация. Порядок проведения
Название английское:
Agricultural and forestry tractors. Disposal. Procedure
Даты и сроки
Дата регистрации:
08-31-23
Дата издания:
10-17-23
Дата введения в действие:
01-01-24
Дата завершения срока действия:
-
Применение и описание
Область и условия применения:
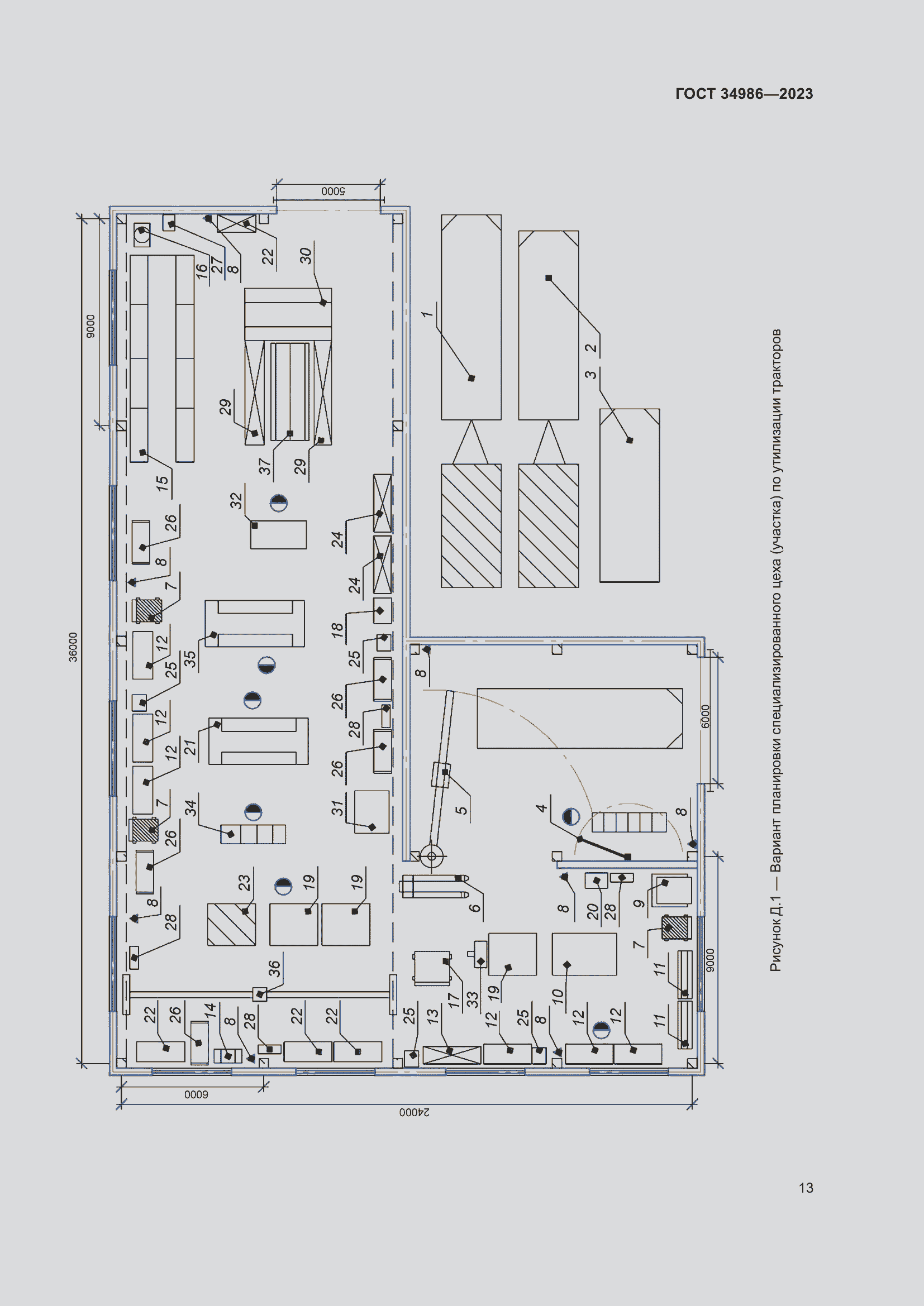
Настоящий стандарт распространяется на колесные и гусеничные сельскохозяйственные и лесохозяйственные тракторы (далее - тракторы), и их сборочные единицы, устанавливает требования к техническому состоянию тракторов при сдаче их в утилизацию и регламентирует взаимоотношения между участниками системы утилизации тракторов - специализированными предприятиями и потребителями
Связи и замены
Заменяющий:
-
Описание стандарта
ГОСТ 34986-2023 Тракторы сельскохозяйственные и лесохозяйственные. Утилизация. Порядок проведения
Страницы стандарта























