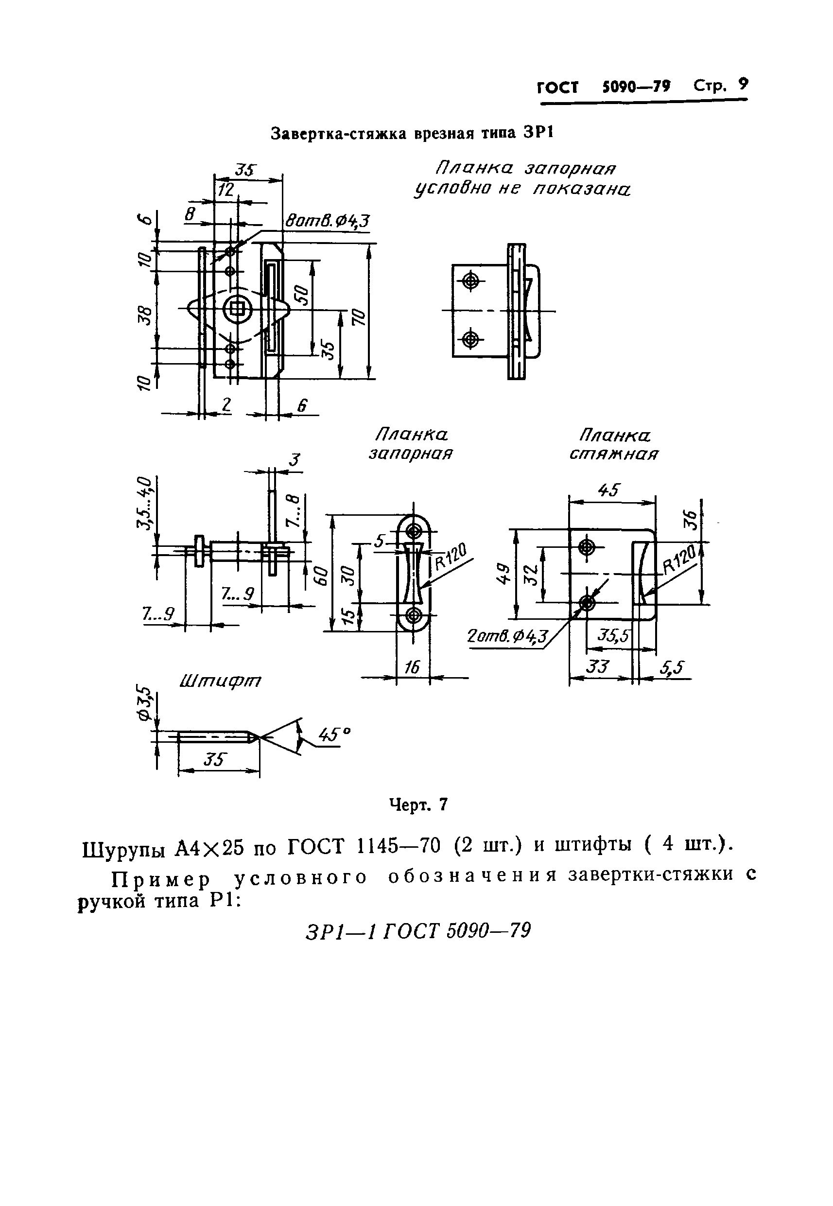
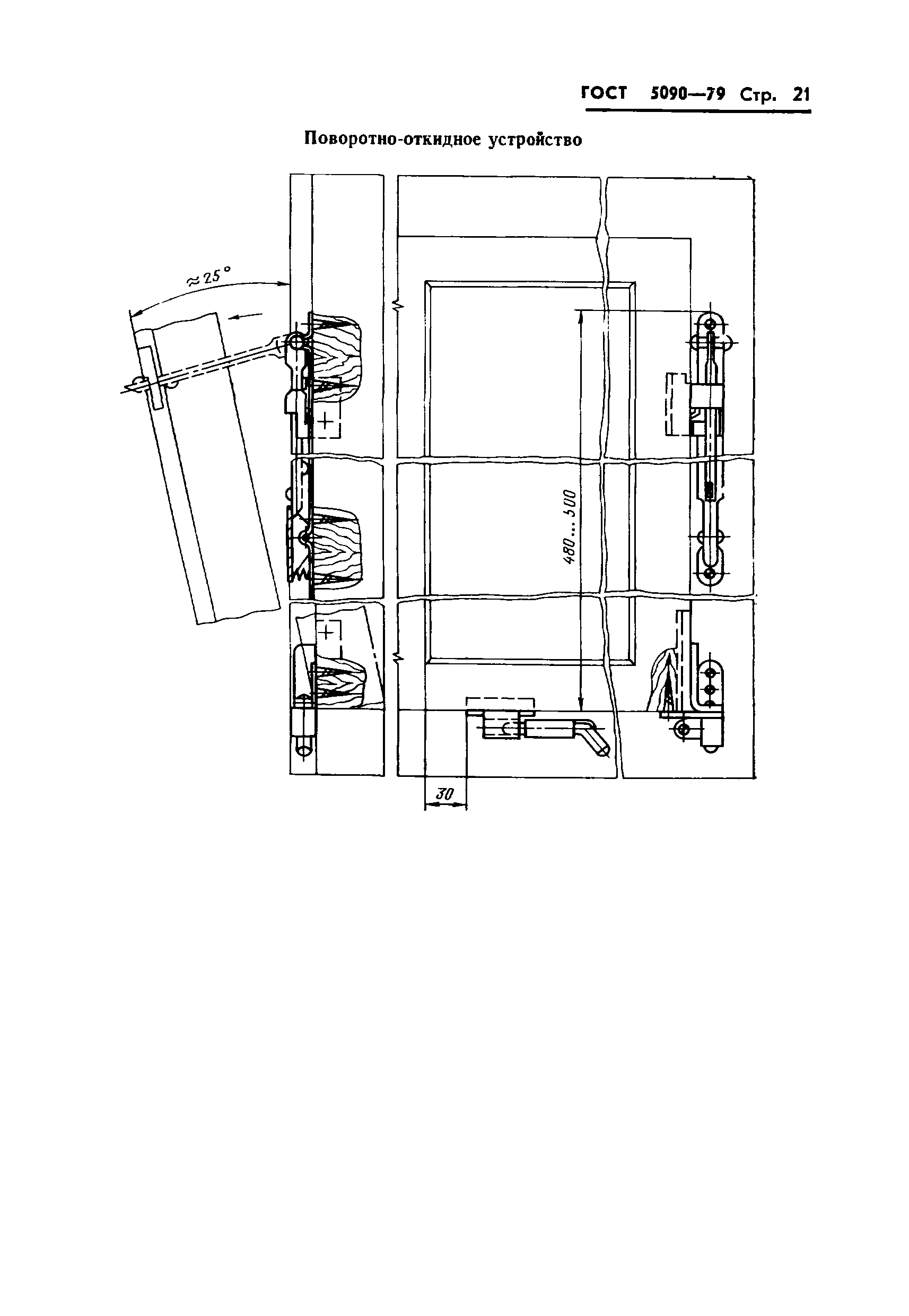
ГОСТ 5090-79 Приборы для окон и дверей запирающие. Типы и основные размеры
ГОСТ
Основная информация
Обозначение:
ГОСТ 5090-79
Статус:
утратил силу в РФ
Тип:
ГОСТ
Название русское:
Приборы для окон и дверей запирающие. Типы и основные размеры
Даты и сроки
Дата введения в действие:
01-01-80
Описание стандарта
ГОСТ 5090-79 Приборы для окон и дверей запирающие. Типы и основные размеры
Страницы стандарта


























