ГОСТ 7890-93 Краны мостовые однобалочные подвесные. Технические условия
ГОСТ
Скачать ГОСТ в PDF или DOC бесплатно
Основная информация
Обозначение:
ГОСТ 7890-93
Статус:
Заменен
Тип:
ГОСТ
Название русское:
Краны мостовые однобалочные подвесные. Технические условия
Название английское:
Travelling single-girder suspended cranes. Specifications
Даты и сроки
Дата регистрации:
10-21-93
Дата издания:
11-01-06
Дата введения в действие:
01-01-95
Дата завершения срока действия:
06-01-20
Применение и описание
Область и условия применения:
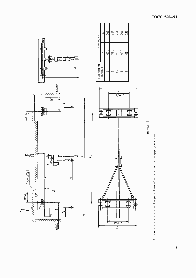
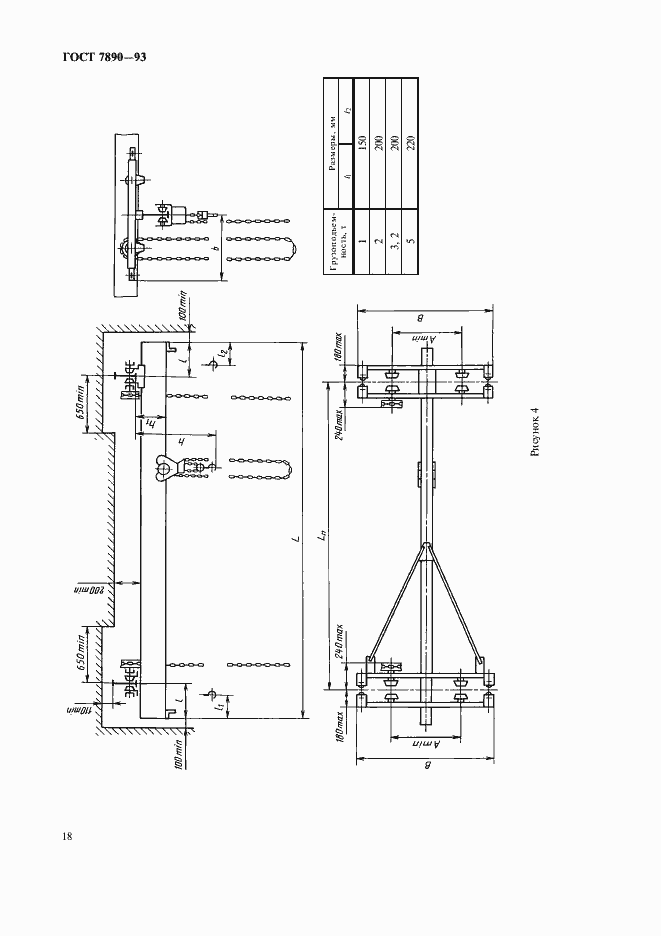
Настоящий стандарт распространяется на мостовые электрические однобалочные подвесные краны группы режима работы 3К с электрической талью и электрическим механизмом передвижения, управляемые с пола, грузоподъемностью от 1,0 до 10 т, а также на краны мостовые ручные однобалочные подвесные блочно-модульной конструкции, унифицированные с электрическими, с ручным приводом механизма подъема и передвижения, группы режима работы 1К, грузоподъемностью от 1 до 5 т. Стандарт не распространяется на краны, предназначенные для эксплуатации во взрывоопасных и пожароопасных средах, в помещениях с парами кислот и щелочей, концентрации которых вызывают разрушение электрической изоляции, для транспортирования расплавленного и раскаленного металла, ядовитых веществ
Связи и замены
Заменяющий:
ГОСТ 34589-2019
Взамен:
ГОСТ 7890-84
Описание стандарта
ГОСТ 7890-93 Краны мостовые однобалочные подвесные. Технические условия
Страницы стандарта






























