ГОСТ 8.393-2010 Государственная система обеспечения единства измерений. Квадранты оптические. Методика поверки
ГОСТ
Скачать ГОСТ в PDF или DOC бесплатно
Основная информация
Обозначение:
ГОСТ 8.393-2010
Статус:
Действует
Тип:
ГОСТ
Название русское:
Государственная система обеспечения единства измерений. Квадранты оптические. Методика поверки
Название английское:
State system for ensuring the uniformity of measurements. Optical quadrants. Verification procedure
Даты и сроки
Дата регистрации:
06-10-10
Дата издания:
03-06-19
Дата введения в действие:
03-01-12
Дата завершения срока действия:
-
Применение и описание
Область и условия применения:
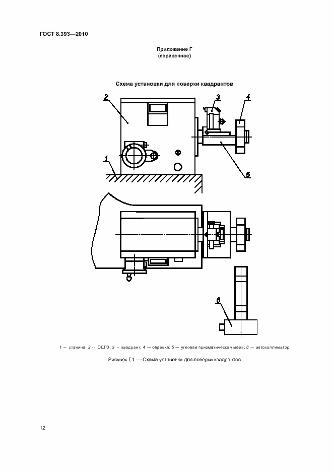
Настоящий стандарт устанавливает методику первичной и периодической поверок оптических квадрантов всех типов
Связи и замены
Заменяющий:
-
Взамен:
ГОСТ 8.393-80
Описание стандарта
ГОСТ 8.393-2010 Государственная система обеспечения единства измерений. Квадранты оптические. Методика поверки
Страницы стандарта




















Приложение №1: Поправка к ГОСТ 8.393-2010 Обозначение: Поправка к ГОСТ 8.393-2010 Дата введения в действие: 12.03.2021
