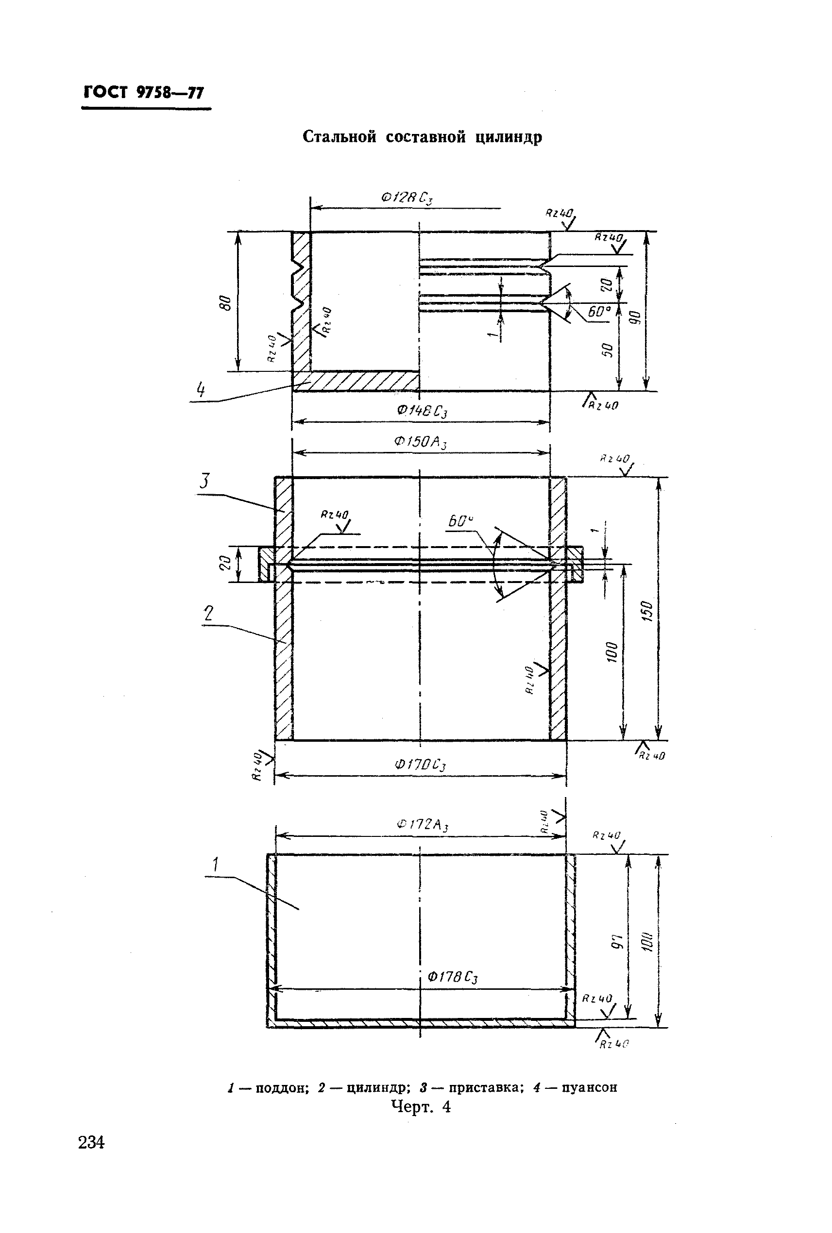
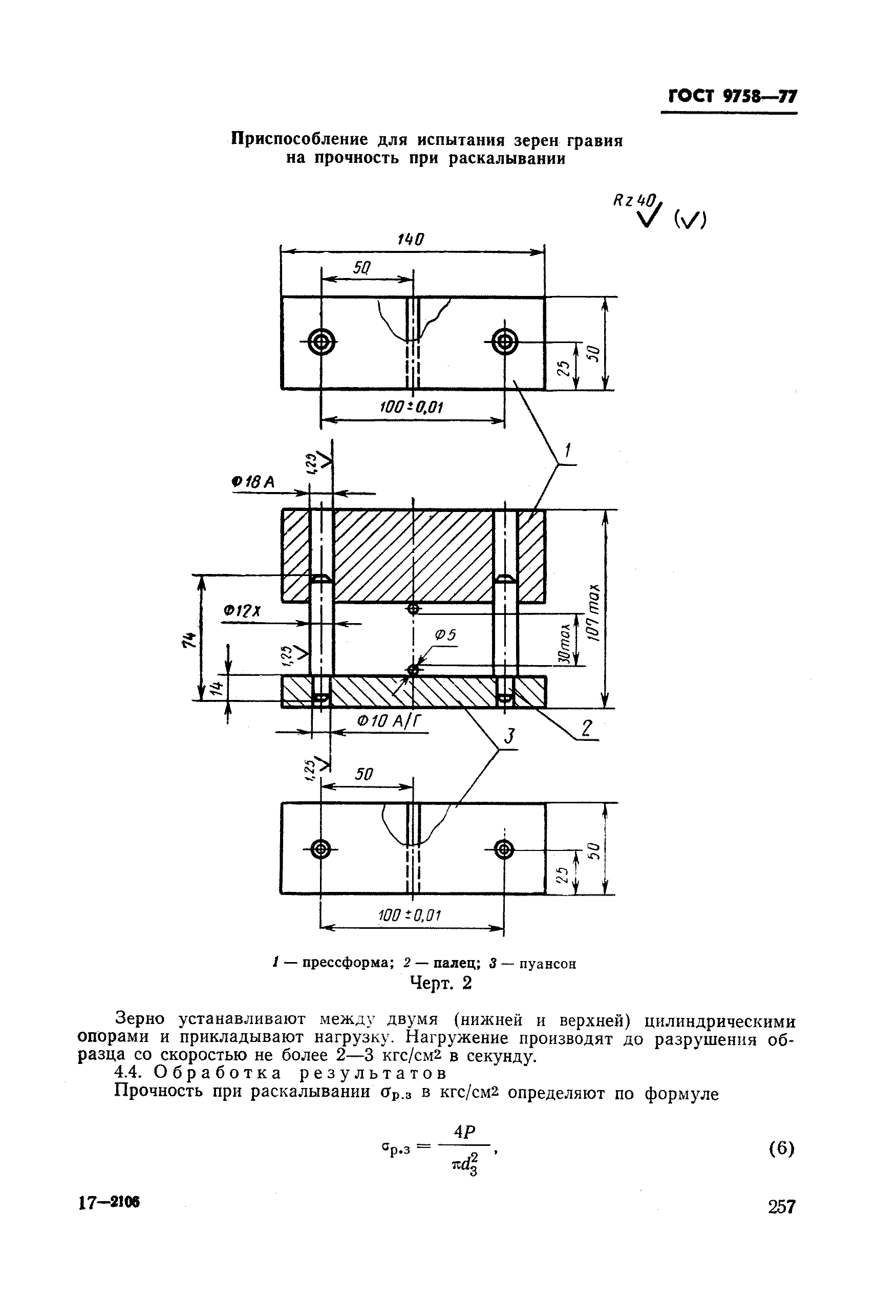
ГОСТ 9758-77 Заполнители пористые неорганические для бетона. Методы испытаний
ГОСТ
Основная информация
Обозначение:
ГОСТ 9758-77
Статус:
утратил силу в РФ
Тип:
ГОСТ
Название русское:
Заполнители пористые неорганические для бетона. Методы испытаний
Даты и сроки
Дата введения в действие:
01-01-79
Описание стандарта
ГОСТ 9758-77 Заполнители пористые неорганические для бетона. Методы испытаний
Страницы стандарта



















































