ГОСТ EN 15069-2015 Безопасность газовых соединительных клапанов для металлических шлангов в сборе, используемых для подсоединения бытовых приборов, работающих на газовом топливе
ГОСТ ЕН
Скачать ГОСТ в PDF или DOC бесплатно
Основная информация
Обозначение:
ГОСТ EN 15069-2015
Статус:
Действует
Тип:
ГОСТ ЕН
Название русское:
Безопасность газовых соединительных клапанов для металлических шлангов в сборе, используемых для подсоединения бытовых приборов, работающих на газовом топливе
Название английское:
Safety gas connection valves for metal hose assemblies used for the connection of domestic appliances, using gaseous fuel
Даты и сроки
Дата регистрации:
11-12-15
Дата издания:
01-11-22
Дата введения в действие:
07-01-22
Применение и описание
Область и условия применения:
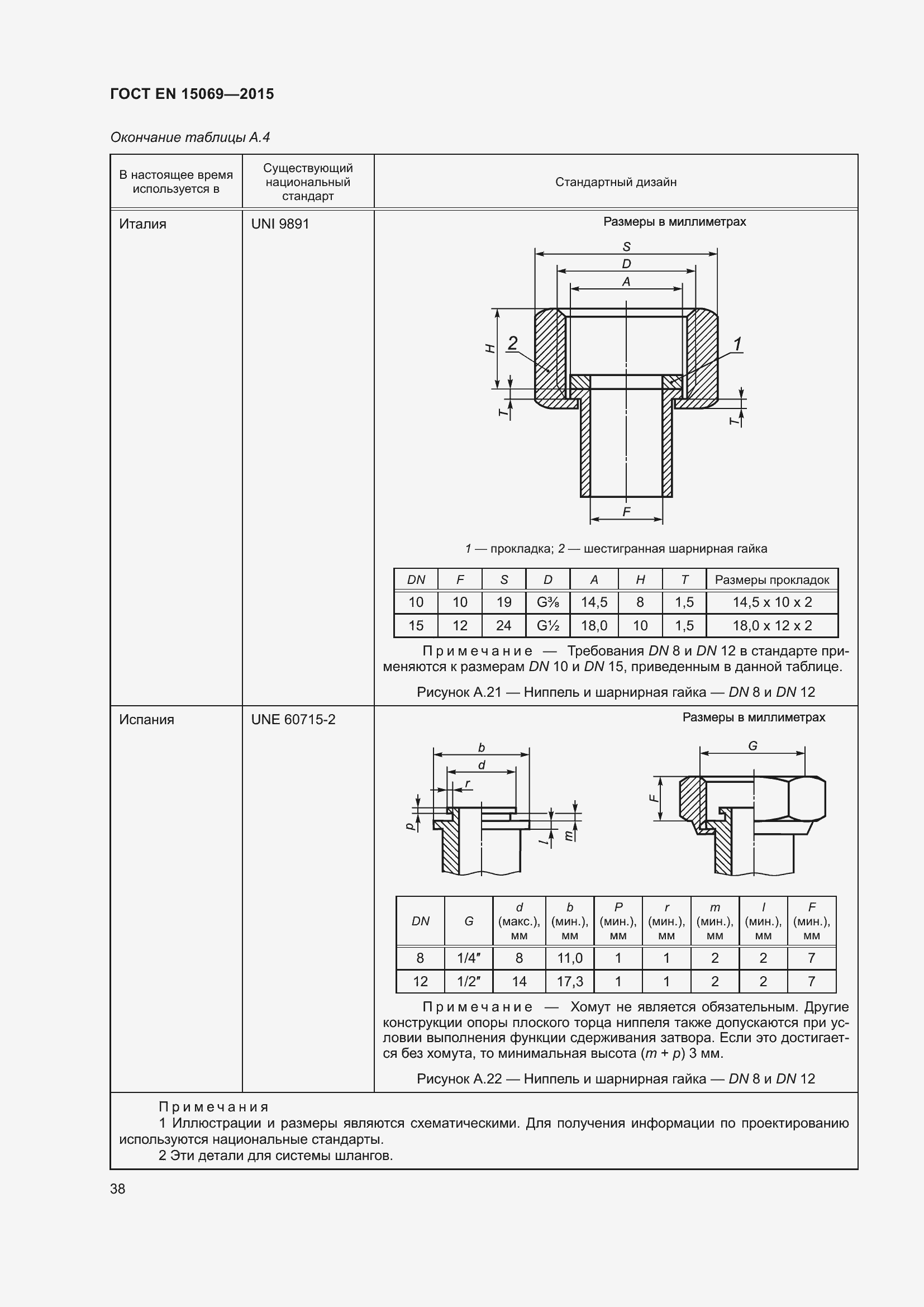
Настоящий стандарт устанавливает требования к соединительным клапанам, предназначенным для подключения фиксированных систем газоснабжения к бытовой технике внутри или за пределами жилых помещений, используя природный или сжиженный нефтяной газ, как правило, это пропан, при давлении до и включая 50 кПа (0,5 бар). Клапаны сконструированы для использования с переносными или стационарными приборами
Описание стандарта
ГОСТ EN 15069-2015 Безопасность газовых соединительных клапанов для металлических шлангов в сборе, используемых для подсоединения бытовых приборов, работающих на газовом топливе
Страницы стандарта





















































