ГОСТ IEC 61058-1-2012 Выключатели для электроприборов. Часть 1. Общие требования
ГОСТ МЭК
Скачать ГОСТ в PDF или DOC бесплатно
Основная информация
Обозначение:
ГОСТ IEC 61058-1-2012
Статус:
Действует
Тип:
ГОСТ МЭК
Название русское:
Выключатели для электроприборов. Часть 1. Общие требования
Название английское:
Switches for appliances. Part 1. General requirements
Даты и сроки
Дата регистрации:
12-03-12
Дата издания:
06-20-14
Дата введения в действие:
07-01-14
Дата завершения срока действия:
-
Применение и описание
Область и условия применения:
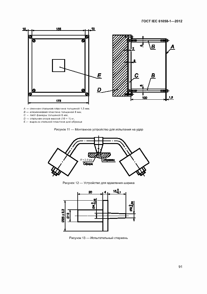
Настоящий стандарт распространяется на выключатели (механические или электронные) для электроприборов, приводимые в действие рукой, ногой или иным действием человека и используемые для включения и управления электроприборами или другим оборудованием бытового и аналогичного назначения номинальным напряжением не более 480 В и номинальным током не более 63 А. Настоящий стандарт распространяется также на выключатели, приводимые в действие косвенным способом, когда приведение в действие органа управления или датчика выполняется дистанционным управлением или частью прибора или оборудования, например дверцей
Связи и замены
Заменяющий:
-
Описание стандарта
ГОСТ IEC 61058-1-2012 Выключатели для электроприборов. Часть 1. Общие требования
Страницы стандарта

























































































































