ГОСТ ISO 13994-2024 Одежда специальная для защиты от жидких химических веществ. Определение стойкости материалов специальной одежды к прониканию жидкостей под давлением
ГОСТ ИСО
Скачать ГОСТ в PDF или DOC бесплатно
Основная информация
Обозначение:
ГОСТ ISO 13994-2024
Статус:
Действует
Тип:
ГОСТ ИСО
Название русское:
Одежда специальная для защиты от жидких химических веществ. Определение стойкости материалов специальной одежды к прониканию жидкостей под давлением
Название английское:
Protective clothing against liquid chemicals. Determination of the resistance of protective clothing materials to penetration by liquids under pressure
Даты и сроки
Дата регистрации:
07-31-24
Дата издания:
10-22-24
Дата введения в действие:
10-01-25
Дата завершения срока действия:
-
Применение и описание
Область и условия применения:
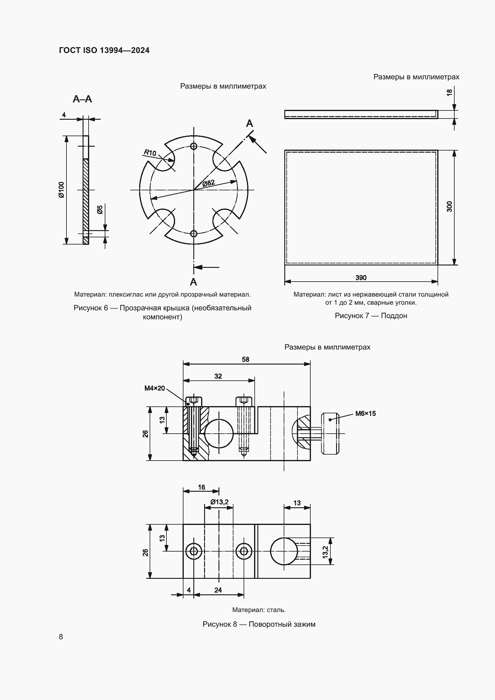
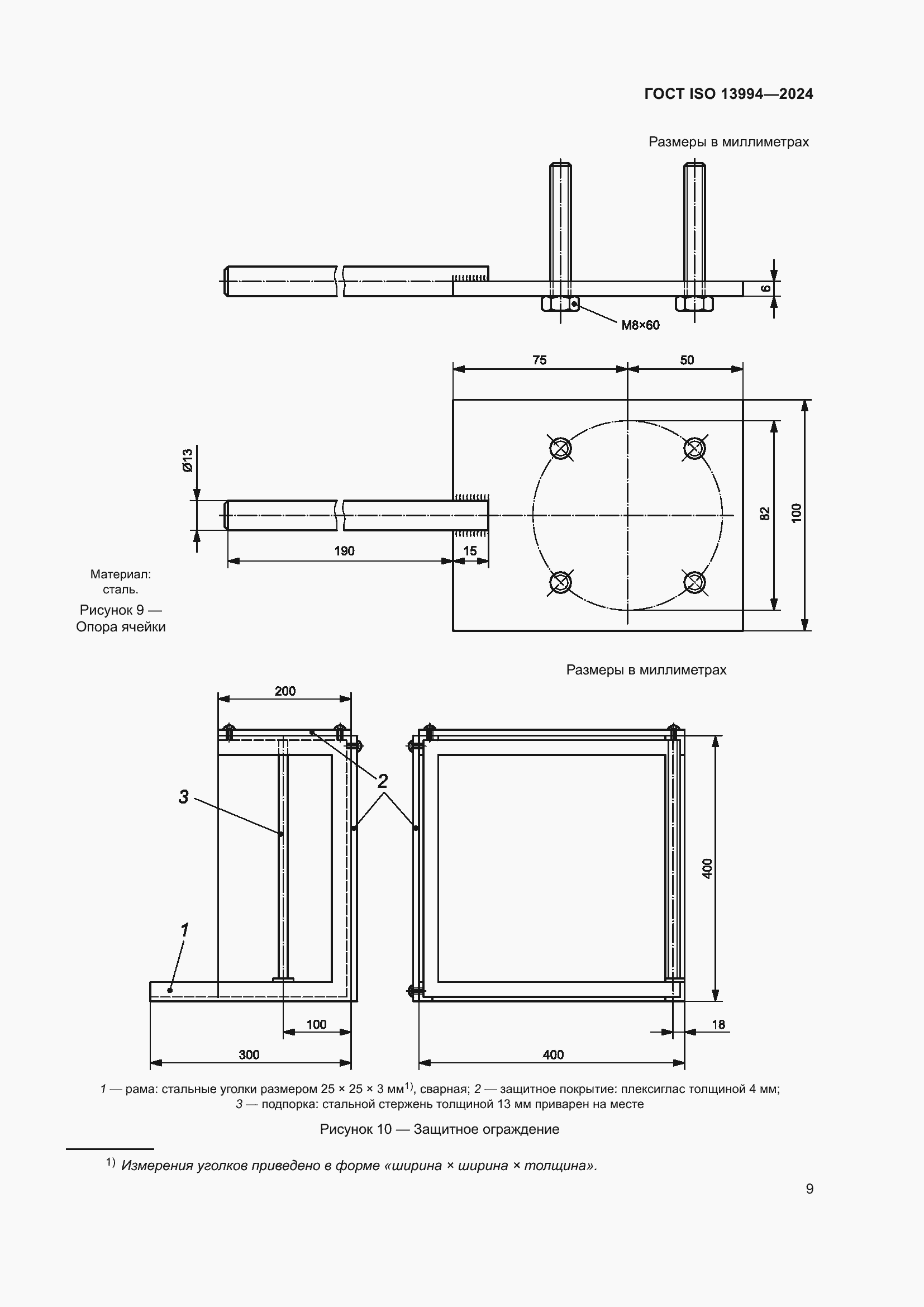
Настоящий стандарт устанавливает метод лабораторных испытаний, позволяющий определить стойкость материалов специальной одежды). Принимая во внимание установленную на межгосударственном уровне классификацию (перчатки относят к средствам индивидуальной защиты рук, обувь – к средствам индивидуальной защиты ног, капюшоны – к средствам индивидуальной защиты головы), для целей настоящего стандарта под специальной одеждой понимают в том числе и средства индивидуальной защиты, которые могут применяться вместе с ней.) к видимому прониканию в условиях постоянного контакта с жидкостью и наличия давления (например, одежды, подвергающейся многократному воздействию распыляемой жидкости под давлением). На основе визуальных признаков проникания жидкости определяют, «соответствует» или «не соответствует» специальная одежда. Метод испытаний, приведенный в настоящем стандарте, обычно используют для оценки эффективности защиты от жидкостей материалов, предназначенных для изготовления специальной одежды, и проб готовых предметов) В контексте настоящего стандарта к термину «предметы специальной одежды» относят также костюмы, перчатки, обувь и т. д., которые могут быть применены в составе комплекта средств индивидуальной защиты от химических веществ.) специальной одежды
Связи и замены
Заменяющий:
-
Описание стандарта
ГОСТ ISO 13994-2024 Одежда специальная для защиты от жидких химических веществ. Определение стойкости материалов специальной одежды к прониканию жидкостей под давлением
Страницы стандарта
























Приложение №1: Поправка к ГОСТ ISO 13994-2024 Обозначение: Поправка к ГОСТ ISO 13994-2024 Дата введения в действие: 12.03.2025
