ГОСТ ISO 15025-2019 Система стандартов безопасности труда. Одежда специальная для защиты от пламени. Метод испытаний на ограниченное распространение пламени
ГОСТ ИСО
Скачать ГОСТ в PDF или DOC бесплатно
Основная информация
Обозначение:
ГОСТ ISO 15025-2019
Статус:
Действует
Тип:
ГОСТ ИСО
Название русское:
Система стандартов безопасности труда. Одежда специальная для защиты от пламени. Метод испытаний на ограниченное распространение пламени
Название английское:
Occupational safety standards system. Protective clothing against flame. Method of test for limited flame spread
Даты и сроки
Дата регистрации:
07-30-19
Дата издания:
09-09-19
Дата введения в действие:
09-01-20
Применение и описание
Область и условия применения:
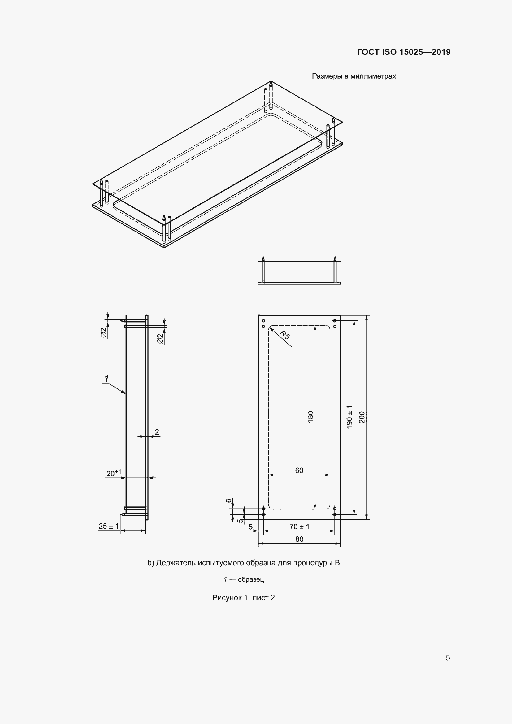
Настоящий стандарт устанавливает две процедуры (воспламенение поверхности и воспламенение нижней кромки) определения характеристик распространения пламени на вертикально ориентированных гибких одно- или многокомпонентных материалах (с покрытием, стеганых, многослойных, конструкций типа «сэндвич» и аналогичных), когда они подвергаются воздействию небольшого заданного пламени. Данный метод испытаний не применяется в условиях ограниченной подачи воздуха или воздействии тепла большой интенсивности, для которых более подходящими являются другие методы испытаний
Связи и замены
Взамен:
ГОСТ ISO 15025-2012
Описание стандарта
ГОСТ ISO 15025-2019 Система стандартов безопасности труда. Одежда специальная для защиты от пламени. Метод испытаний на ограниченное распространение пламени
Страницы стандарта


























Приложение №1: Поправка к ГОСТ ISO 15025-2019 Обозначение: Поправка к ГОСТ ISO 15025-2019 Дата введения в действие: 19.08.2020

Приложение №2: Поправка к ГОСТ ISO 15025-2019 Обозначение: Поправка к ГОСТ ISO 15025-2019 Дата введения в действие: 28.07.2023
