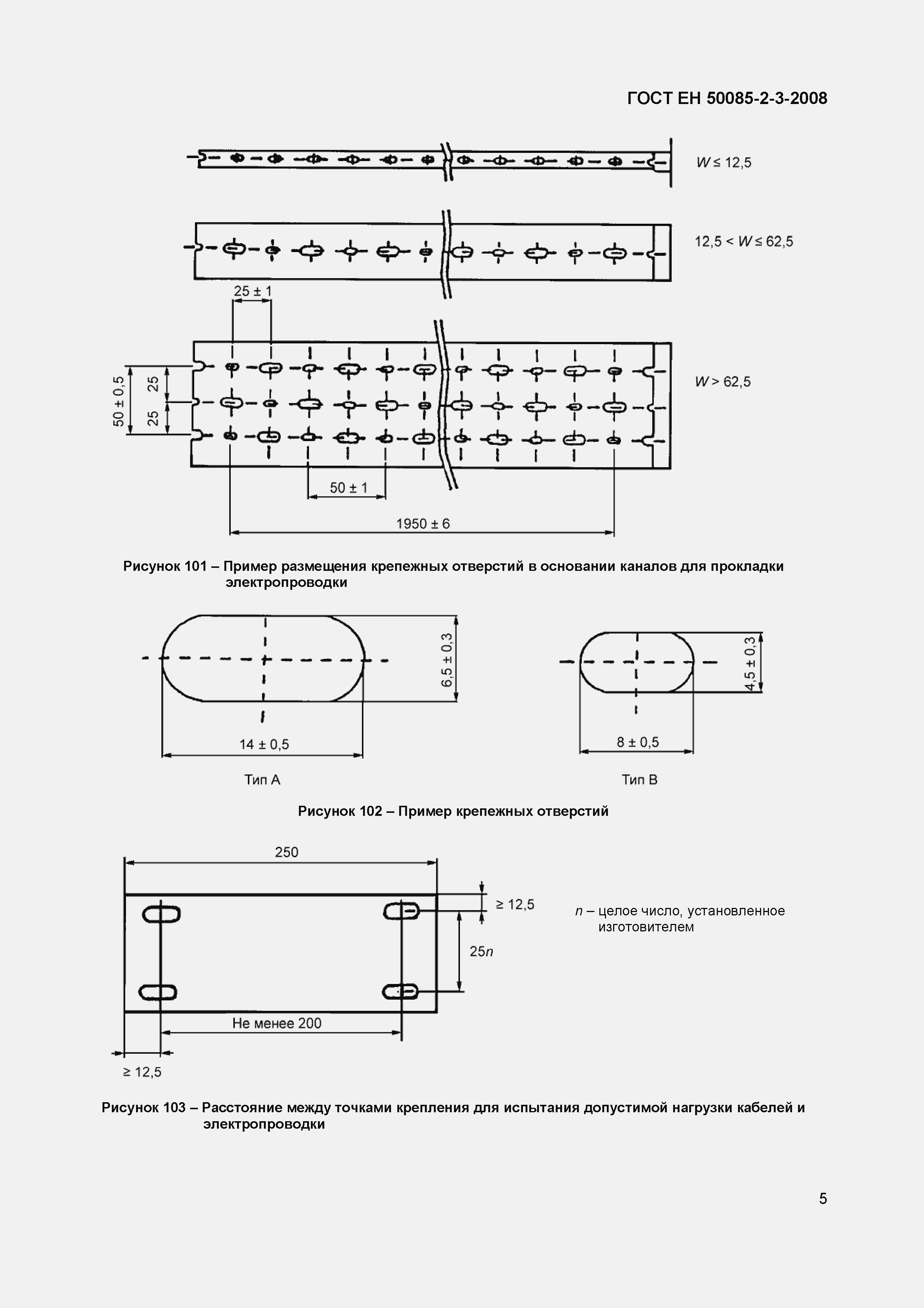
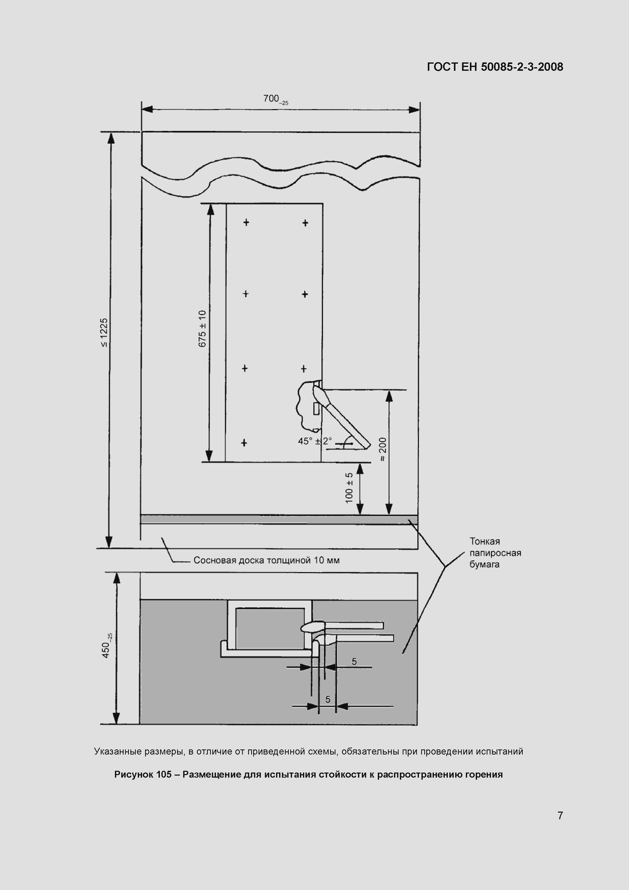
ГОСТ ЕН 50085-2-3-2008 Системы электропроводные канальные для электроустановок. Часть 2-3. Дополнительные требования к электромонтажным каналам, установленным в распределительных шкафах
ГОСТ ЕН
Основная информация
Обозначение:
ГОСТ ЕН 50085-2-3-2008
Тип:
ГОСТ ЕН
Название русское:
Системы электропроводные канальные для электроустановок. Часть 2-3. Дополнительные требования к электромонтажным каналам, установленным в распределительных шкафах
Даты и сроки
Дата введения в действие:
01-01-09
Описание стандарта
ГОСТ ЕН 50085-2-3-2008 Системы электропроводные канальные для электроустановок. Часть 2-3. Дополнительные требования к электромонтажным каналам, установленным в распределительных шкафах
Страницы стандарта











