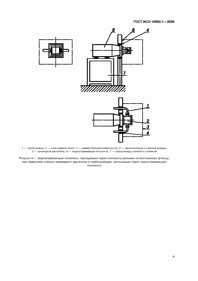
ГОСТ ИСО 16902.1-2006 Шум машин. Технический метод определения уровней звуковой мощности насосов гидроприводов по интенсивности звука
ГОСТ ИСО
Основная информация
Обозначение:
ГОСТ ИСО 16902.1-2006
Статус:
утратил силу в РФ
Тип:
ГОСТ ИСО
Название русское:
Шум машин. Технический метод определения уровней звуковой мощности насосов гидроприводов по интенсивности звука
Название английское:
Noise of machines. Engineering method for determination of the sound power levels of pumps using sound intensity techniques
Даты и сроки
Дата введения в действие:
10-01-07
Описание стандарта
ГОСТ ИСО 16902.1-2006 Шум машин. Технический метод определения уровней звуковой мощности насосов гидроприводов по интенсивности звука
Страницы стандарта















