ГОСТ Р 2.104-2023 Единая система конструкторской документации. Основные надписи
ГОСТ Р
Скачать ГОСТ в PDF или DOC бесплатно
Основная информация
Обозначение:
ГОСТ Р 2.104-2023
Статус:
Действует
Тип:
ГОСТ Р
Название русское:
Единая система конструкторской документации. Основные надписи
Название английское:
Unified system for design documentation. Document title block
Даты и сроки
Дата издания:
09-25-24
Дата введения в действие:
03-01-24
Дата завершения срока действия:
-
Применение и описание
Область и условия применения:
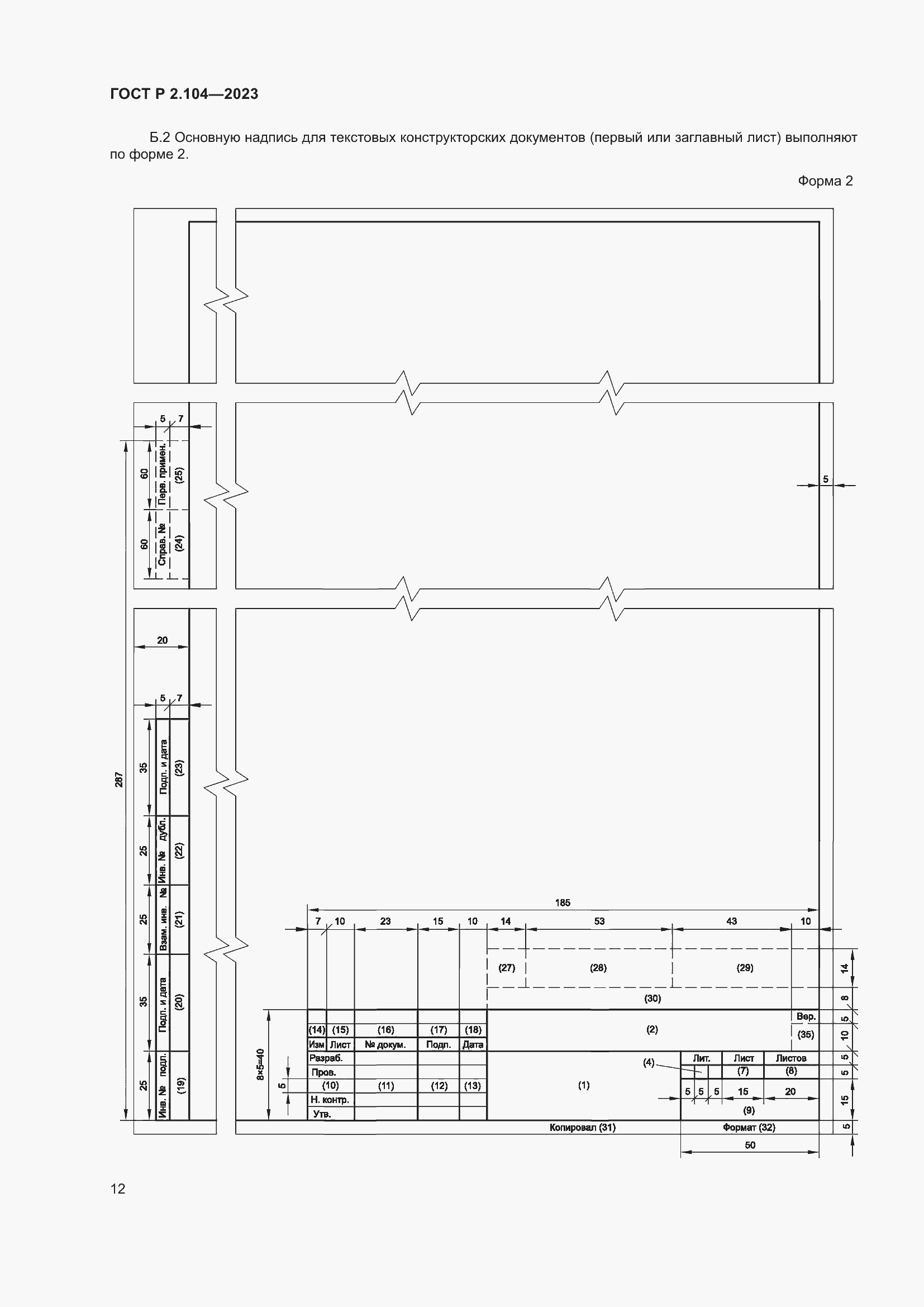
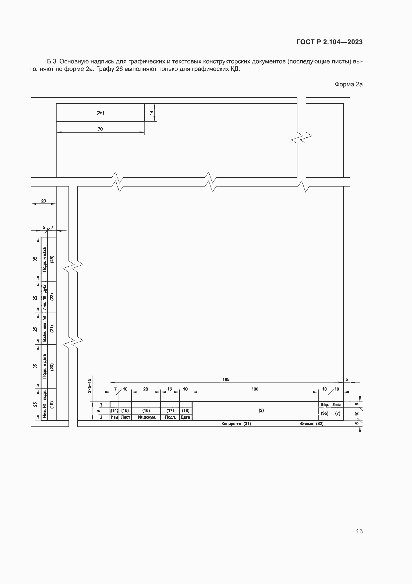
Настоящий стандарт устанавливает требования к выполнению основной надписи и дополнительных граф к ней в бумажных и электронных конструкторских документах) Для удобства пользования настоящим стандартом далее для именования всех конструкторских документов вне зависимости от формы представления использован термин «конструкторский документ». В пунктах, требующих упоминания формы представления, применены полные формулировки.). Настоящий стандарт распространяется на изделия машиностроения всех отраслей промышленности. На основе настоящего стандарта допускается, при необходимости, разрабатывать стандарты, учитывающие особенности оформления основной надписи для отдельных видов конструкторских документов
Связи и замены
Заменяющий:
-
Описание стандарта
ГОСТ Р 2.104-2023 Единая система конструкторской документации. Основные надписи
Страницы стандарта
























Приложение №1: Поправка к ГОСТ Р 2.104-2023 Обозначение: Поправка к ГОСТ Р 2.104-2023 Дата введения в действие: 24.04.2024

Приложение №2: Поправка к ГОСТ Р 2.104-2023 Обозначение: Поправка к ГОСТ Р 2.104-2023 Дата введения в действие: 25.09.2024
