ГОСТ Р 2.109-2023 Единая система конструкторской документации. Основные требования к чертежам
ГОСТ Р
Скачать ГОСТ в PDF или DOC бесплатно
Основная информация
Обозначение:
ГОСТ Р 2.109-2023
Статус:
Действует
Тип:
ГОСТ Р
Название русское:
Единая система конструкторской документации. Основные требования к чертежам
Название английское:
Unified system for design documentation. Basic requirements for drawings
Даты и сроки
Дата издания:
06-17-24
Дата введения в действие:
03-01-24
Дата завершения срока действия:
-
Применение и описание
Область и условия применения:
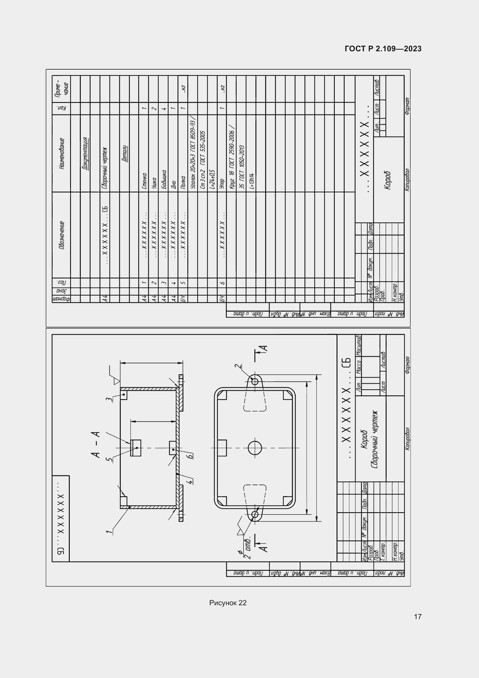
Настоящий стандарт устанавливает основные требования к чертежам деталей, сборочным чертежам, монтажным чертежам и габаритным чертежам на стадии разработки рабочей конструкторской документации. Настоящий стандарт распространяется на изделия машиностроения всех отраслей промышленности
Связи и замены
Заменяющий:
-
Описание стандарта
ГОСТ Р 2.109-2023 Единая система конструкторской документации. Основные требования к чертежам
Страницы стандарта










































Приложение №1: Поправка к ГОСТ Р 2.109-2023 Обозначение: Поправка к ГОСТ Р 2.109-2023 Дата введения в действие: 26.04.2024

Приложение №2: Поправка к ГОСТ Р 2.109-2023 Обозначение: Поправка к ГОСТ Р 2.109-2023 Дата введения в действие: 13.06.2024
