ГОСТ Р 21.1702-96 Система проектной документации для строительства. Правила выполнения рабочей документации железнодорожных путей
ГОСТ Р
Скачать ГОСТ в PDF или DOC бесплатно
Основная информация
Обозначение:
ГОСТ Р 21.1702-96
Статус:
Отменен
Тип:
ГОСТ Р
Название русское:
Система проектной документации для строительства. Правила выполнения рабочей документации железнодорожных путей
Название английское:
System of building design documents. Rules of executing of working documentation for rail ways
Даты и сроки
Дата издания:
11-26-96
Дата введения в действие:
01-01-97
Дата завершения срока действия:
01-01-15
Применение и описание
Область и условия применения:
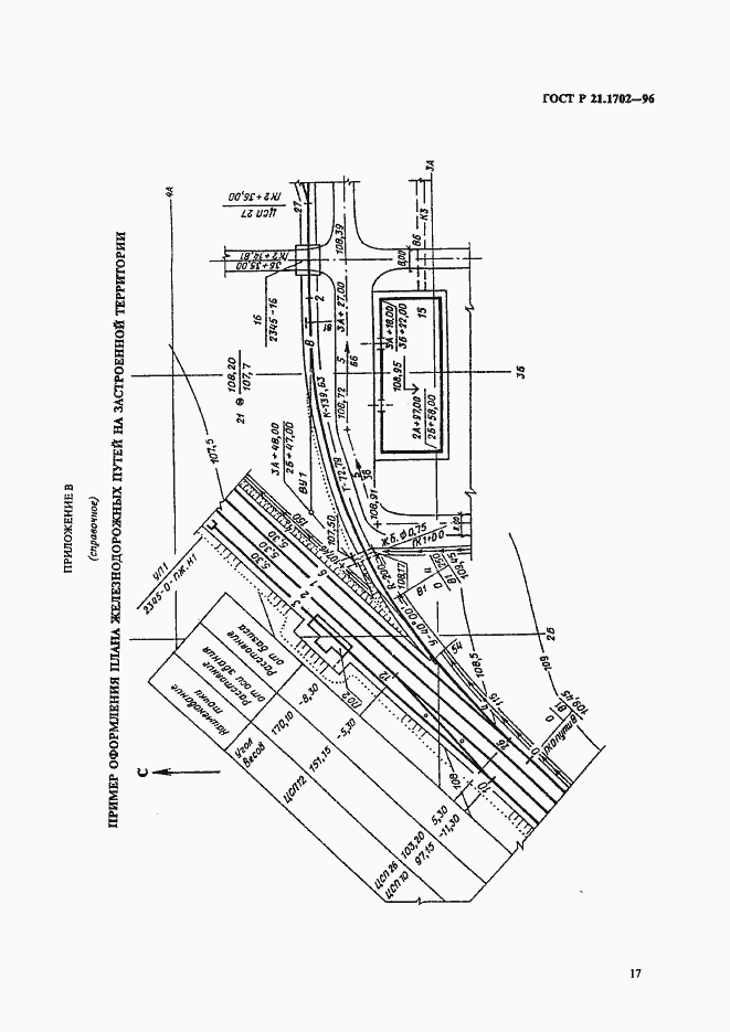
Настоящий стандарт устанавливает состав и правила оформления рабочей документации на строительство новых и реконструируемых железнодорожных путей различного назначения, выполняемой с применением средств автоматизации
Связи и замены
Заменяющий:
-
Изменения и переиздания
Список изменений:
№0 от (рег. ) «Текстовое изменение; Изменено заглавие»
Описание стандарта
ГОСТ Р 21.1702-96 Система проектной документации для строительства. Правила выполнения рабочей документации железнодорожных путей
Страницы стандарта





























