ГОСТ Р 21.1703-2000 Система проектной документации для строительства. Правила выполнения рабочей документации проводных средств связи
ГОСТ Р
Скачать ГОСТ в PDF или DOC бесплатно
Основная информация
Обозначение:
ГОСТ Р 21.1703-2000
Статус:
Заменен
Тип:
ГОСТ Р
Название русское:
Система проектной документации для строительства. Правила выполнения рабочей документации проводных средств связи
Название английское:
System of design documents for construction. Rules of executing of working documents for wire communication systems
Даты и сроки
Дата издания:
12-30-00
Дата введения в действие:
11-01-00
Дата завершения срока действия:
01-01-21
Применение и описание
Область и условия применения:
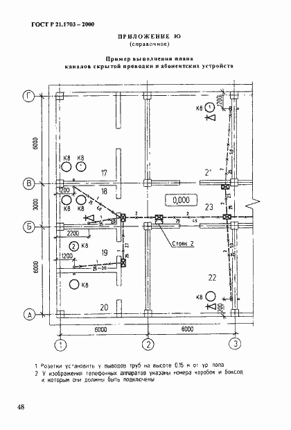
Настоящий стандарт устанавливает состав и правила оформления рабочей документации проводных средств связи для объектов строительства различного назначения. Настоящий стандарт распространяется на проектирование объектов проводной связи для строительства
Связи и замены
Заменяющий:
ГОСТ Р 21.703-2020
Описание стандарта
ГОСТ Р 21.1703-2000 Система проектной документации для строительства. Правила выполнения рабочей документации проводных средств связи
Страницы стандарта





















































