ГОСТ Р 21.620-2023 Система проектной документации для строительства. Правила выполнения проектной документации внутренних систем и наружных сетей канализации
ГОСТ Р
Скачать ГОСТ в PDF или DOC бесплатно
Основная информация
Обозначение:
ГОСТ Р 21.620-2023
Статус:
Действует
Тип:
ГОСТ Р
Название русское:
Система проектной документации для строительства. Правила выполнения проектной документации внутренних систем и наружных сетей канализации
Название английское:
System of design documents for construction. Rules for the implementation of design documentation for internal systems and external sewerage networks
Даты и сроки
Дата издания:
08-29-23
Дата введения в действие:
09-01-23
Дата завершения срока действия:
-
Применение и описание
Область и условия применения:
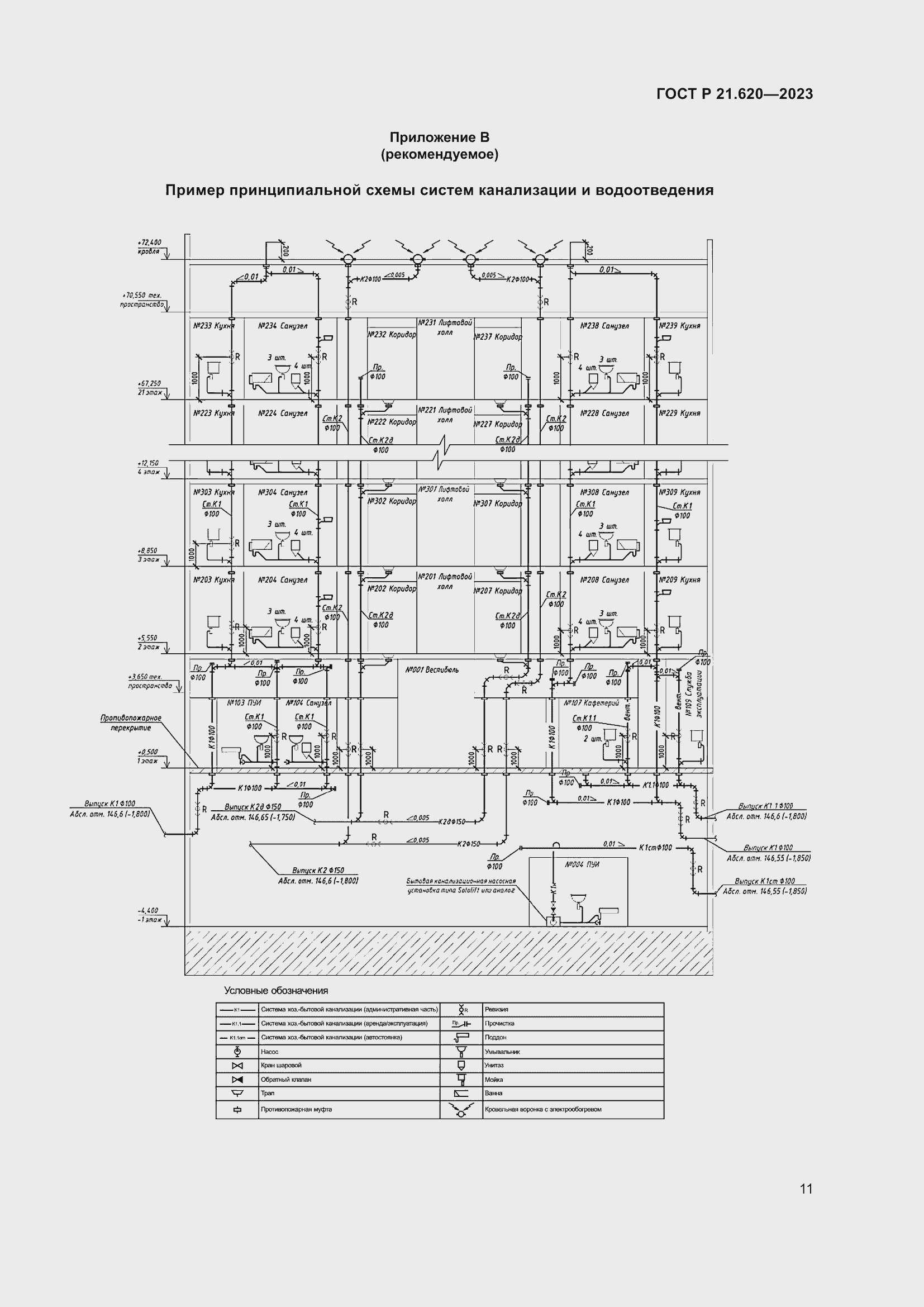
Настоящий стандарт устанавливает правила выполнения и оформления подраздела «Система водоотведения» раздела «Сведения об инженерном оборудовании, о сетях и системах инженерно-технического обеспечения» проектной документации для строительства, реконструкции объектов капитального строительства производственного и непроизводственного назначения. Настоящий стандарт распространяется: - на внутренние системы бытовой канализации; - системы внутренних водостоков; - системы производственной канализации; - наружные сети водоотведения от выпуска из здания до точки подключения; - сети поверхностного водоотведения с участка строительства до точки подключения; - систему очистки серых стоков; - дренажные системы для сбора и удаления подземных вод
Связи и замены
Заменяющий:
-
Описание стандарта
ГОСТ Р 21.620-2023 Система проектной документации для строительства. Правила выполнения проектной документации внутренних систем и наружных сетей канализации
Страницы стандарта



















