ГОСТ Р 21.622-2023 Система проектной документации для строительства. Правила выполнения проектной документации по системам внутренних электроустановок, сетям электроснабжения и наружного электроосвещения
ГОСТ Р
Скачать ГОСТ в PDF или DOC бесплатно
Основная информация
Обозначение:
ГОСТ Р 21.622-2023
Статус:
Действует
Тип:
ГОСТ Р
Название русское:
Система проектной документации для строительства. Правила выполнения проектной документации по системам внутренних электроустановок, сетям электроснабжения и наружного электроосвещения
Название английское:
System of design documents for construction. Rules for execution of design documents for systems of internal electrical installations, power supply networks and outdoor electrical lighting
Даты и сроки
Дата издания:
09-05-23
Дата введения в действие:
09-01-23
Дата завершения срока действия:
-
Применение и описание
Область и условия применения:
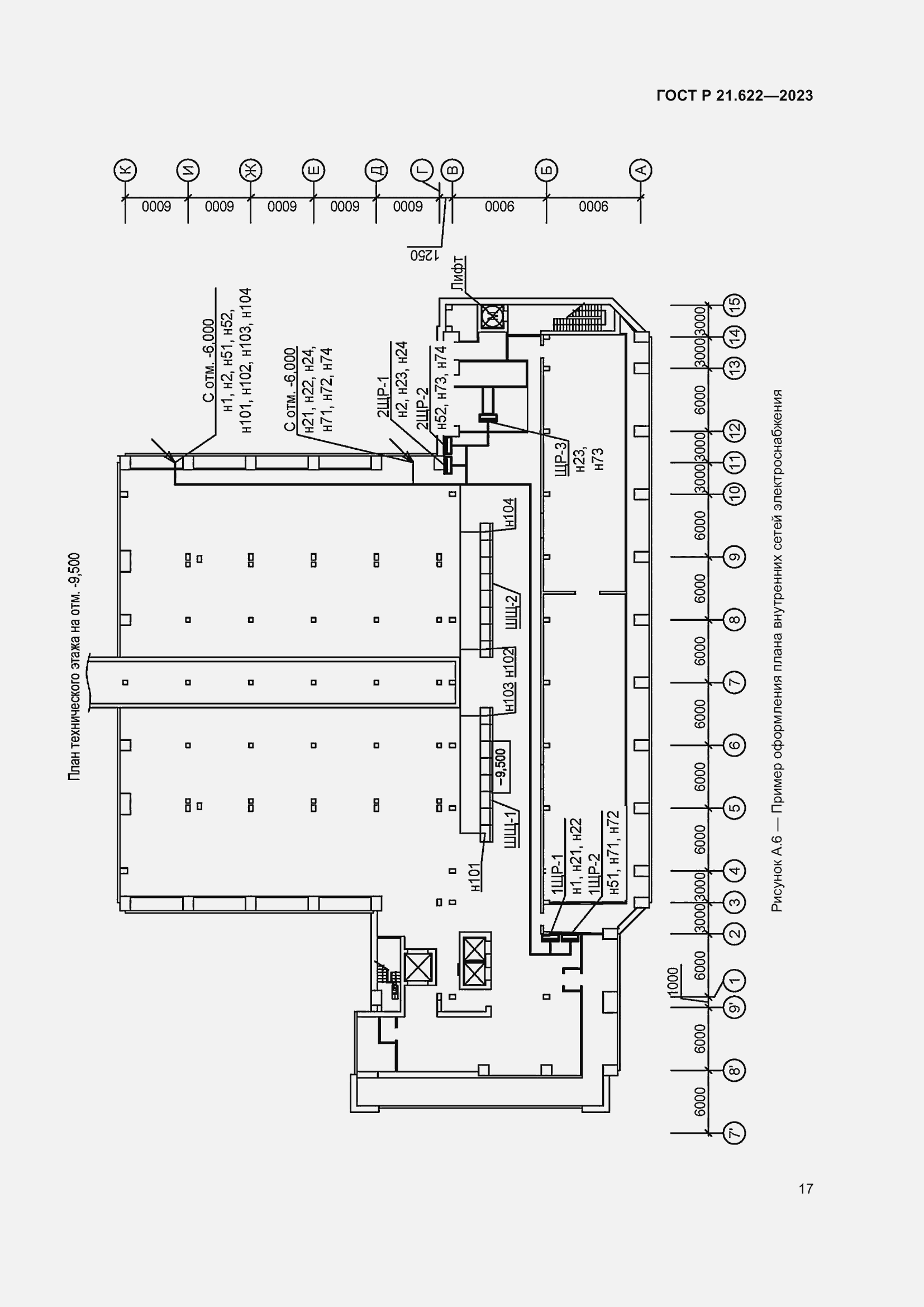
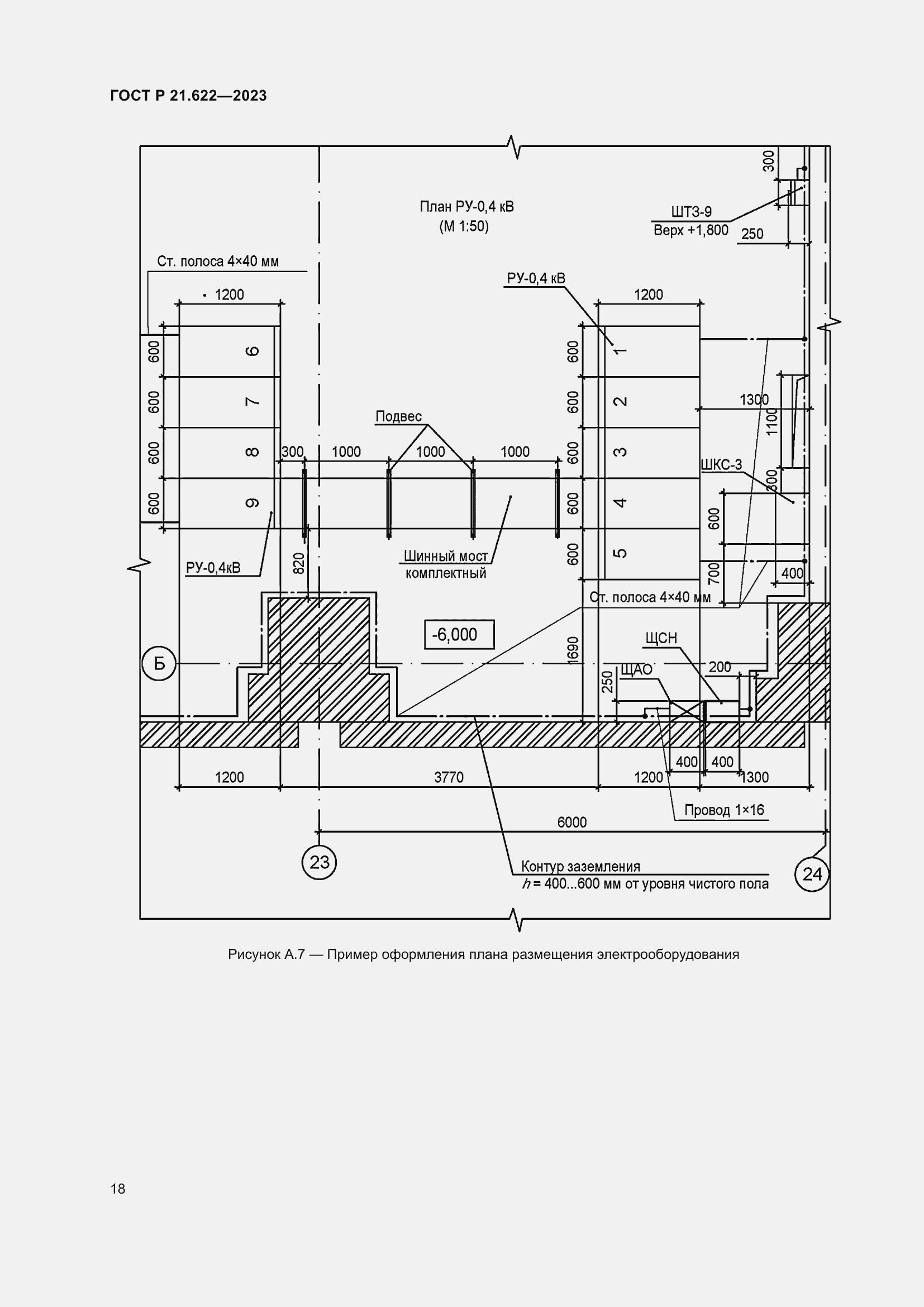
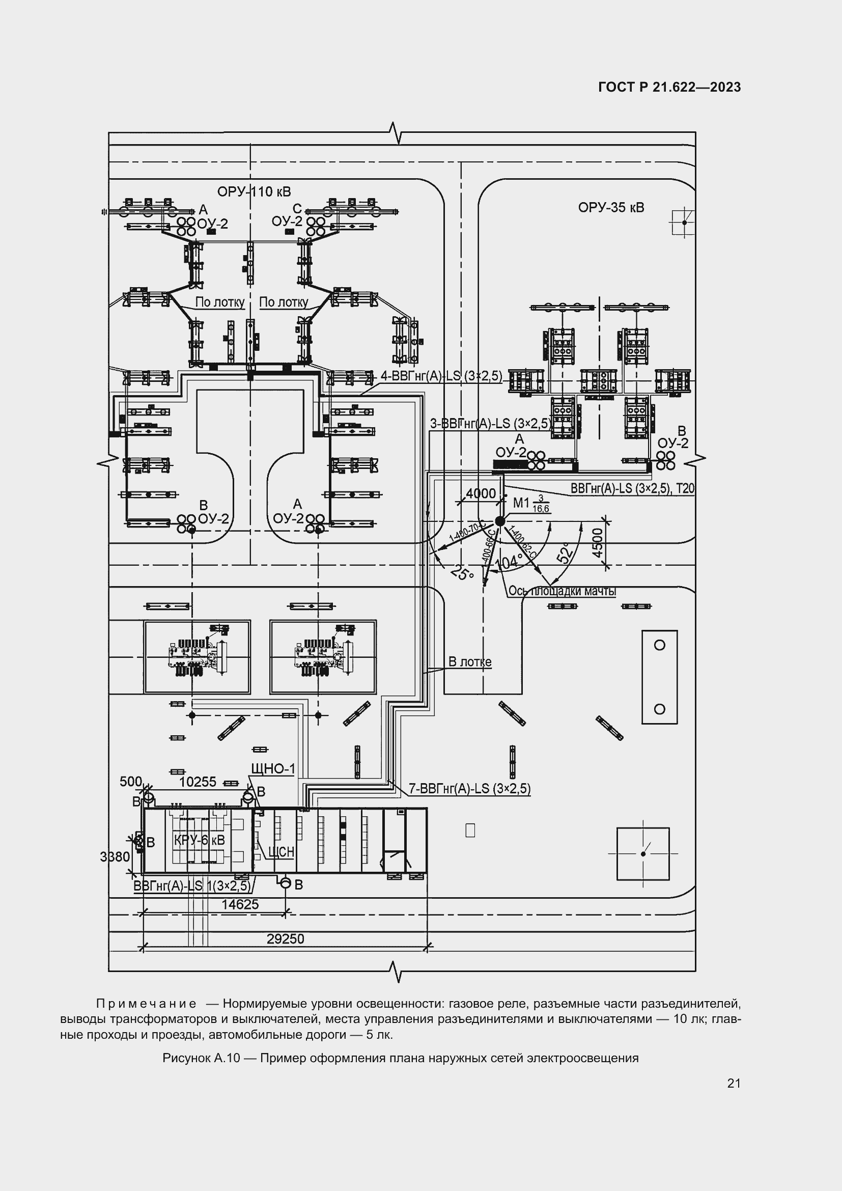
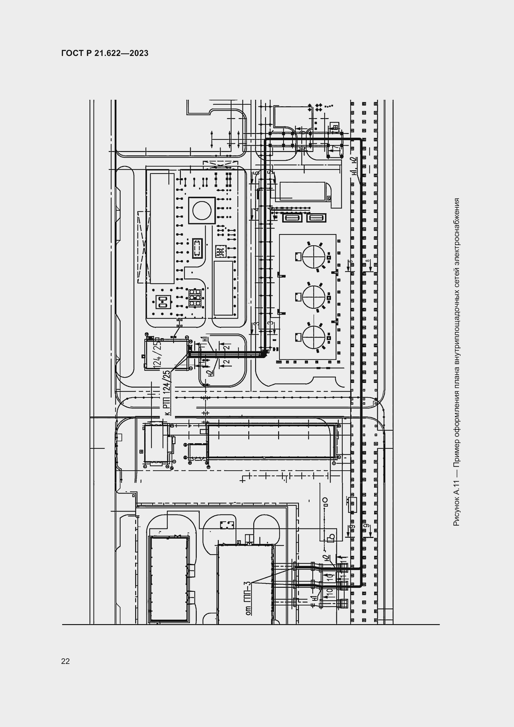
Настоящий стандарт устанавливает требования к оформлению проектной документации по системам внутренних электроустановок, сетям электроснабжения и наружного электроосвещения подраздела «Системы электроснабжения» [1], пункт 16
Связи и замены
Заменяющий:
-
Описание стандарта
ГОСТ Р 21.622-2023 Система проектной документации для строительства. Правила выполнения проектной документации по системам внутренних электроустановок, сетям электроснабжения и наружного электроосвещения
Страницы стандарта



























