ГОСТ Р 21.703-2020 Система проектной документации для строительства. Правила выполнения рабочей документации проводных средств связи
ГОСТ Р
Скачать ГОСТ в PDF или DOC бесплатно
Основная информация
Обозначение:
ГОСТ Р 21.703-2020
Статус:
Действует
Тип:
ГОСТ Р
Название русское:
Система проектной документации для строительства. Правила выполнения рабочей документации проводных средств связи
Название английское:
System of design documentation for construction. Rules of executing of working documents for wire communication systems
Даты и сроки
Дата издания:
11-05-20
Дата введения в действие:
01-01-21
Дата завершения срока действия:
-
Применение и описание
Область и условия применения:
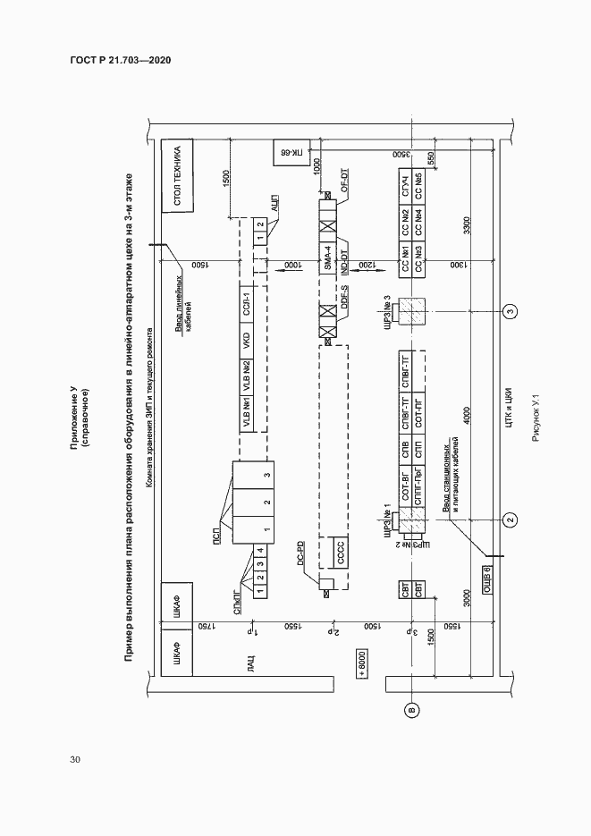
Настоящий стандарт устанавливает состав и правила оформления рабочей документации проводных средств связи для объектов строительства различного назначения и распространяется на проектирование объектов проводной связи
Связи и замены
Заменяющий:
-
Взамен:
ГОСТ Р 21.1703-2000
Описание стандарта
ГОСТ Р 21.703-2020 Система проектной документации для строительства. Правила выполнения рабочей документации проводных средств связи
Страницы стандарта









































