ГОСТ Р 51324.2.4-2012 Выключатели для бытовых и аналогичных стационарных электрических установок. Часть 2-4. Дополнительные требования к выключателям-разъединителям
ГОСТ Р
Скачать ГОСТ в PDF или DOC бесплатно
Основная информация
Обозначение:
ГОСТ Р 51324.2.4-2012
Статус:
Отменен
Тип:
ГОСТ Р
Название русское:
Выключатели для бытовых и аналогичных стационарных электрических установок. Часть 2-4. Дополнительные требования к выключателям-разъединителям
Название английское:
Switches for household and similar fixed electrical installations. Part 2-4. Particular requirements for isolating switches
Даты и сроки
Дата издания:
04-07-14
Дата введения в действие:
01-01-14
Дата завершения срока действия:
06-01-19
Применение и описание
Область и условия применения:
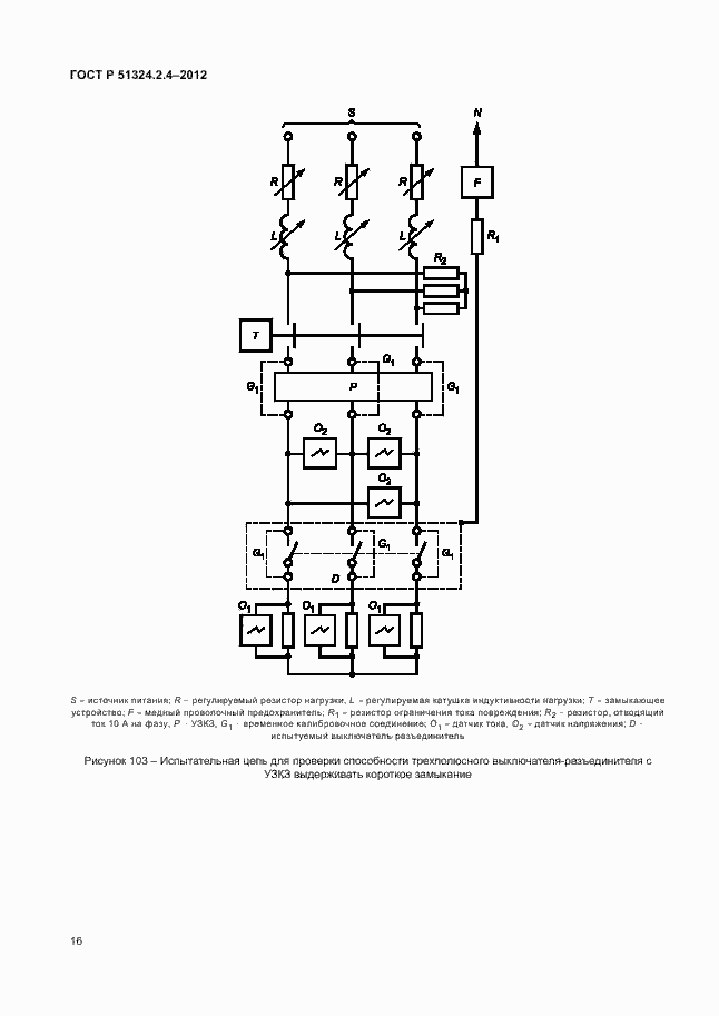
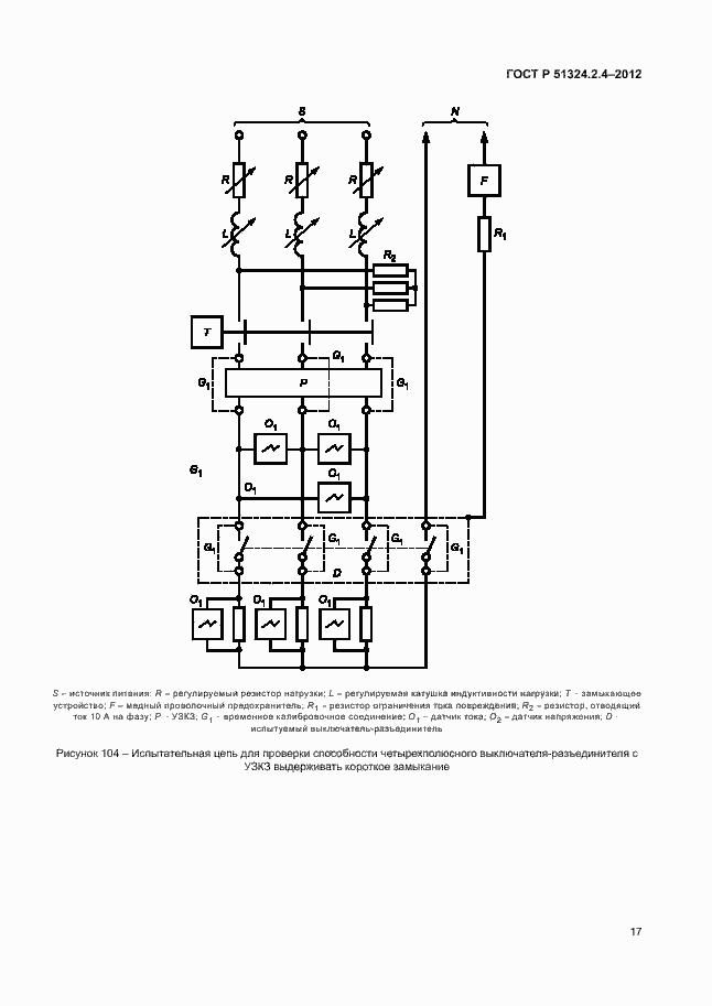
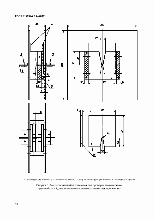
Настоящий стандарт распространяется на выключатели-разъединители общего назначения с ручным управлением на номинальное напряжение не выше 440 В и номинальный ток не более 125 А, применяемые для бытовых и аналогичных стационарных электрических установок, размещаемых внутри и снаружи зданий
Связи и замены
Заменяющий:
-
Изменения и переиздания
Список изменений:
№0 от (рег. ) «Текстовое изменение; Изменено заглавие»
Описание стандарта
ГОСТ Р 51324.2.4-2012 Выключатели для бытовых и аналогичных стационарных электрических установок. Часть 2-4. Дополнительные требования к выключателям-разъединителям
Страницы стандарта



























