ГОСТ Р 56788-2023 Композиты полимерные. Метод определения прочности при сжатии многослойных композитов (ламинатов) с открытым отверстием
ГОСТ Р
Скачать ГОСТ в PDF или DOC бесплатно
Основная информация
Обозначение:
ГОСТ Р 56788-2023
Статус:
Действует
Тип:
ГОСТ Р
Название русское:
Композиты полимерные. Метод определения прочности при сжатии многослойных композитов (ламинатов) с открытым отверстием
Название английское:
Polymer composites. Method for determination of compressive strength of polymer matrix composites (laminates) with open hole
Даты и сроки
Дата издания:
11-30-23
Дата введения в действие:
03-01-24
Дата завершения срока действия:
-
Применение и описание
Область и условия применения:
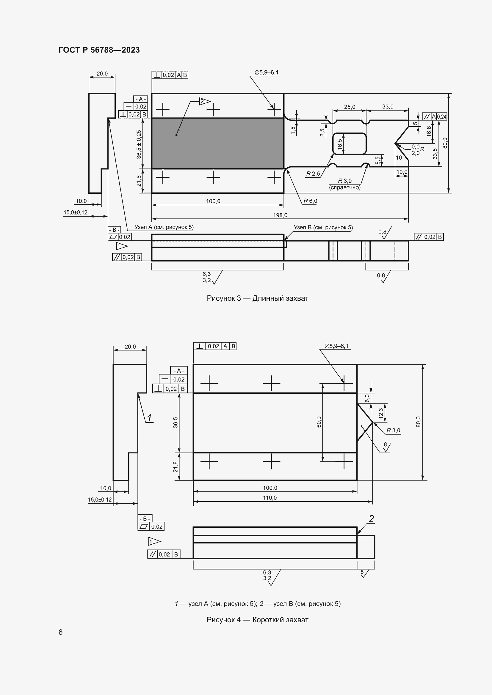
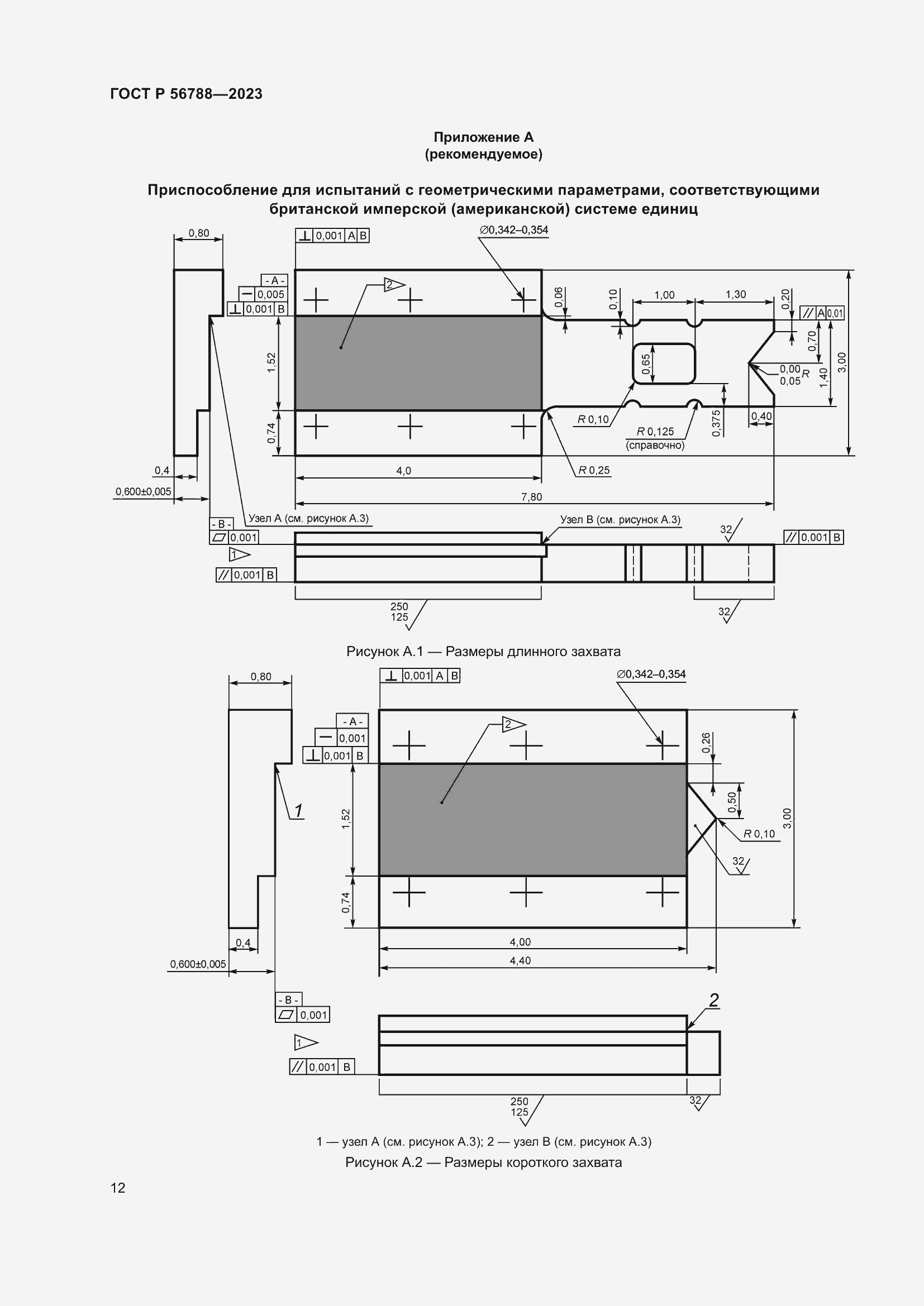
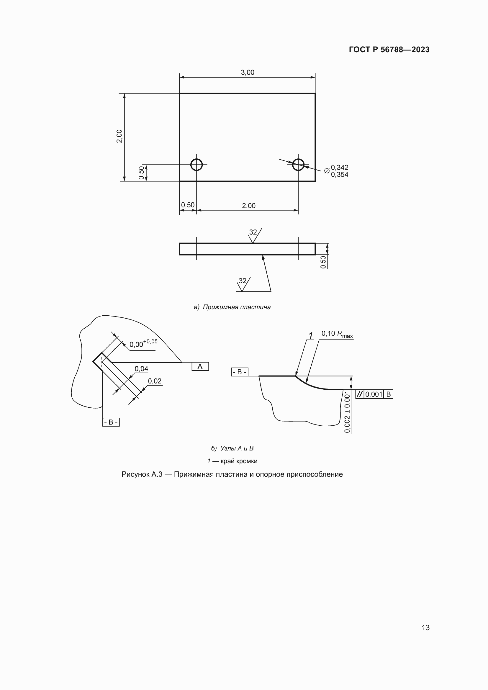
Настоящий стандарт распространяется на многослойные полимерные композиты (ламинаты) с различными направлениями армирования слоев высокомодульными волокнистыми наполнителями в виде тканей и (или) лент, укладка которых по слоям обеспечивает сбалансированность и симметричность образцов относительно направления испытания. Настоящий стандарт устанавливает метод определения прочности при сжатии образцов материалов с открытым отверстием
Связи и замены
Заменяющий:
-
Взамен:
ГОСТ Р 56788-2015
Описание стандарта
ГОСТ Р 56788-2023 Композиты полимерные. Метод определения прочности при сжатии многослойных композитов (ламинатов) с открытым отверстием
Страницы стандарта



















