ГОСТ Р 57905-2017 Двигатели дизельные. Топливные рядные насосы и насосы высокого давления для аккумуляторных топливных систем CR, устанавливаемые на основание. Габаритные и присоединительные размеры
ГОСТ Р
Скачать ГОСТ в PDF или DOC бесплатно
Основная информация
Обозначение:
ГОСТ Р 57905-2017
Статус:
Действует
Тип:
ГОСТ Р
Название русское:
Двигатели дизельные. Топливные рядные насосы и насосы высокого давления для аккумуляторных топливных систем CR, устанавливаемые на основание. Габаритные и присоединительные размеры
Название английское:
Diesel Engines. Base-mounted in-line fuil injection pumps and high-pressure supply pumps for common rail fuel injection systems. Mounting dimensions
Даты и сроки
Дата издания:
11-22-17
Дата введения в действие:
07-01-18
Дата завершения срока действия:
-
Применение и описание
Область и условия применения:
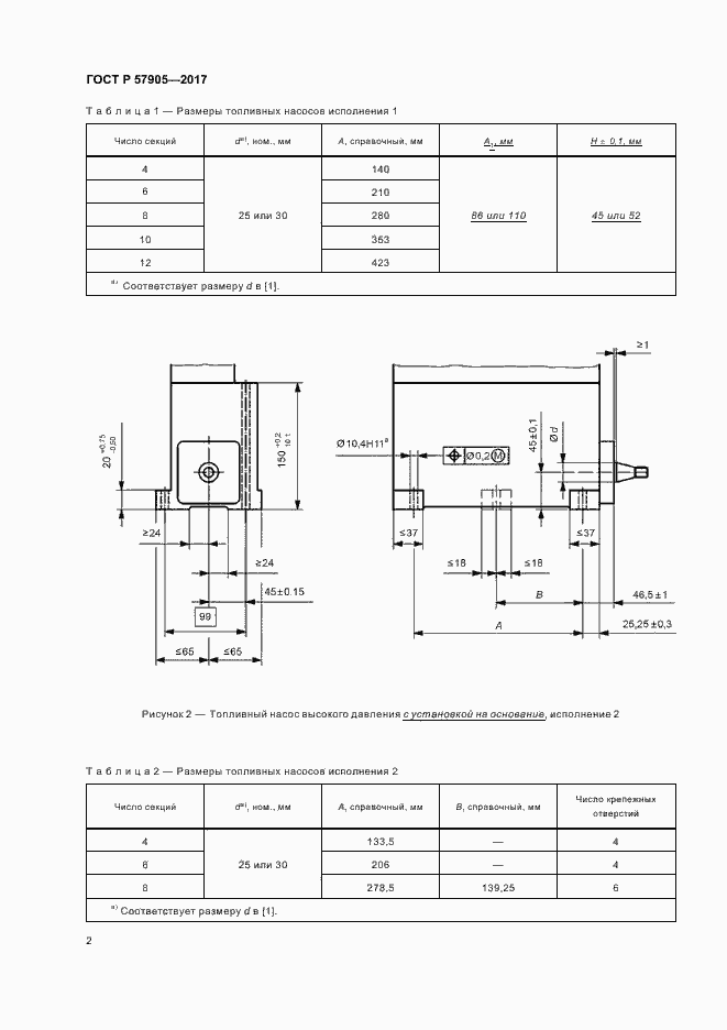
Настоящий стандарт определяет требования к размерам устанавливаемых на основание рядных топливных насосов высокого давления и насосов высокого давления аккумулятроных топливных систем Common Rail (CR) дизельных двигателей
Связи и замены
Заменяющий:
-
Описание стандарта
ГОСТ Р 57905-2017 Двигатели дизельные. Топливные рядные насосы и насосы высокого давления для аккумуляторных топливных систем CR, устанавливаемые на основание. Габаритные и присоединительные размеры
Страницы стандарта











