ГОСТ Р 70851-2023 Тракторы и машины сельскохозяйственные. Полигон для испытания высокоавтоматизированных машинно-тракторных агрегатов. Технические требования
ГОСТ Р
Скачать ГОСТ в PDF или DOC бесплатно
Основная информация
Обозначение:
ГОСТ Р 70851-2023
Статус:
Действует
Тип:
ГОСТ Р
Название русское:
Тракторы и машины сельскохозяйственные. Полигон для испытания высокоавтоматизированных машинно-тракторных агрегатов. Технические требования
Название английское:
Tractors and agricultural machinery. Testing ground for highly automated machine and tractorunits. Technical requirements
Даты и сроки
Дата издания:
11-20-23
Дата введения в действие:
05-01-24
Дата завершения срока действия:
-
Применение и описание
Область и условия применения:
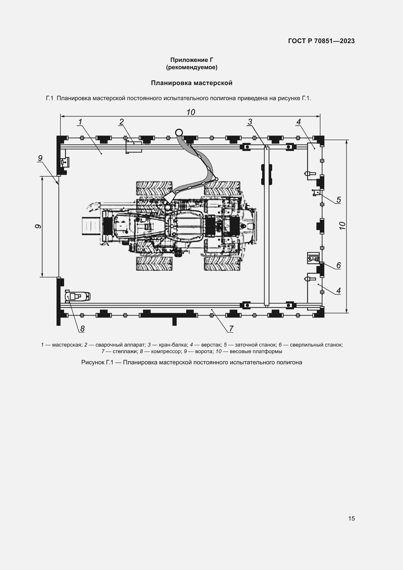
Настоящий стандарт устанавливает технические требования к испытательным полигонам для проведения испытаний высокоавтоматизированных машинно-тракторных агрегатов.к полигонам для испытаний на безопасность управления движением высокоавтоматизированных машинно-тракторных агрегатов. Настоящий стандарт предназначен для применения в испытательных организацияхй при создании, функционировании, а также при подготовке к аккредитации в качестве аккредитованного полигона для проведения испытаний высокоавтоматизированных машинно-тракторных агрегатов и для органов по аккредитации при проведении инспекционного контроля деятельности испытательных полигонов
Связи и замены
Заменяющий:
-
Описание стандарта
ГОСТ Р 70851-2023 Тракторы и машины сельскохозяйственные. Полигон для испытания высокоавтоматизированных машинно-тракторных агрегатов. Технические требования
Страницы стандарта



















