ГОСТ Р 71033-2023 Лифты. Направляющие для кабин и противовесов. Основные параметры и размеры
ГОСТ Р
Скачать ГОСТ в PDF или DOC бесплатно
Основная информация
Обозначение:
ГОСТ Р 71033-2023
Статус:
Действует
Тип:
ГОСТ Р
Название русское:
Лифты. Направляющие для кабин и противовесов. Основные параметры и размеры
Название английское:
Lifts. Guide rails for lift cars and counterweights. Basic parameters and dimensions
Даты и сроки
Дата издания:
11-21-23
Дата введения в действие:
03-01-24
Дата завершения срока действия:
-
Применение и описание
Область и условия применения:
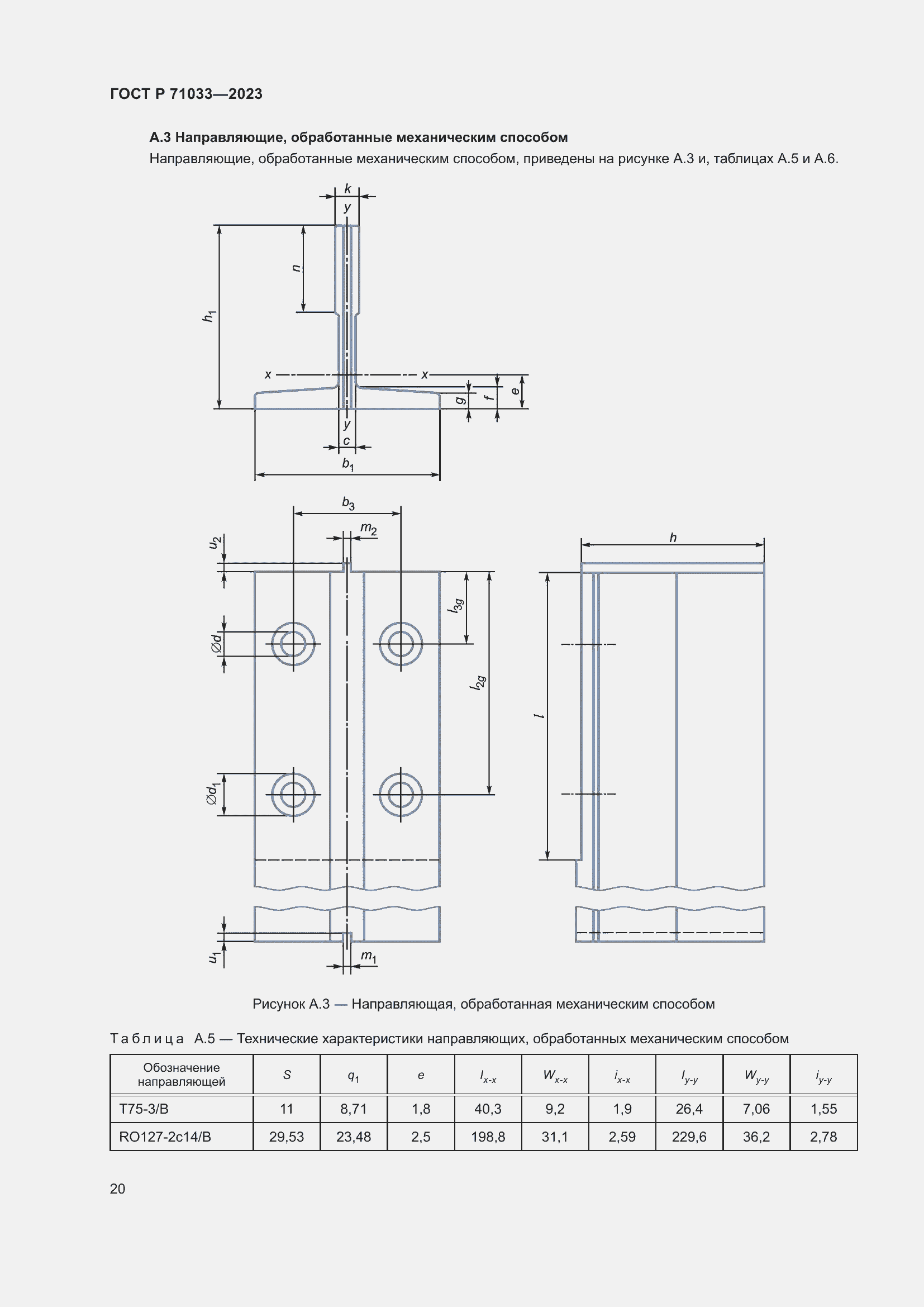
Настоящий стандарт устанавливает основные параметры и размеры направляющих для кабин и противовесов лифтов. Настоящий стандарт распространяется на направляющие Т-образного профиля, используемые в лифтах для транспортирования людей и грузов
Связи и замены
Заменяющий:
-
Описание стандарта
ГОСТ Р 71033-2023 Лифты. Направляющие для кабин и противовесов. Основные параметры и размеры
Страницы стандарта



























