ГОСТ Р 71106-2024 Конструкции для удаления дымовых газов. Общие методы испытаний дымоходных систем
ГОСТ Р
Скачать ГОСТ в PDF или DOC бесплатно
Основная информация
Обозначение:
ГОСТ Р 71106-2024
Статус:
Действует
Тип:
ГОСТ Р
Название русское:
Конструкции для удаления дымовых газов. Общие методы испытаний дымоходных систем
Название английское:
Chimneys. General test methods for system chimneys
Даты и сроки
Дата издания:
06-11-24
Дата введения в действие:
07-01-24
Дата завершения срока действия:
-
Применение и описание
Область и условия применения:
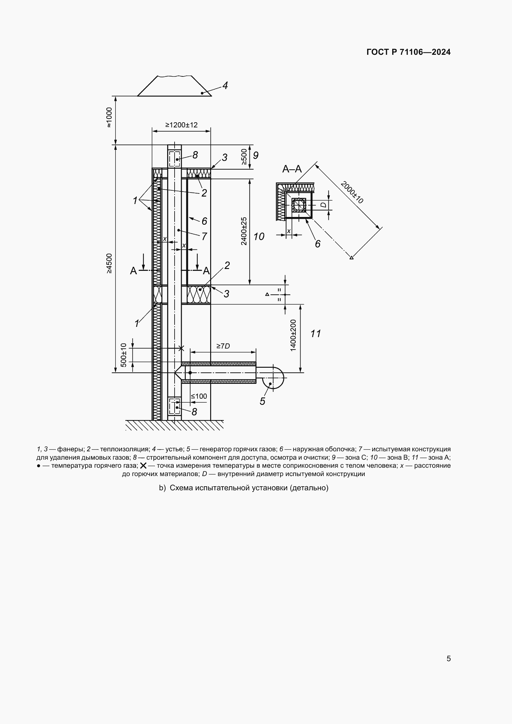
Настоящий стандарт устанавливает методы испытаний, не зависящие от используемых материалов, для всех без исключения дымоходных систем. Они могут быть использованы для всех продуктов для отвода дымовых газов
Связи и замены
Заменяющий:
-
Описание стандарта
ГОСТ Р 71106-2024 Конструкции для удаления дымовых газов. Общие методы испытаний дымоходных систем
Страницы стандарта

































































