ГОСТ Р 71127-2023 Нефтяная и газовая промышленность. Средства защиты строительных конструкций от воздействия криогенных сред. Общие требования. Методы испытаний
ГОСТ Р
Скачать ГОСТ в PDF или DOC бесплатно
Основная информация
Обозначение:
ГОСТ Р 71127-2023
Статус:
Действует
Тип:
ГОСТ Р
Название русское:
Нефтяная и газовая промышленность. Средства защиты строительных конструкций от воздействия криогенных сред. Общие требования. Методы испытаний
Название английское:
Oil and gas industry. Means of protection of building structures from the impact of cryogenic environments. General requirements. Test methods
Даты и сроки
Дата издания:
12-25-23
Дата введения в действие:
04-01-24
Дата завершения срока действия:
-
Применение и описание
Область и условия применения:
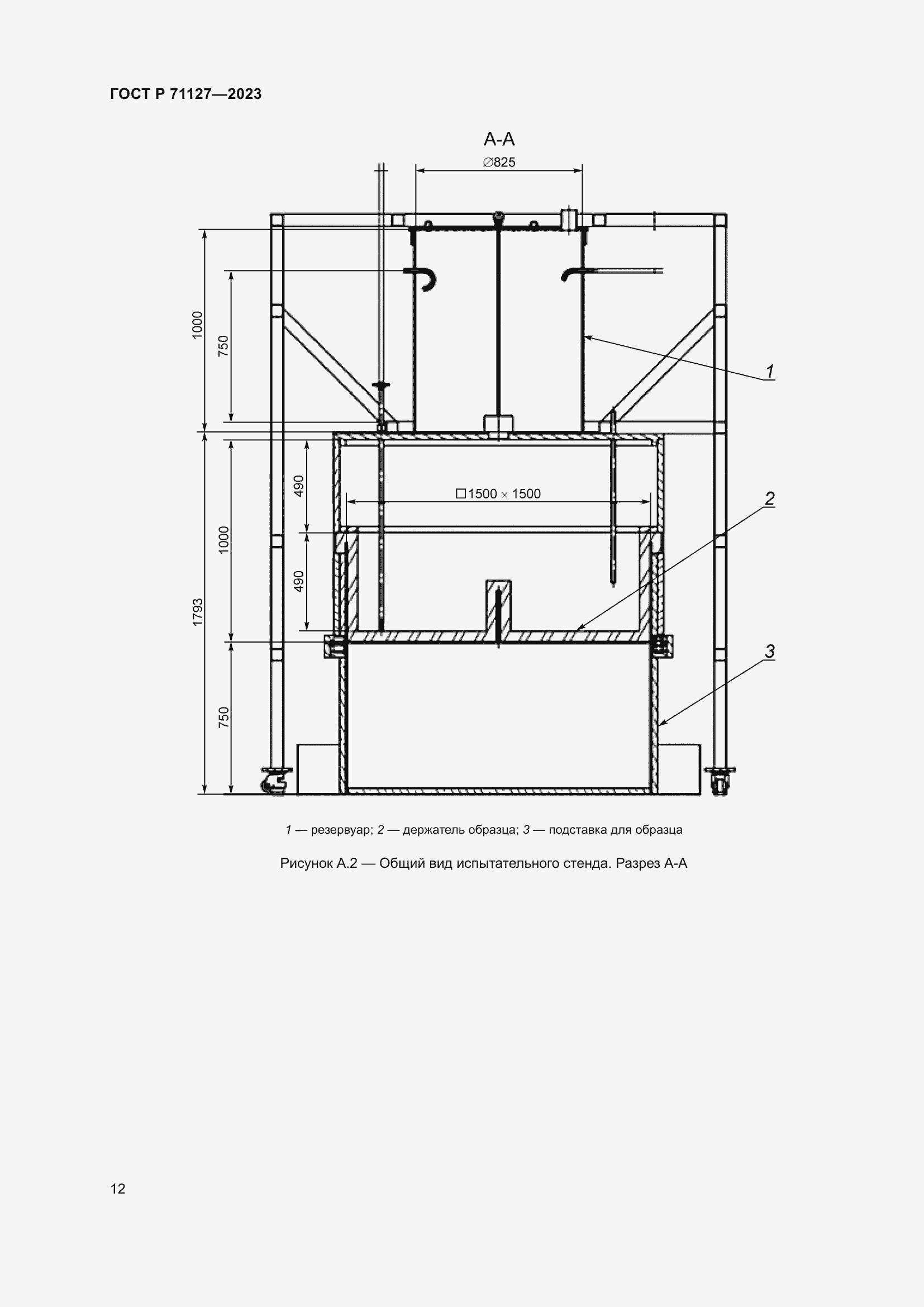
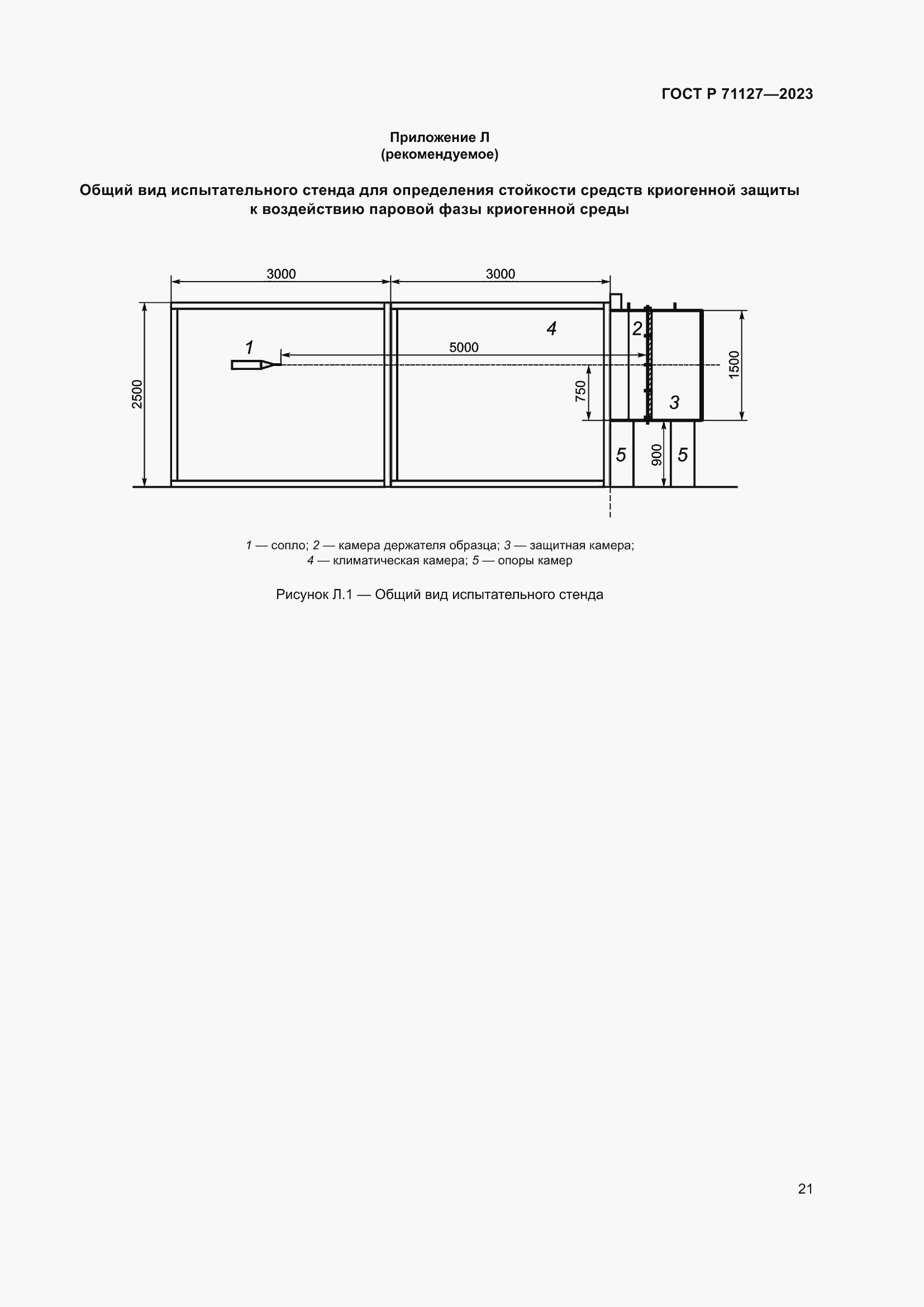
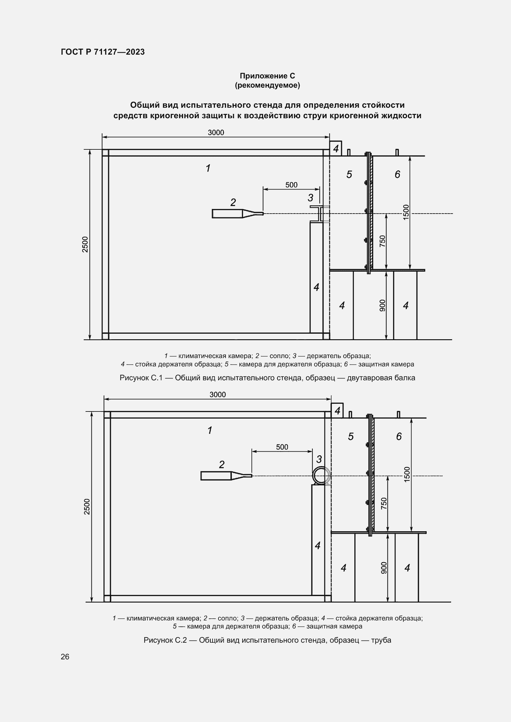
Настоящий стандарт устанавливает общие требования к средствам защиты строительных конструкций от пролива криогенных сред, а также методы испытаний на определение их стойкости к воздействию жидкой, паровой фазы и струи выбранной криогенной среды
Связи и замены
Заменяющий:
-
Описание стандарта
ГОСТ Р 71127-2023 Нефтяная и газовая промышленность. Средства защиты строительных конструкций от воздействия криогенных сред. Общие требования. Методы испытаний
Страницы стандарта



































