ГОСТ Р 71616-2024 Машины землеройные. Полигон для испытания высокоавтоматизированных землеройных и дорожно-строительных машин. Технические требования
ГОСТ Р
Скачать ГОСТ в PDF или DOC бесплатно
Основная информация
Обозначение:
ГОСТ Р 71616-2024
Статус:
Действует
Тип:
ГОСТ Р
Название русское:
Машины землеройные. Полигон для испытания высокоавтоматизированных землеройных и дорожно-строительных машин. Технические требования
Название английское:
Earth moving machines. Testing ground for highly automated earth-moving and road-building machines. Technical requirements
Даты и сроки
Дата издания:
09-27-24
Дата введения в действие:
01-01-25
Дата завершения срока действия:
-
Применение и описание
Область и условия применения:
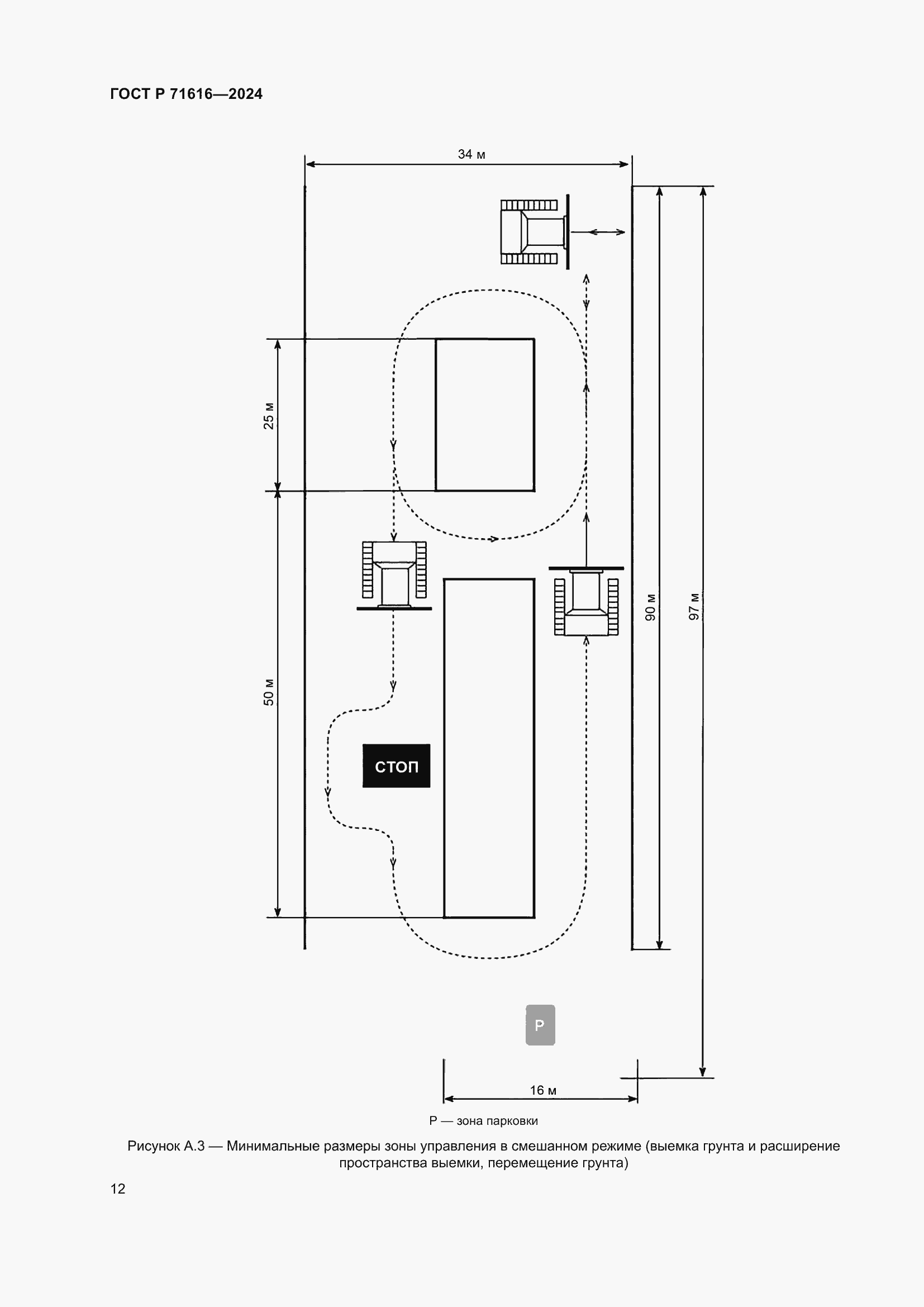
Настоящий стандарт устанавливает технические требования к испытательным полигонам для проведения испытаний высокоавтоматизированных землеройных и дорожно-строительных машин. Настоящий стандарт распространяется для испытательных организаций при создании, функционировании, а также при подготовке к аккредитации в качестве аккредитованного полигона для проведения испытаний высокоавтоматизированных землеройных и дорожно-строительных машин и для органов по аккредитации при проведении инспекционного контроля деятельности испытательных полигонов
Связи и замены
Заменяющий:
-
Описание стандарта
ГОСТ Р 71616-2024 Машины землеройные. Полигон для испытания высокоавтоматизированных землеройных и дорожно-строительных машин. Технические требования
Страницы стандарта























