ГОСТ Р 71659-2024 Диафрагмы жесткости железобетонные безопалубочного формования. Технические условия
ГОСТ Р
Скачать ГОСТ в PDF или DOC бесплатно
Основная информация
Обозначение:
ГОСТ Р 71659-2024
Статус:
Действует
Тип:
ГОСТ Р
Название русское:
Диафрагмы жесткости железобетонные безопалубочного формования. Технические условия
Название английское:
Stiffening diaphragms reinforced concrete of formless molding. Technical specifications
Даты и сроки
Дата издания:
10-22-24
Дата введения в действие:
11-01-24
Дата завершения срока действия:
-
Применение и описание
Область и условия применения:
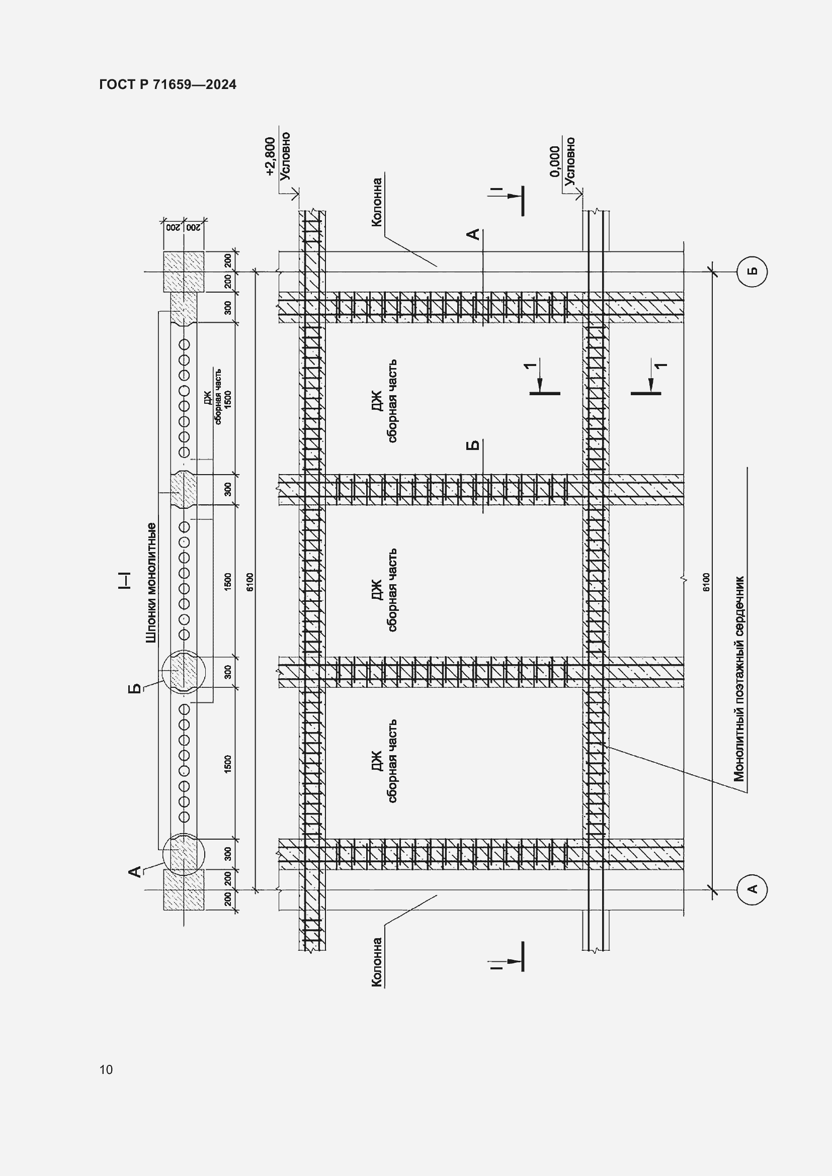
Настоящий стандарт распространяется на железобетонные детали диафрагм жесткости, изготовляемые методом непрерывного формования на длинных стендах из тяжелого бетона (далее – детали диафрагм жесткости), предназначенные для использования в сборно-монолитных каркасах жилых и общественных зданий, а также производственных, административных и бытовых зданий промышленных предприятий нормального уровня ответственности по ГОСТ 27751
Связи и замены
Заменяющий:
-
Описание стандарта
ГОСТ Р 71659-2024 Диафрагмы жесткости железобетонные безопалубочного формования. Технические условия
Страницы стандарта



















