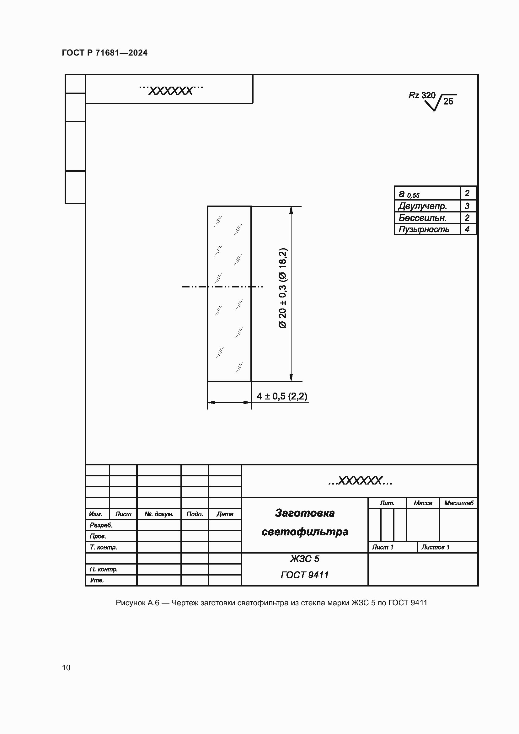
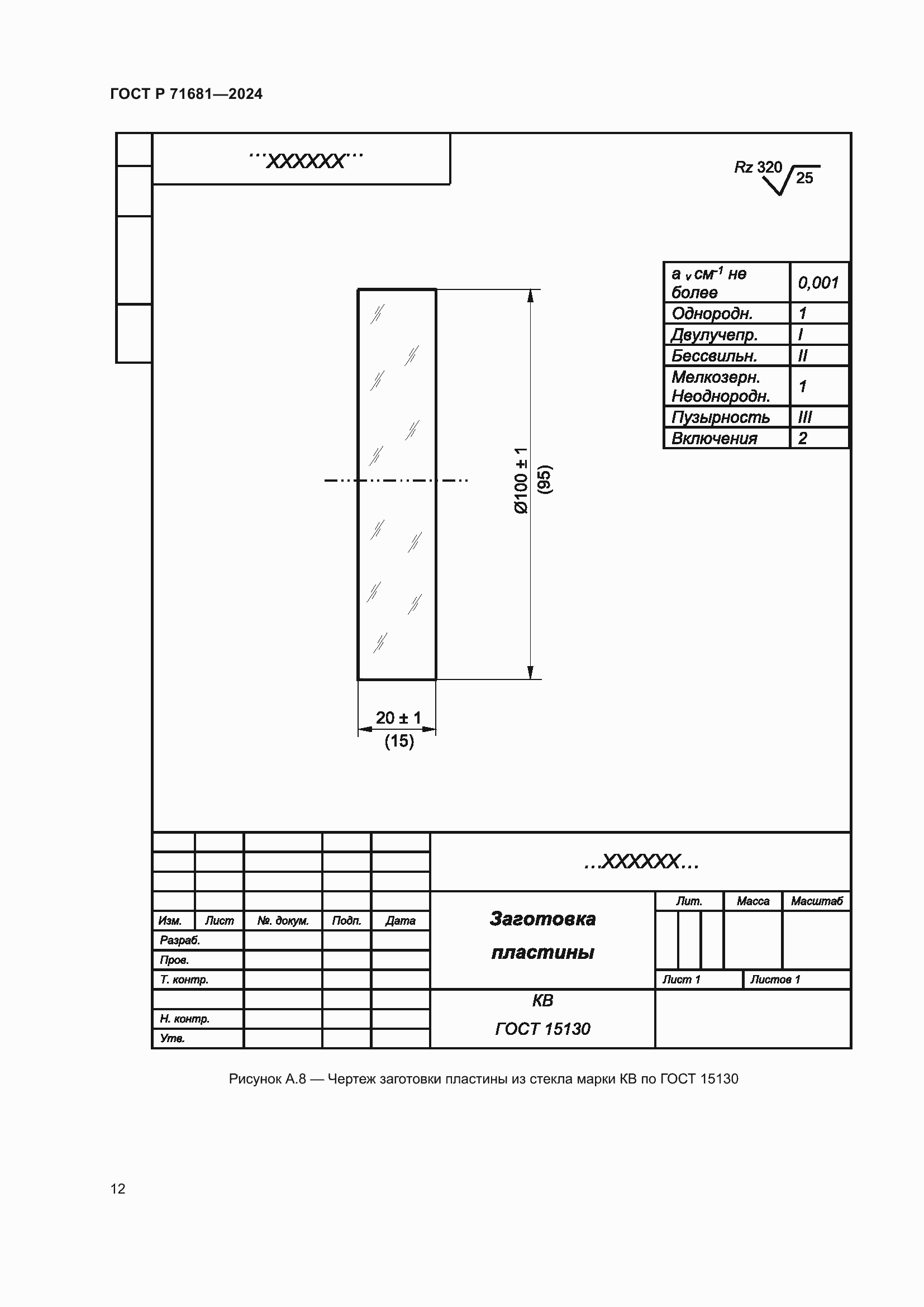
ГОСТ Р 71681-2024 Оптика и фотоника. Правила выполнения чертежей заготовок оптических деталей
ГОСТ Р
Скачать ГОСТ в PDF или DOC бесплатно
Основная информация
Обозначение:
ГОСТ Р 71681-2024
Статус:
Действует
Тип:
ГОСТ Р
Название русское:
Оптика и фотоника. Правила выполнения чертежей заготовок оптических деталей
Название английское:
Optics and photonics. Rules for making drawings of blanks of optical details
Даты и сроки
Дата издания:
10-21-24
Дата введения в действие:
01-01-25
Дата завершения срока действия:
-
Применение и описание
Область и условия применения:
Настоящий стандарт распространяется на заготовки оптических деталей (далее – заготовки) и устанавливает правила выполнения чертежей
Связи и замены
Заменяющий:
-
Описание стандарта
ГОСТ Р 71681-2024 Оптика и фотоника. Правила выполнения чертежей заготовок оптических деталей
Страницы стандарта















