ГОСТ Р 71912-2024 Плиты парапетные железобетонные для производственных зданий. Технические условия
ГОСТ Р
Скачать ГОСТ в PDF или DOC бесплатно
Основная информация
Обозначение:
ГОСТ Р 71912-2024
Статус:
Действует
Тип:
ГОСТ Р
Название русское:
Плиты парапетные железобетонные для производственных зданий. Технические условия
Название английское:
Coping units of precast concrete for industrial buildings. Specifications
Даты и сроки
Дата издания:
01-21-25
Дата введения в действие:
03-01-25
Дата завершения срока действия:
-
Применение и описание
Область и условия применения:
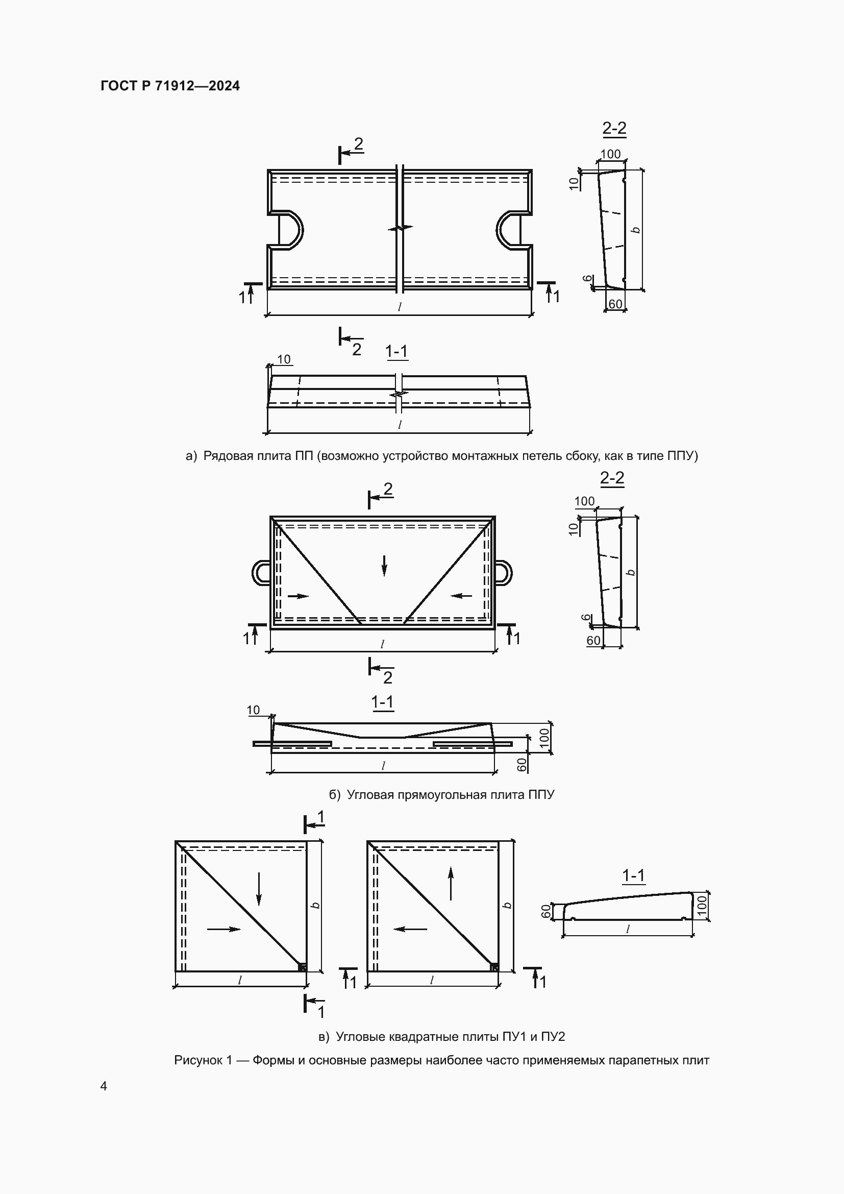
Настоящий стандарт устанавливает технические требования, методы контроля и испытаний, правила приемки, транспортирования и хранения железобетонных парапетных плит для производственных и вспомогательных зданий промышленных и сельскохозяйственных предприятий. Настоящий стандарт распространяется на парапетные железобетонные плиты, изготовляемые из тяжелого и легкого конструкционного бетона и предназначаемые для покрытия парапетов
Связи и замены
Заменяющий:
-
Описание стандарта
ГОСТ Р 71912-2024 Плиты парапетные железобетонные для производственных зданий. Технические условия
Страницы стандарта











