ГОСТ Р 72025-2025 Ведомости заказа изделий судостроения. Требования к разработке и содержанию
ГОСТ Р
Скачать ГОСТ в PDF или DOC бесплатно
Основная информация
Обозначение:
ГОСТ Р 72025-2025
Статус:
Действует
Тип:
ГОСТ Р
Название русское:
Ведомости заказа изделий судостроения. Требования к разработке и содержанию
Название английское:
Shipbuilding products ordering sheets. Requirements for development and content
Даты и сроки
Дата введения в действие:
07-01-25
Дата завершения срока действия:
-
Применение и описание
Область и условия применения:
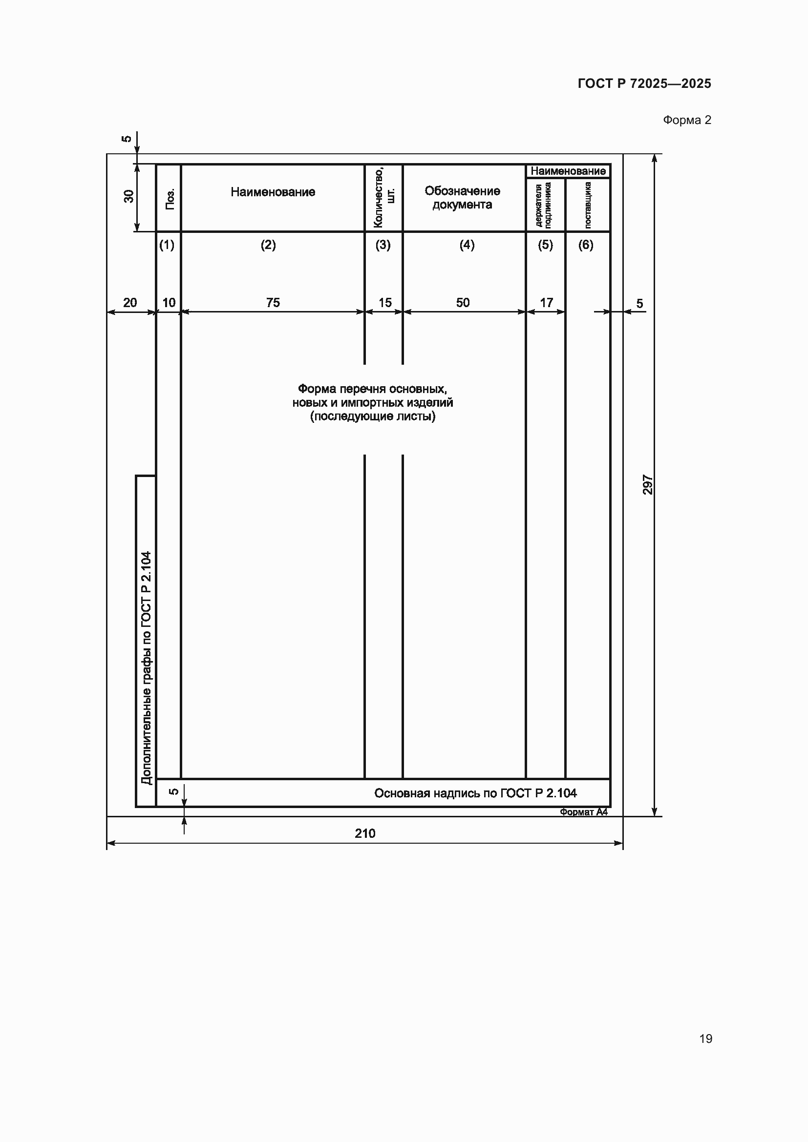
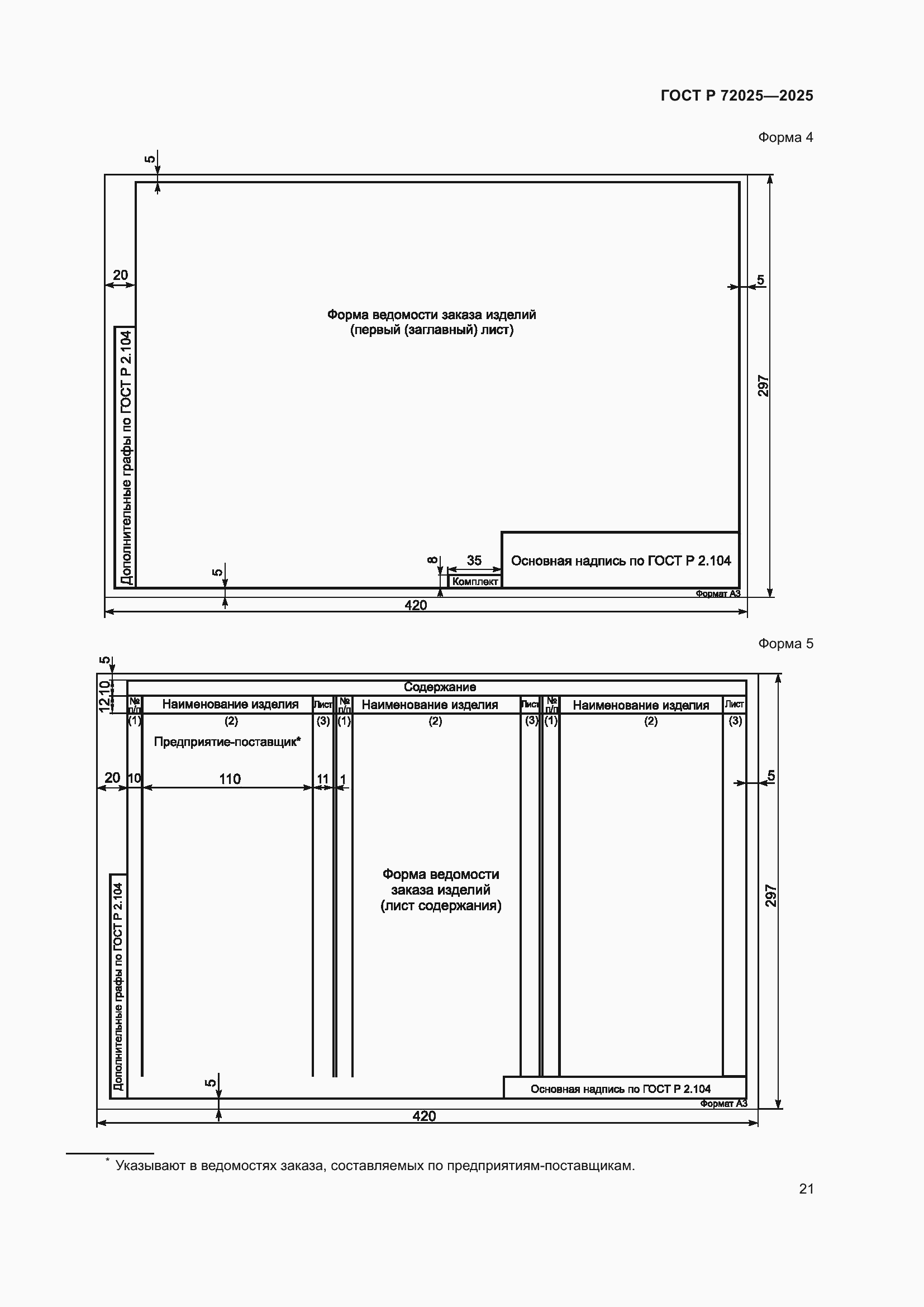
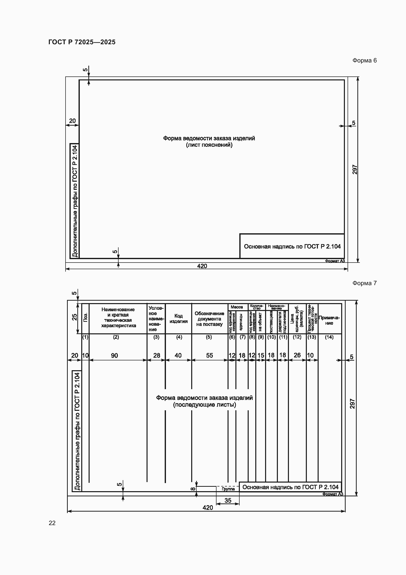
Настоящий стандарт устанавливает требования к разработке и содержанию: - ведомостей заказа изделий, поставляемых для надводных самоходных и несамоходные судов, катеров, плавучих сооружений (включая железобетонных) и плавучих средств, подводных лодок и аппаратов гражданского назначения (далее — суда), содержащих номенклатуру судового комплектующего оборудования, механизмов и изделий; - ведомостей снабжения инвентарным имуществом судов; - перечней основных, новых и импортных изделий и перечней ведомостей заказа; - ведомостей заказа изделий для технического обеспечения судов и систем технического обеспечения безопасными условиями труда. Настоящий стандарт распространяется на создаваемые, переоборудуемые, модернизируемые и ремонтируемые суда
Связи и замены
Заменяющий:
-
Описание стандарта
ГОСТ Р 72025-2025 Ведомости заказа изделий судостроения. Требования к разработке и содержанию
Страницы стандарта







































