ГОСТ Р 72038-2025 Единая энергетическая система и изолированно работающие энергосистемы. Релейная защита и автоматика автотрансформаторов (трансформаторов) классом напряжения 110–220 кВ. Испытания
ГОСТ Р
Скачать ГОСТ в PDF или DOC бесплатно
Основная информация
Обозначение:
ГОСТ Р 72038-2025
Статус:
Действует
Тип:
ГОСТ Р
Название русское:
Единая энергетическая система и изолированно работающие энергосистемы. Релейная защита и автоматика автотрансформаторов (трансформаторов) классом напряжения 110–220 кВ. Испытания
Название английское:
United power system and isolated power systems. Relay protection and automation of autotransformers (transformers) at voltage class 110–220 kV. Testing
Даты и сроки
Дата издания:
05-16-25
Дата введения в действие:
06-01-25
Дата завершения срока действия:
-
Применение и описание
Область и условия применения:
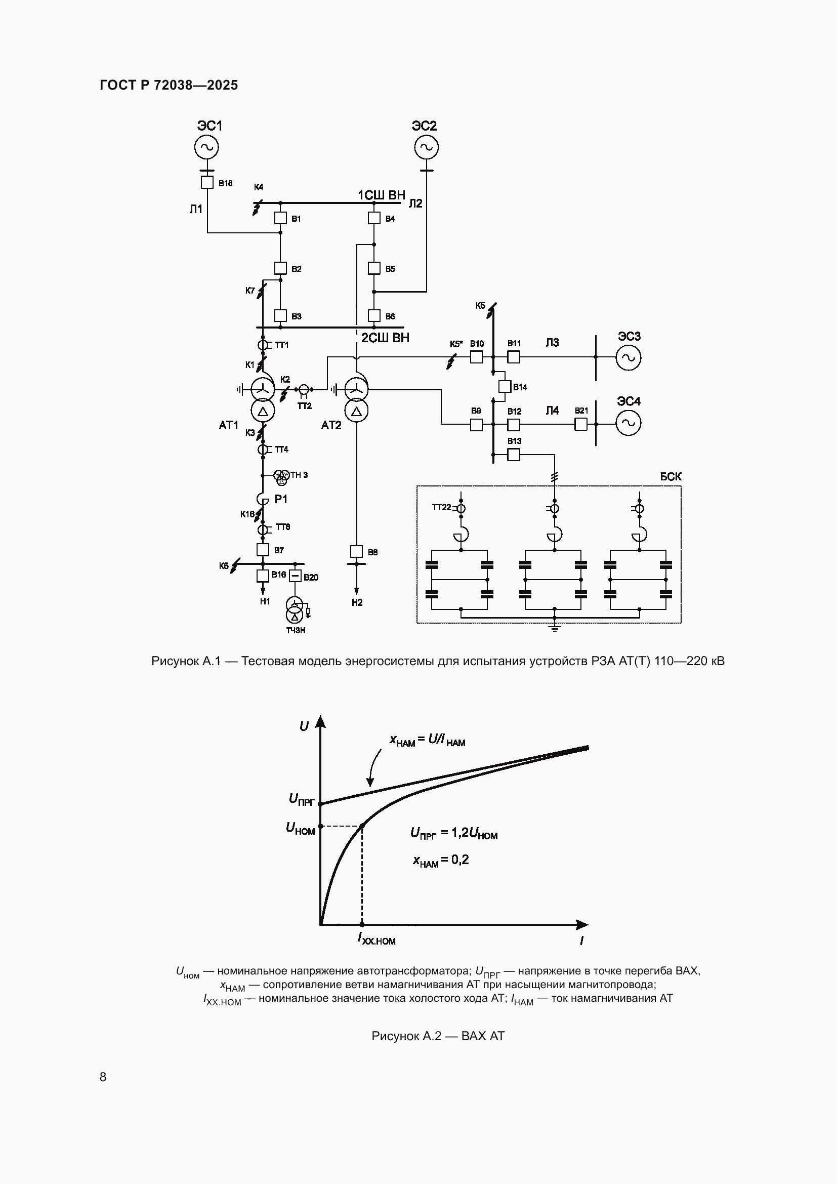
Настоящий стандарт устанавливает порядок и методику проведения испытаний микропроцессорных устройств, реализующих функции релейной защиты и автоматики автотрансформаторов (трансформаторов) классом напряжения 110–220 кВ (далее – устройства РЗА АТ(Т) 110–220 кВ) для подтверждения их соответствия функциональным требованиям, предъявляемым ГОСТ Р 58983 за исключением требований к ступенчатым защитам. Испытания ступенчатых защит АТ(Т) 110-220 кВ и выше на соответствие требованиям ГОСТ Р 58887 выполняют в соответствии с ГОСТ Р 71527. Настоящий стандарт не определяет порядок и методику испытаний устройств РЗА АТ(Т) 110–220 кВ на соответствие требованиям к работе таких устройств в переходных режимах, сопровождающихся насыщением трансформаторов тока. Требования настоящего стандарта предназначены для организаций, осуществляющих деятельность по разработке, изготовлению, созданию, модернизации устройств релейной защиты и автоматики, разработке алгоритмов функционирования устройств релейной защиты и автоматики, субъекта оперативно-диспетчерского управления в электроэнергетике, субъектов электроэнергетики и потребителей электрической энергии, владеющих на праве собственности или ином законном основании объектами по производству электрической энергии, объектами электросетевого хозяйства и (или) энергопринимающими установками, входящими в состав электроэнергетической системы или присоединяемыми к ней, проектных и научно-исследовательских организаций
Связи и замены
Заменяющий:
-
Описание стандарта
ГОСТ Р 72038-2025 Единая энергетическая система и изолированно работающие энергосистемы. Релейная защита и автоматика автотрансформаторов (трансформаторов) классом напряжения 110–220 кВ. Испытания
Страницы стандарта







































