ГОСТ Р МЭК 62196-2-2013 Вилки, штепсельные розетки, соединители и вводы для транспортных средств. Кондуктивная зарядка для электромобилей. Часть 2. Требования размерной совместимости и взаимозаменяемости для штыревых разъемов и арматуры сети переменного тока
ГОСТ Р МЭК
Скачать ГОСТ в PDF или DOC бесплатно
Основная информация
Обозначение:
ГОСТ Р МЭК 62196-2-2013
Статус:
Отменен
Тип:
ГОСТ Р МЭК
Название русское:
Вилки, штепсельные розетки, соединители и вводы для транспортных средств. Кондуктивная зарядка для электромобилей. Часть 2. Требования размерной совместимости и взаимозаменяемости для штыревых разъемов и арматуры сети переменного тока
Название английское:
Plugs, socket-outlets, vehicle connectors and vehicle inlets. Conductive charging of electric vehicles. Part 2. Dimensional compatibility and interchangeability requirements for a.c. pin and contact-tube accessories
Даты и сроки
Дата издания:
09-01-14
Дата введения в действие:
09-01-14
Дата завершения срока действия:
01-01-23
Применение и описание
Область и условия применения:
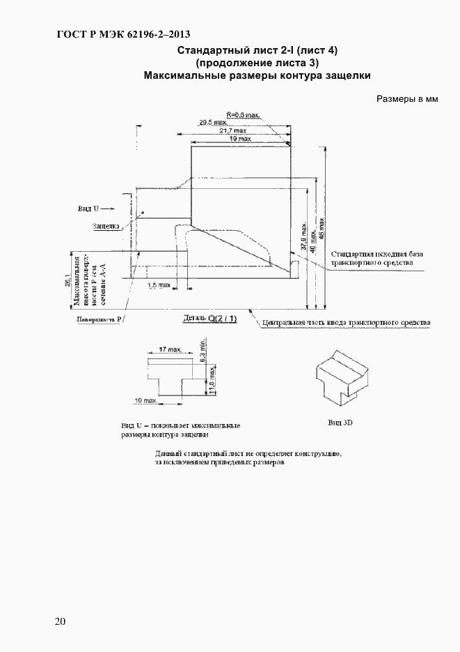
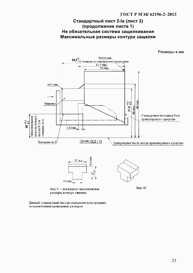
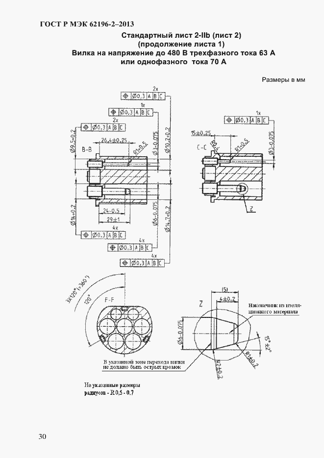
Настоящий стандарт распространяется на вилки, штепсельные розетки, переносные розетки и вводы транспортных средств со штырями и контактными гнездами стандартизованных конфигураций, рассчитанные на паспортное номинальное рабочее напряжение не более 500 В переменного тока частотой 50-60 Гц и номинальный ток не более 63 А для трехфазной сети или 70 А - для однофазной, применяемые в кондуктивной (проводной) зарядке электромобилей. Настоящий стандарт охватывает устройства базового интерфейса источника питания транспортных средств по МЭК 62196-1, предназначенные для применения в цепях кондуктивных зарядных систем по МЭК 61851-1:2010. Понятие электромобили (EV) распространяется на все дорожные транспортные средства, в том числе гибридные дорожные транспортные средства (PHEV), которые получают всю или часть энергии от бортовых батарей
Связи и замены
Заменяющий:
-
Описание стандарта
ГОСТ Р МЭК 62196-2-2013 Вилки, штепсельные розетки, соединители и вводы для транспортных средств. Кондуктивная зарядка для электромобилей. Часть 2. Требования размерной совместимости и взаимозаменяемости для штыревых разъемов и арматуры сети переменного тока
Страницы стандарта































































