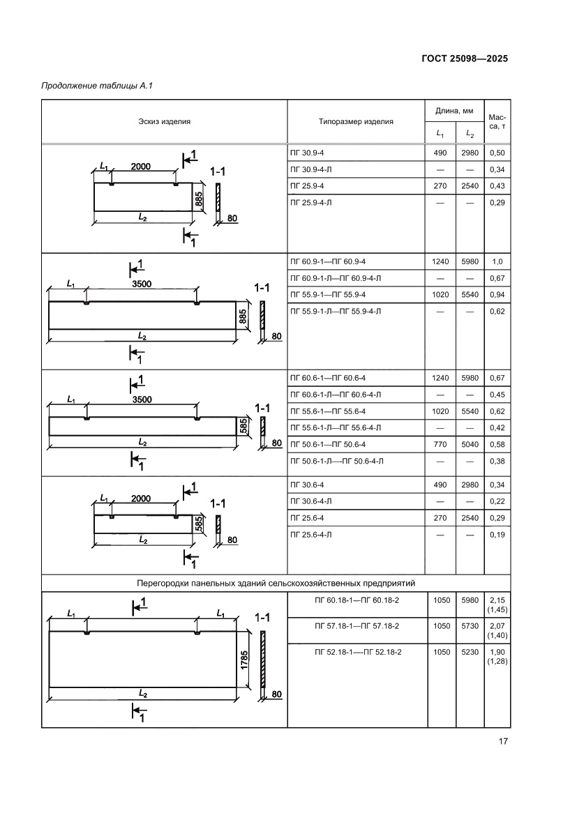
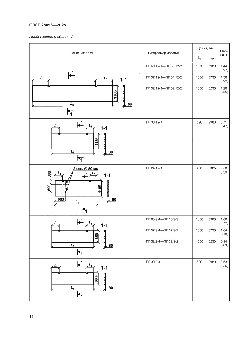
ГОСТ 25098-2025 Панели перегородок железобетонные для зданий промышленных и сельскохозяйственных предприятий. Технические условия
Межгосударственный стандарт
Скачать ГОСТ в PDF или DOC бесплатно
Основная информация
Обозначение:
ГОСТ 25098-2025
Статус:
Действует
Название русское:
Панели перегородок железобетонные для зданий промышленных и сельскохозяйственных предприятий. Технические условия
Название английское:
Reinforced concrete panels for partitions in industrial and agricultural buildings. Specifications
Даты и сроки
Дата введения в действие:
01-01-26
Описание стандарта
ГОСТ 25098-2025 Панели перегородок железобетонные для зданий промышленных и сельскохозяйственных предприятий. Технические условия
Страницы стандарта























