ГОСТ 35289-2025 Цементы напрягающие. Технические условия
Межгосударственный стандарт
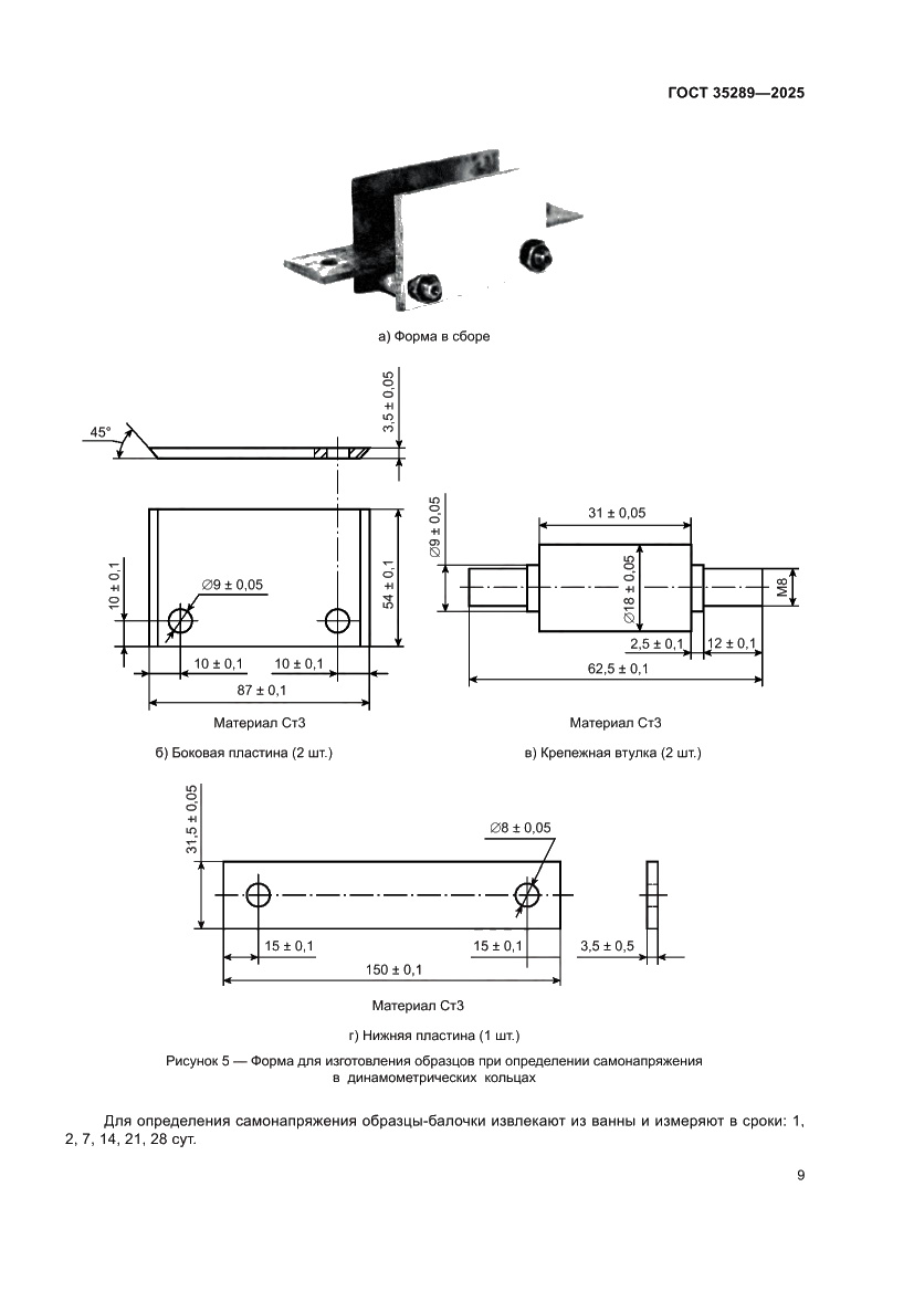
Скачать ГОСТ в PDF или DOC бесплатно
Основная информация
Обозначение:
ГОСТ 35289-2025
Статус:
Принят
Название русское:
Цементы напрягающие. Технические условия
Название английское:
Self-stressing. Specifications
Даты и сроки
Дата введения в действие:
09-01-26
Описание стандарта
ГОСТ 35289-2025 Цементы напрягающие. Технические условия
Страницы стандарта















