ГОСТ 33543-2015 Автомобильные транспортные средства. Камеры тормозные пневматических приводов. Технические требования и методы испытаний
ГОСТ
Скачать ГОСТ в PDF или DOC бесплатно
Основная информация
Обозначение:
ГОСТ 33543-2015
Статус:
Действует
Тип:
ГОСТ
Название русское:
Автомобильные транспортные средства. Камеры тормозные пневматических приводов. Технические требования и методы испытаний
Название английское:
Motor vehicles. Chambers of vehicles pneumatic brake controls. Technical requirements and test methods
Даты и сроки
Дата регистрации:
10-27-15
Дата издания:
05-26-16
Дата введения в действие:
04-01-17
Применение и описание
Область и условия применения:
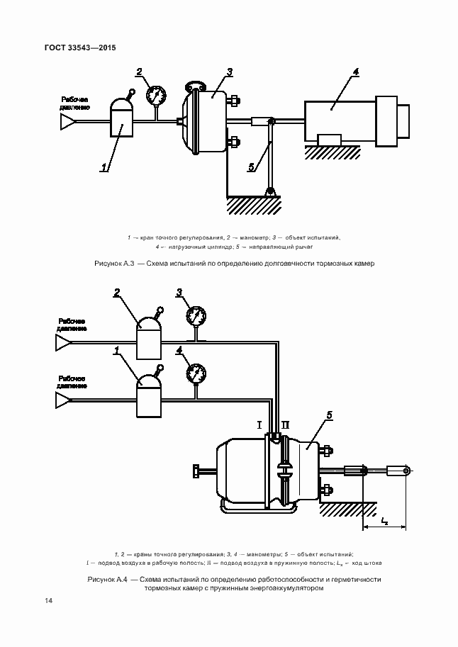
Настоящий стандарт распространяется на тормозные мембранные (диафрагменные) камеры (далее - тормозные камеры), в том числе с пружинными энергоаккумуляторами (в сборе), предназначенные для создания усилия в тормозных механизмах автотранспортных средств (далее - АТС), относящихся к классификации [1] с пневматическим приводом тормозов с рабочим давлением сжатого воздуха до 0,8 МПа. Тормозные камеры предназначены для эксплуатации в макроклиматических районах с умеренным (У) и сухим или влажным тропическим (Т) климатом в условиях категории размещения 1 по ГОСТ 15150. Применение тормозных камер в макроклиматических районах с холодным климатом (ХЛ) по ГОСТ 15150, а также для других целей должно быть согласовано с изготовителем в установленном порядке
Описание стандарта
ГОСТ 33543-2015 Автомобильные транспортные средства. Камеры тормозные пневматических приводов. Технические требования и методы испытаний
Страницы стандарта






















