ГОСТ Р 71455-2024 Планки автосцепного устройства грузовых вагонов. Технические требования
ГОСТ Р
Скачать ГОСТ в PDF или DOC бесплатно
Основная информация
Обозначение:
ГОСТ Р 71455-2024
Статус:
Действует
Тип:
ГОСТ Р
Название русское:
Планки автосцепного устройства грузовых вагонов. Технические требования
Название английское:
Slats of the automatic coupling device of the freight cars. Technical requirements
Даты и сроки
Дата издания:
07-05-24
Дата введения в действие:
10-01-24
Дата завершения срока действия:
-
Применение и описание
Область и условия применения:
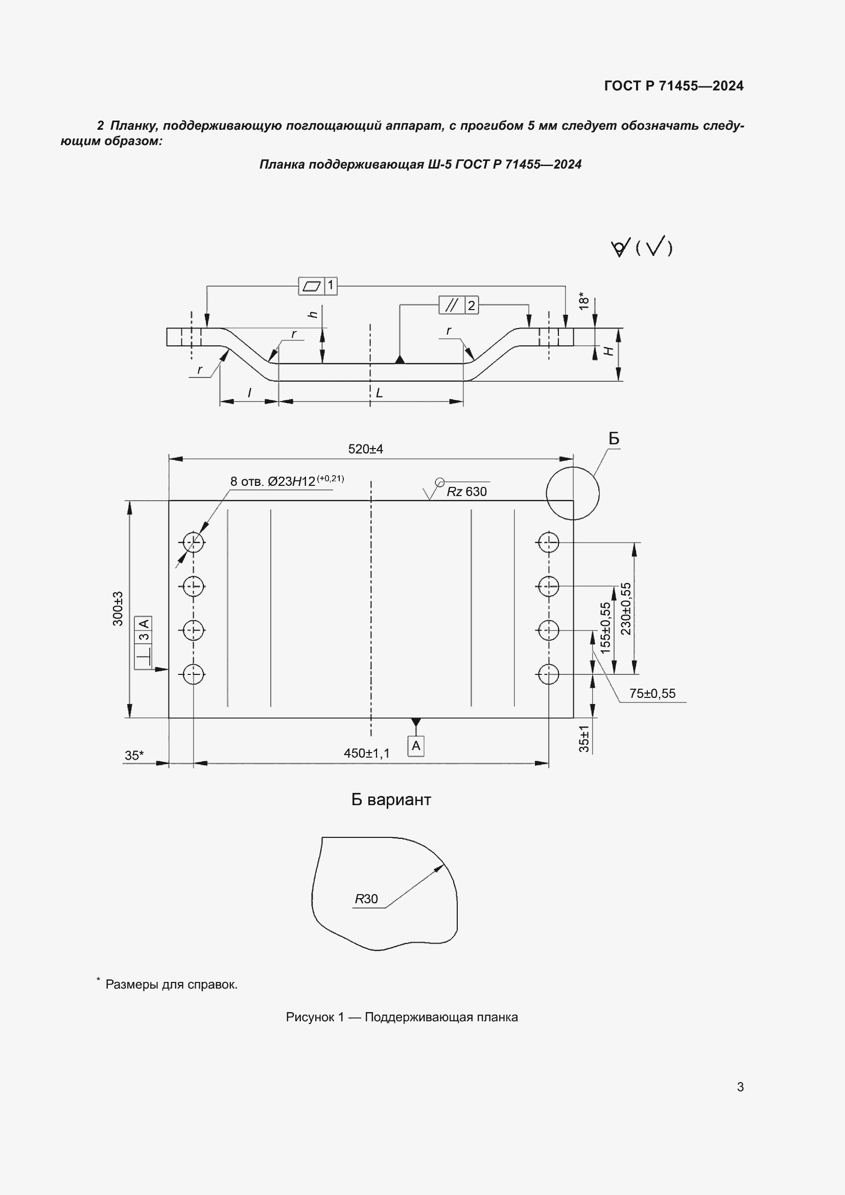
Настоящий стандарт распространяется на поддерживающие планки поглощающих аппаратов автосцепных устройств грузовых вагонов (далее – поддерживающие планки) и планки против истирания стенок хребтовой балки грузовых вагонов (далее – планки против истирания) и устанавливает конструктивные требования, требования к материалам, покрытиям, комплектности, маркировке, транспортированию и хранению
Связи и замены
Заменяющий:
-
Описание стандарта
ГОСТ Р 71455-2024 Планки автосцепного устройства грузовых вагонов. Технические требования
Страницы стандарта















