ГОСТ Р 71689-2024 Скобы и кольца увязочные грузовых вагонов. Технические требования
ГОСТ Р
Скачать ГОСТ в PDF или DOC бесплатно
Основная информация
Обозначение:
ГОСТ Р 71689-2024
Статус:
Действует
Тип:
ГОСТ Р
Название русское:
Скобы и кольца увязочные грузовых вагонов. Технические требования
Название английское:
Staples and lasting rings of the freight cars. Technical requirements
Даты и сроки
Дата издания:
11-26-24
Дата введения в действие:
01-01-25
Дата завершения срока действия:
-
Применение и описание
Область и условия применения:
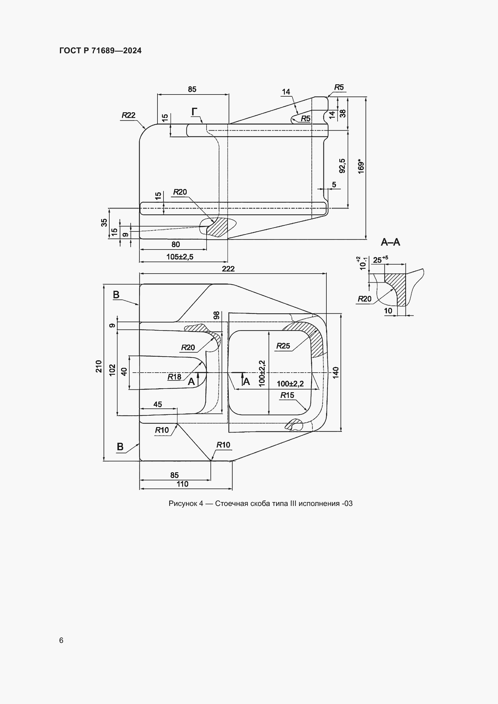
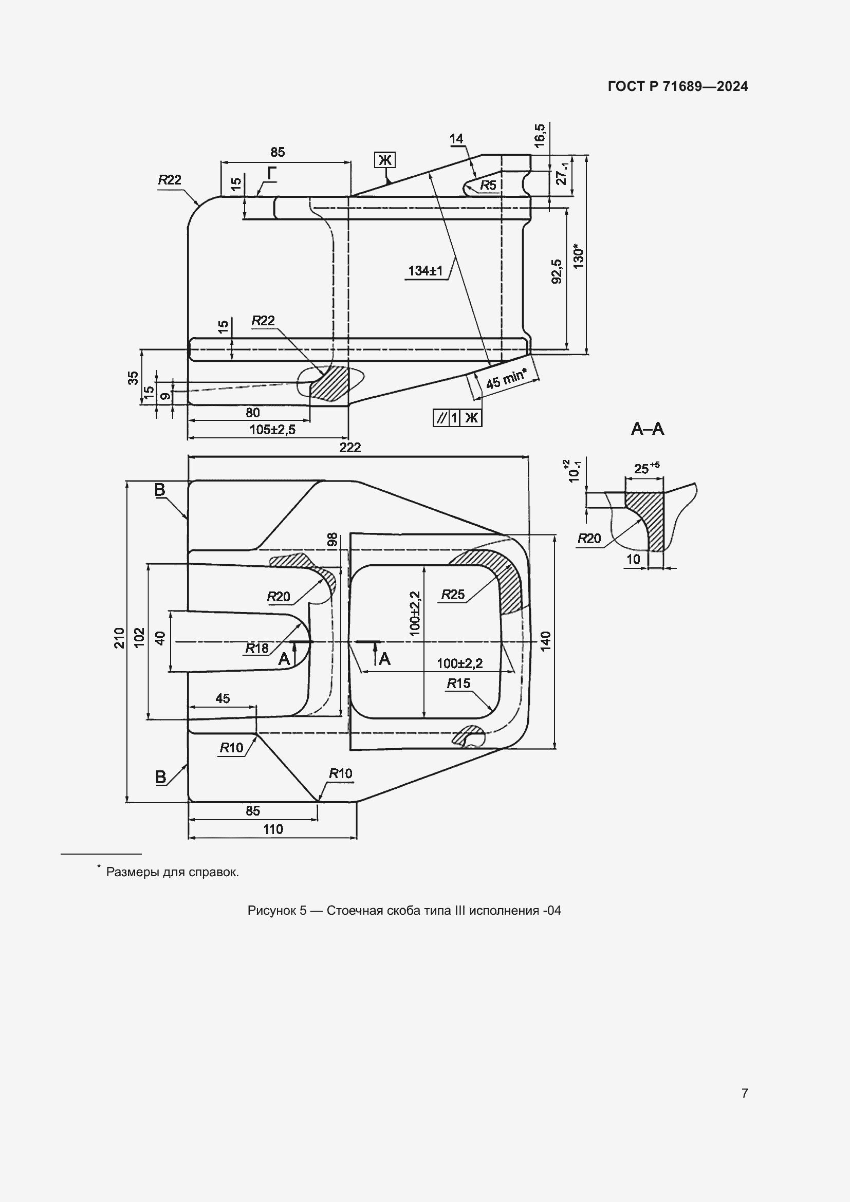
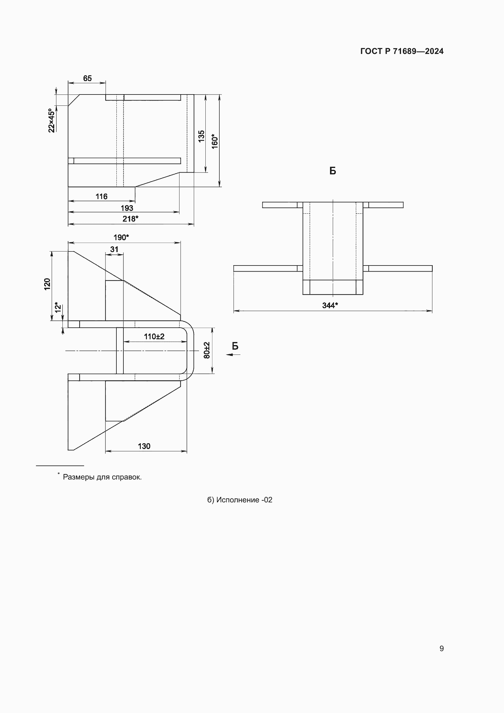
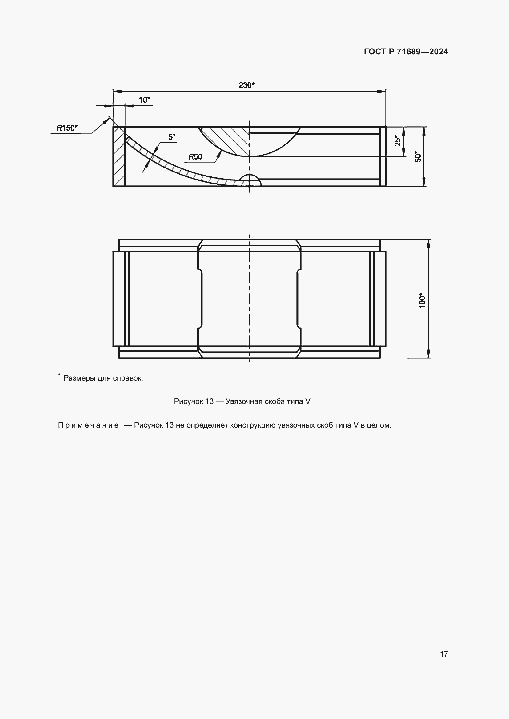
Настоящий стандарт распространяется на стоечные скобы, лесные скобы (скобы лесных стоек) и увязочные скобы, а также увязочные кольца, предназначенные для оборудования вагонов-платформ (далее – платформы) и полувагонов с целью увязки и крепления грузов, а также на устройства для закрепления грузов внутри крытых вагонов. Настоящий стандарт устанавливает конструктивные требования к указанным элементам, а также требования к материалам, покрытиям, комплектности, маркировке, транспортированию и хранению
Связи и замены
Заменяющий:
-
Описание стандарта
ГОСТ Р 71689-2024 Скобы и кольца увязочные грузовых вагонов. Технические требования
Страницы стандарта































