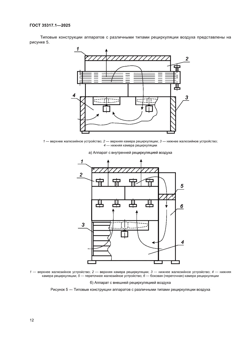
ГОСТ 35317.1-2025 Аппараты воздушного охлаждения. Часть 1. Общие технические требования
Межгосударственный стандарт
Скачать ГОСТ в PDF или DOC бесплатно
Основная информация
Обозначение:
ГОСТ 35317.1-2025
Статус:
Действует
Название русское:
Аппараты воздушного охлаждения. Часть 1. Общие технические требования
Название английское:
Air-cooled heat exchangers. Part 1. General technical requirements
Даты и сроки
Дата введения в действие:
12-30-25
Описание стандарта
ГОСТ 35317.1-2025 Аппараты воздушного охлаждения. Часть 1. Общие технические требования
Страницы стандарта

























































































