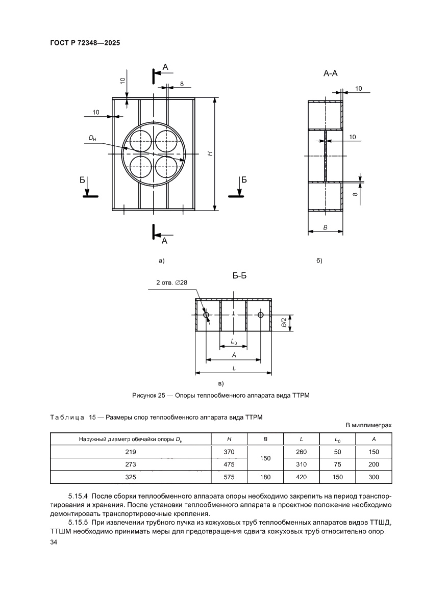
ГОСТ Р 72348-2025 Аппараты теплообменные типа «труба в трубе». Общие технические условия
Межгосударственный стандарт
Скачать ГОСТ в PDF или DOC бесплатно
Основная информация
Обозначение:
ГОСТ Р 72348-2025
Статус:
Принят
Название русское:
Аппараты теплообменные типа «труба в трубе». Общие технические условия
Название английское:
Pipe-in-pipe-type heat exchangers. General technical requirements
Даты и сроки
Дата введения в действие:
02-01-26
Описание стандарта
ГОСТ Р 72348-2025 Аппараты теплообменные типа «труба в трубе». Общие технические условия
Страницы стандарта

































































