ГОСТы >
11.180.01 Средства помощи для инвалидов и других лиц с ограничениями жизнедеятельности >
ГОСТ Р ИСО 17966-2022
ГОСТ Р ИСО 17966-2022 Вспомогательные средства для личной гигиены лиц с физическими недостатками. Требования и методы испытания
ГОСТ Р ИСО
Скачать ГОСТ в PDF или DOC бесплатно
Основная информация
Обозначение:
ГОСТ Р ИСО 17966-2022
Статус:
Действует
Тип:
ГОСТ Р ИСО
Название русское:
Вспомогательные средства для личной гигиены лиц с физическими недостатками. Требования и методы испытания
Название английское:
Assistive products for personal hygiene that support users. Requirements and test methods
Даты и сроки
Дата издания:
12-13-22
Дата введения в действие:
06-01-23
Дата завершения срока действия:
-
Применение и описание
Область и условия применения:
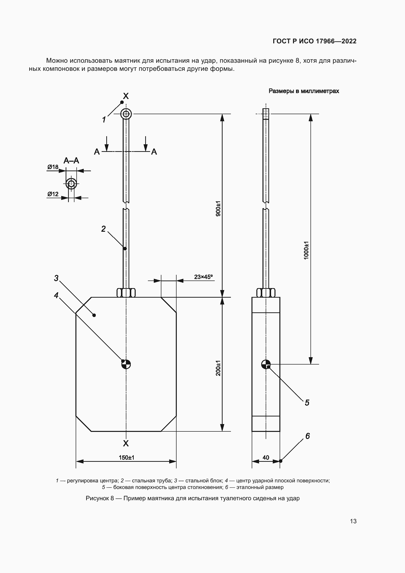
Настоящий стандарт устанавливает требования и связанные с ними методы испытаний вспомогательных средств личной гигиены (APPHs), которые оказывают поддержку пользователям и предназначены производителям для облегчения или компенсации ограничения физических возможностей гражданам. Также в него включены аспекты рабочей среды и безопасности для помощников. Настоящий стандарт устанавливает требования к безопасности и производительности APPHs при нормальном использовании, а также при прогнозируемом неправильном применении и выходе APPH из строя. Настоящий стандарт также определяет методы измерения усилий для контроля управления и ограничения сил, необходимые для некоторых операций
Связи и замены
Заменяющий:
-
Описание стандарта
ГОСТ Р ИСО 17966-2022 Вспомогательные средства для личной гигиены лиц с физическими недостатками. Требования и методы испытания
Страницы стандарта





























































































