ГОСТы >
13.220.40 Воспламеняемость, поведение материалов и продуктов при горении >
ГОСТ Р ИСО 9239-1-2014
ГОСТ Р ИСО 9239-1-2014 Испытания строительных материалов и изделий на пожарную опасность. Метод определения пожарной опасности напольных покрытий путем воздействия теплового потока радиационной панели
ГОСТ Р ИСО
Скачать ГОСТ в PDF или DOC бесплатно
Основная информация
Обозначение:
ГОСТ Р ИСО 9239-1-2014
Статус:
Действует
Тип:
ГОСТ Р ИСО
Название русское:
Испытания строительных материалов и изделий на пожарную опасность. Метод определения пожарной опасности напольных покрытий путем воздействия теплового потока радиационной панели
Название английское:
Reaction to fire tests for floorings. Method for determination of the burning behavior using a radiant heat source
Даты и сроки
Дата издания:
08-20-19
Дата введения в действие:
10-01-14
Дата завершения срока действия:
-
Применение и описание
Область и условия применения:
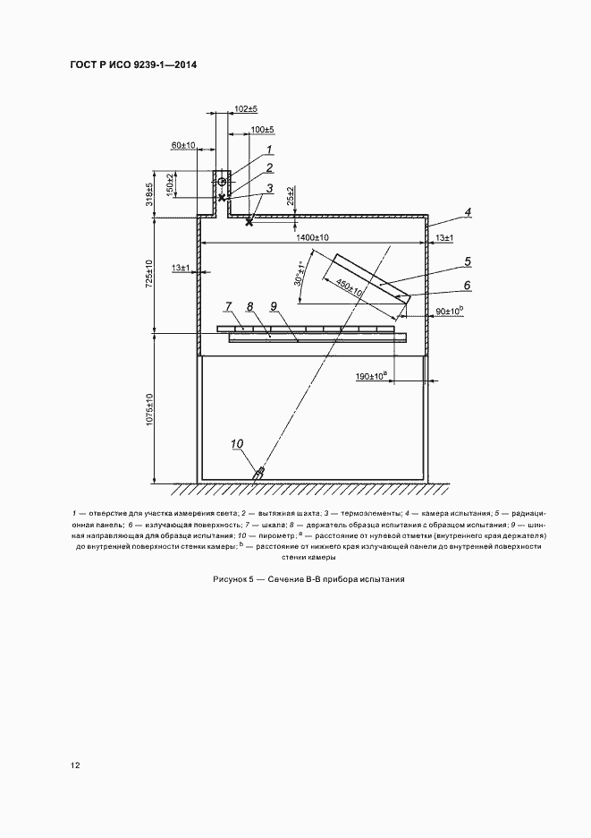
Настоящий стандарт описывает метод определения пожарной опасности напольных покрытий при горении под воздействием теплового потока и распространении пламени на горизонтально расположенных напольных покрытиях, которые подвергаются в испытательной камере воздействию падающего теплового потока и пламени горелки. При оценке дымообразующей способности материала необходимо использовать приложение А
Связи и замены
Заменяющий:
-
Описание стандарта
ГОСТ Р ИСО 9239-1-2014 Испытания строительных материалов и изделий на пожарную опасность. Метод определения пожарной опасности напольных покрытий путем воздействия теплового потока радиационной панели
Страницы стандарта


























