ГОСТ Р 53307-2009 Конструкции строительные. Противопожарные двери и ворота. Метод испытаний на огнестойкость
ГОСТ Р
Скачать ГОСТ в PDF или DOC бесплатно
Основная информация
Обозначение:
ГОСТ Р 53307-2009
Статус:
Действует
Тип:
ГОСТ Р
Название русское:
Конструкции строительные. Противопожарные двери и ворота. Метод испытаний на огнестойкость
Название английское:
Elements of building constructions. Fire doors and gates. Fire resistance test method
Даты и сроки
Дата издания:
07-12-19
Дата введения в действие:
05-01-09
Дата завершения срока действия:
-
Применение и описание
Область и условия применения:
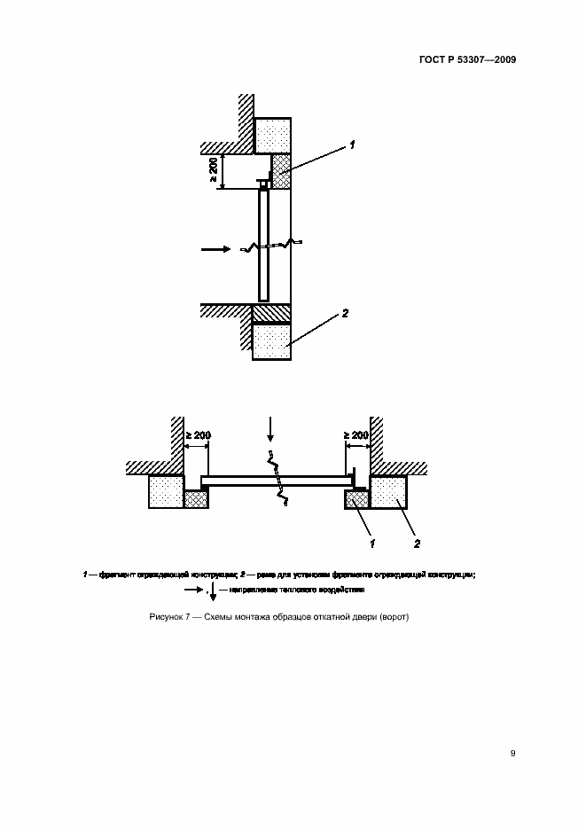
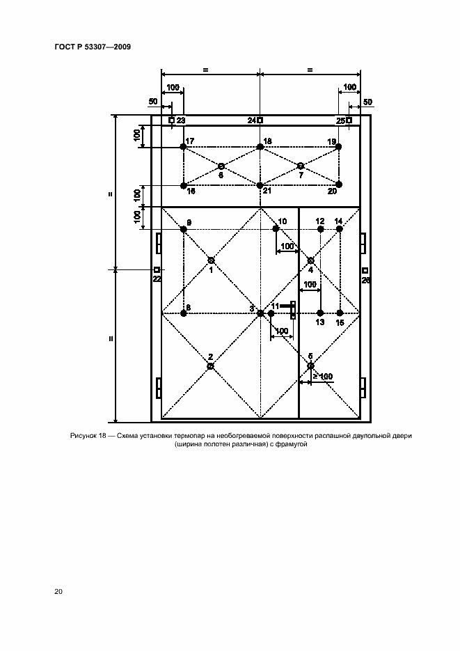
Настоящий стандарт устанавливает метод испытания на огнестойкость различных типов дверей, ворот и люков, предназначенных для заполнения проемов в противопожарных преградах. Стандарт может применяться при проведении сертификационных испытаний данной продукции. Настоящий стандарт не распространяется на испытания: - дверей с площадью светопрозрачного заполнения 25 % и более от площади дверного проема в свету; - дверей, ворот и люков на дымо- и газопроницаемость; - дверей шахт лифтов; - клапанов и инженерного оборудования зданий; - конструкций заполнения проемов при прохождении через них конвейеров и транспортных лент
Связи и замены
Заменяющий:
-
Взамен:
ГОСТ 30247.2-97
Описание стандарта
ГОСТ Р 53307-2009 Конструкции строительные. Противопожарные двери и ворота. Метод испытаний на огнестойкость
Страницы стандарта





































