ГОСТы >
13.220.40 Воспламеняемость, поведение материалов и продуктов при горении >
ГОСТ IEC 60695-11-2-2017
ГОСТ IEC 60695-11-2-2017 Испытания на пожароопасность. Часть 11-2. Испытательное пламя. Пламя предварительно подготовленной смеси мощностью 1 кВт. Аппаратура, руководство и порядок испытания на подтверждение соответствия
ГОСТ МЭК
Скачать ГОСТ в PDF или DOC бесплатно
Основная информация
Обозначение:
ГОСТ IEC 60695-11-2-2017
Статус:
Действует
Тип:
ГОСТ МЭК
Название русское:
Испытания на пожароопасность. Часть 11-2. Испытательное пламя. Пламя предварительно подготовленной смеси мощностью 1 кВт. Аппаратура, руководство и порядок испытания на подтверждение соответствия
Название английское:
Fire hazard testing. Part 11-2. Test flames. 1 kW nominal pre-mixed flame. Apparatus, confirmatory test arrangement and guidance
Даты и сроки
Дата регистрации:
11-30-17
Дата издания:
10-17-18
Дата введения в действие:
03-01-19
Применение и описание
Область и условия применения:
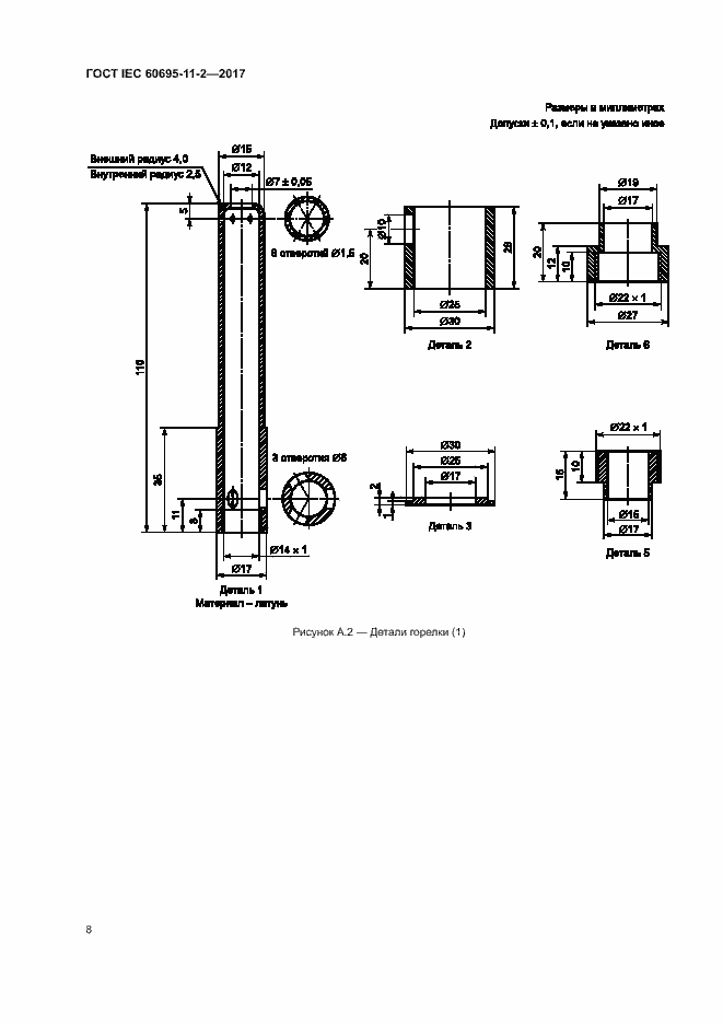
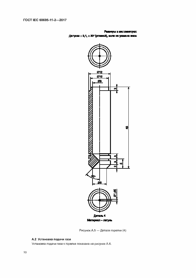
Настоящий стандарт устанавливает требования, предъявляемые к созданию и подтверждению соответствия испытательного пламени предварительно подготовленной смеси пропана и воздуха номинальной мощностью 1 кВт, используемого при проведении испытаний на пожароопасность
Описание стандарта
ГОСТ IEC 60695-11-2-2017 Испытания на пожароопасность. Часть 11-2. Испытательное пламя. Пламя предварительно подготовленной смеси мощностью 1 кВт. Аппаратура, руководство и порядок испытания на подтверждение соответствия
Страницы стандарта




















Приложение №1: Поправка к ГОСТ IEC 60695-11-2-2017 Обозначение: Поправка к ГОСТ IEC 60695-11-2-2017 Дата введения в действие: 16.04.2020
