ГОСТ Р 56077-2014 Методы аэродинамических испытаний конструкций и оборудования противодымной защиты зданий
ГОСТ Р
Скачать ГОСТ в PDF или DOC бесплатно
Основная информация
Обозначение:
ГОСТ Р 56077-2014
Статус:
Действует
Тип:
ГОСТ Р
Название русское:
Методы аэродинамических испытаний конструкций и оборудования противодымной защиты зданий
Название английское:
Methods of aerodynamic tests of the elements of engineering equipments smoke protection of buildings
Даты и сроки
Дата издания:
10-03-19
Дата введения в действие:
03-01-15
Дата завершения срока действия:
-
Применение и описание
Область и условия применения:
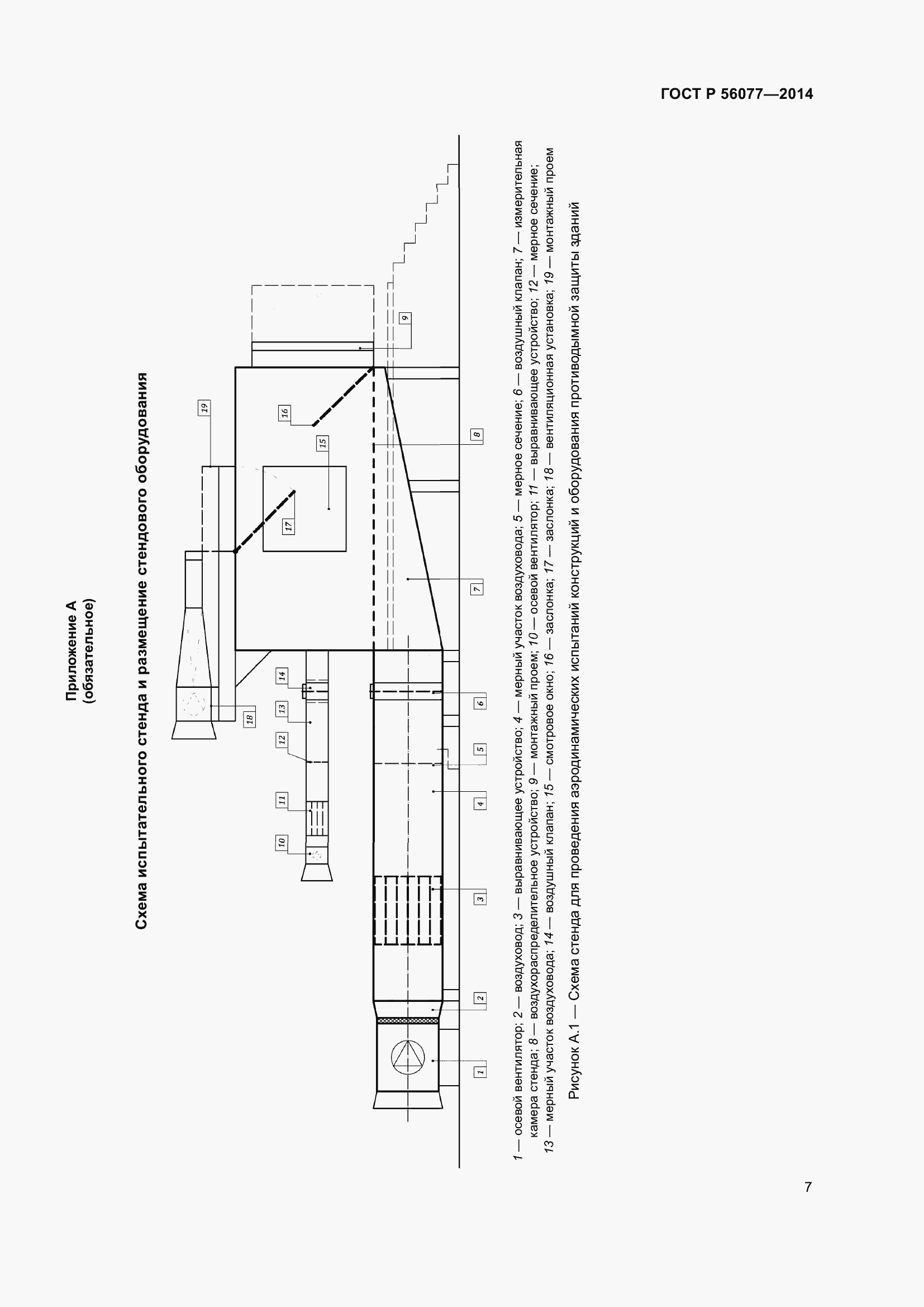
Настоящий стандарт устанавливает требования к методам аэродинамических испытаний следующих конструкций и оборудования противодымной защиты зданий: - дымовых люков систем вытяжной противодымной вентиляции с естественным побуждением тяги (далее - дымовых люков); - дверей противопожарных, дверей противопожарных в дымогазонепроницаемом исполнении, дверей шахт лифтов, дверей с ненормируемым пределом огнестойкости (далее - дверей различного функционального назначения); - нормально закрытых и нормально открытых противопожарных клапанов вентиляционных систем (далее - противопожарных клапанов). Цель испытаний по данному стандарту состоит в экспериментальном определении коэффициентов расхода дымовых люков и противопожарных клапанов и удельного сопротивления воздухопроницанию противопожарных клапанов и дверей различного функционального назначения
Связи и замены
Заменяющий:
-
Описание стандарта
ГОСТ Р 56077-2014 Методы аэродинамических испытаний конструкций и оборудования противодымной защиты зданий
Страницы стандарта















