ГОСТы >
13.220.40 Воспламеняемость, поведение материалов и продуктов при горении >
ГОСТ Р 59154-2020
ГОСТ Р 59154-2020 Материалы строительные. Метод испытания на пожарную опасность при термическом воздействии одиночного источника зажигания на строительные материалы, за исключением напольных покрытий
ГОСТ Р
Скачать ГОСТ в PDF или DOC бесплатно
Основная информация
Обозначение:
ГОСТ Р 59154-2020
Статус:
Действует
Тип:
ГОСТ Р
Название русское:
Материалы строительные. Метод испытания на пожарную опасность при термическом воздействии одиночного источника зажигания на строительные материалы, за исключением напольных покрытий
Название английское:
Building products. Reaction to fire test with thermal attack by a single burning item on building products, excluding floorings
Даты и сроки
Дата издания:
12-04-20
Дата введения в действие:
08-01-21
Дата завершения срока действия:
-
Применение и описание
Область и условия применения:
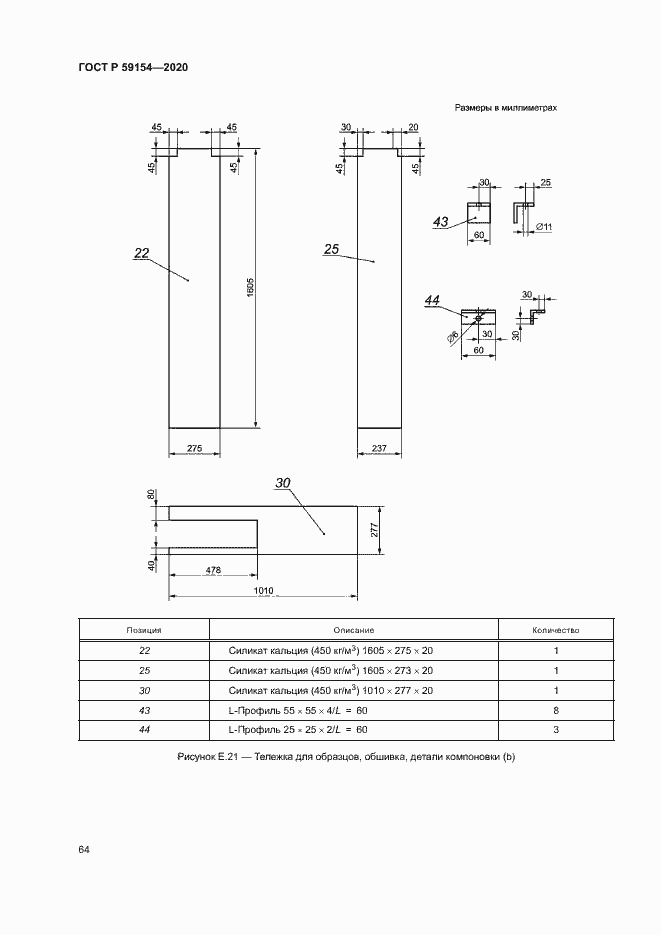
Настоящий стандарт устанавливает метод испытаний для определения параметров пожарной опасности строительных материалов при термическом воздействии одиночного источника зажигания (SBI, single burning item), за исключением напольных покрытий, а также исключая параметры пожарной опасности, перечисленные в таблице 1 Решения Европейской комиссии 2000/147/EC) В указанной таблице наряду с параметрами пожарной опасности, определяемыми SBI-методом, приведены параметры, также участвующие в установлении класса пожарной опасности строительного материала, но определяемые другими стандартными методами: негорючесть, теплота сгорания, воспламеняемость.). Обработку результатов испытаний проводят в соответствии с приложением А. Информация о точности методов испытаний приведена в приложении В. Методы градуировки даны в приложениях С и D, причем приложение С является обязательным
Связи и замены
Заменяющий:
-
Описание стандарта
ГОСТ Р 59154-2020 Материалы строительные. Метод испытания на пожарную опасность при термическом воздействии одиночного источника зажигания на строительные материалы, за исключением напольных покрытий
Страницы стандарта





















































































