ГОСТ 12.4.267-2014 Система стандартов безопасности труда. Одежда специальная для защиты от воздействия токсичных химических веществ. Метод определения стойкости к прониканию жидких химикатов, эмульсий и дисперсий с применением пульверизатора
ГОСТ
Скачать ГОСТ в PDF или DOC бесплатно
Основная информация
Обозначение:
ГОСТ 12.4.267-2014
Статус:
Действует
Тип:
ГОСТ
Название русское:
Система стандартов безопасности труда. Одежда специальная для защиты от воздействия токсичных химических веществ. Метод определения стойкости к прониканию жидких химикатов, эмульсий и дисперсий с применением пульверизатора
Название английское:
Occupational safety standards system. Special clothing for protection from toxic chemicals. Determination of resistance to penetration by sprayed liquid chemicals, emulsions and dispersions
Даты и сроки
Дата регистрации:
11-14-14
Дата издания:
10-25-19
Дата введения в действие:
12-01-15
Дата завершения срока действия:
-
Применение и описание
Область и условия применения:
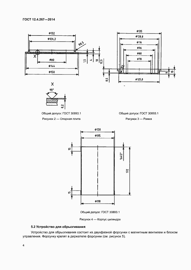
Настоящий стандарт устанавливает метод испытания сопротивления текстильных материалов проникновению брызг жидких химических веществ, эмульсий и дисперсий. Эти материалы предназначе-ны как для защитной одежды кратковременного использования, так и для защитной одежды многократного применения. Проникновение характеризуется отношением масс нанесенного и проникшего через образец материала испытательных химических веществ, выраженным в процентах. Механизм протекающего процесса проникновения (химический или физический), его количественные характеристики, примененный метод анализа зависят от природы испытательного химического вещества. Стандарт пригоден для целей сертификации
Связи и замены
Заменяющий:
-
Описание стандарта
ГОСТ 12.4.267-2014 Система стандартов безопасности труда. Одежда специальная для защиты от воздействия токсичных химических веществ. Метод определения стойкости к прониканию жидких химикатов, эмульсий и дисперсий с применением пульверизатора
Страницы стандарта














