ГОСТ 12.4.294-2015 Система стандартов безопасности труда. Средства индивидуальной защиты органов дыхания. Полумаски фильтрующие для защиты от аэрозолей. Общие технические условия
ГОСТ
Скачать ГОСТ в PDF или DOC бесплатно
Основная информация
Обозначение:
ГОСТ 12.4.294-2015
Статус:
Действует
Тип:
ГОСТ
Название русское:
Система стандартов безопасности труда. Средства индивидуальной защиты органов дыхания. Полумаски фильтрующие для защиты от аэрозолей. Общие технические условия
Название английское:
Occupational safety standards system. Respiratory protective devices. Filtering half masks to protect against particles. General specifications
Даты и сроки
Дата регистрации:
03-27-15
Дата издания:
09-30-19
Дата введения в действие:
06-01-16
Дата завершения срока действия:
-
Применение и описание
Область и условия применения:
Настоящий стандарт не распространяется на следующие средства индивидуальной защиты органов дыхания (СИЗОД): - пожарные; - военные; - авиационные; - для подводных работ
Связи и замены
Заменяющий:
-
Изменения и переиздания
Список изменений:
№0 от (рег. ) «Дата введения перенесена»
Описание стандарта
ГОСТ 12.4.294-2015 Система стандартов безопасности труда. Средства индивидуальной защиты органов дыхания. Полумаски фильтрующие для защиты от аэрозолей. Общие технические условия
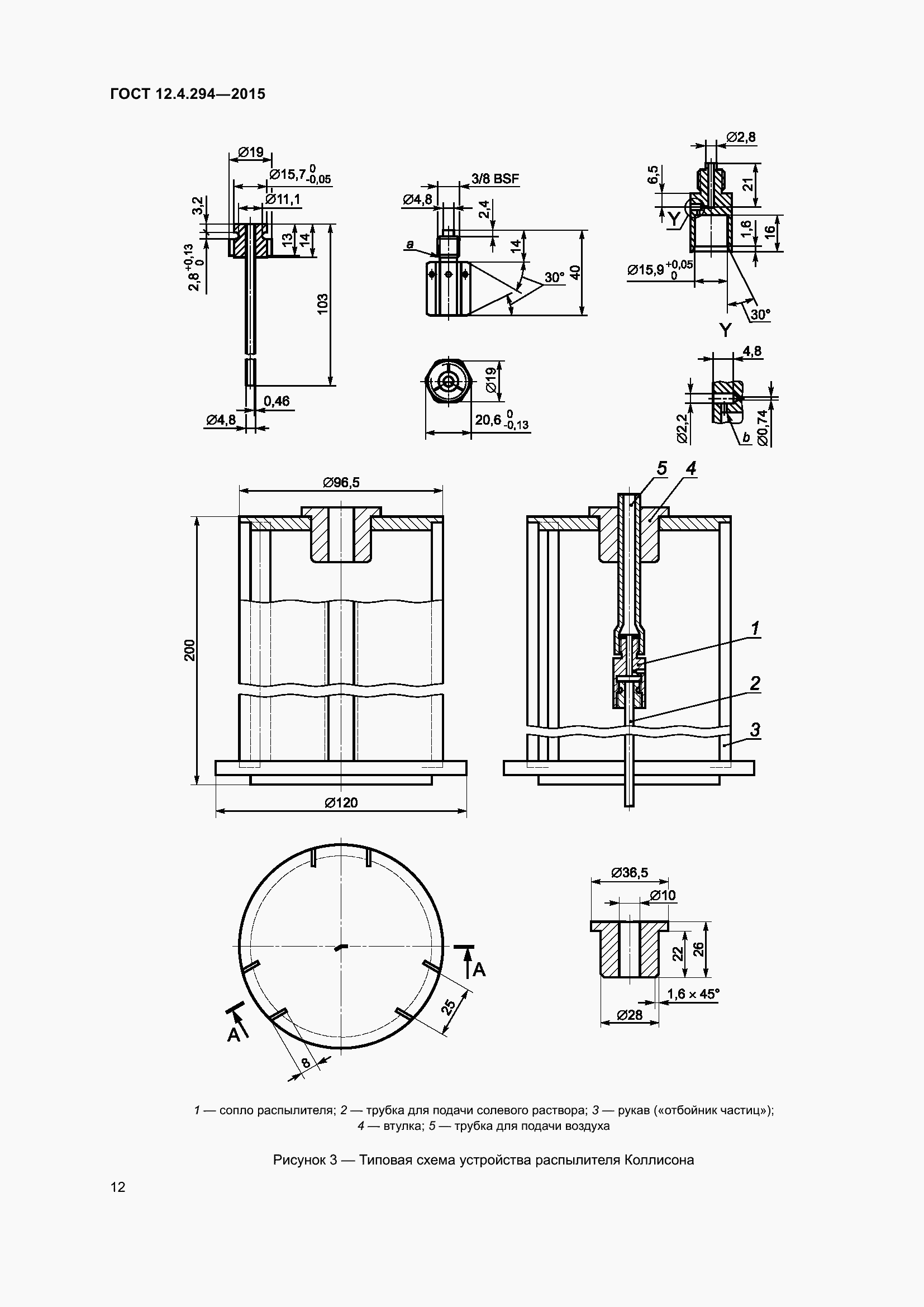
Страницы стандарта

































Приложение №1: Поправка к ГОСТ 12.4.294-2015 Обозначение: Поправка к ГОСТ 12.4.294-2015 Дата введения в действие: 21.08.2018

Приложение №2: Поправка к ГОСТ 12.4.294-2015 Обозначение: Поправка к ГОСТ 12.4.294-2015 Дата введения в действие: 13.07.2023
