ГОСТ Р ЕН 13274-1-2009 Система стандартов безопасности труда. Средства индивидуальной защиты органов дыхания. Методы испытаний. Часть 1. Определение коэффициента подсоса и коэффициента проникания через СИЗОД
ГОСТ Р ЕН
Скачать ГОСТ в PDF или DOC бесплатно
Основная информация
Обозначение:
ГОСТ Р ЕН 13274-1-2009
Статус:
Отменен
Тип:
ГОСТ Р ЕН
Название русское:
Система стандартов безопасности труда. Средства индивидуальной защиты органов дыхания. Методы испытаний. Часть 1. Определение коэффициента подсоса и коэффициента проникания через СИЗОД
Название английское:
Occupational safety standards system. Respiratory protective devices. Methods of test. Part 1. Determination of inward leakage and total inward leakage
Даты и сроки
Дата издания:
02-01-11
Дата введения в действие:
12-01-10
Дата завершения срока действия:
07-01-17
Применение и описание
Область и условия применения:
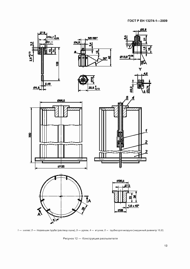
Настоящий стандарт распространяется на средства индивидуальной защиты органов дыхания (СИЗОД). Стандарт не распространяется на следующие типы СИЗОД: - пожарные; - военные; - медицинские; - авиационные
Связи и замены
Заменяющий:
-
Изменения и переиздания
Список изменений:
№0 от (рег. ) «Текстовое изменение; Изменено заглавие»
Описание стандарта
ГОСТ Р ЕН 13274-1-2009 Система стандартов безопасности труда. Средства индивидуальной защиты органов дыхания. Методы испытаний. Часть 1. Определение коэффициента подсоса и коэффициента проникания через СИЗОД
Страницы стандарта



















