ГОСТ IEC 61131-2-2012 Контроллеры программируемые. Часть 2. Требования к оборудованию и испытания
ГОСТ МЭК
Скачать ГОСТ в PDF или DOC бесплатно
Основная информация
Обозначение:
ГОСТ IEC 61131-2-2012
Статус:
Действует
Тип:
ГОСТ МЭК
Название русское:
Контроллеры программируемые. Часть 2. Требования к оборудованию и испытания
Название английское:
Programmable controllers. Part 2. Equipment requirements and tests
Даты и сроки
Дата регистрации:
12-03-12
Дата издания:
08-17-20
Дата введения в действие:
07-01-14
Дата завершения срока действия:
-
Применение и описание
Область и условия применения:
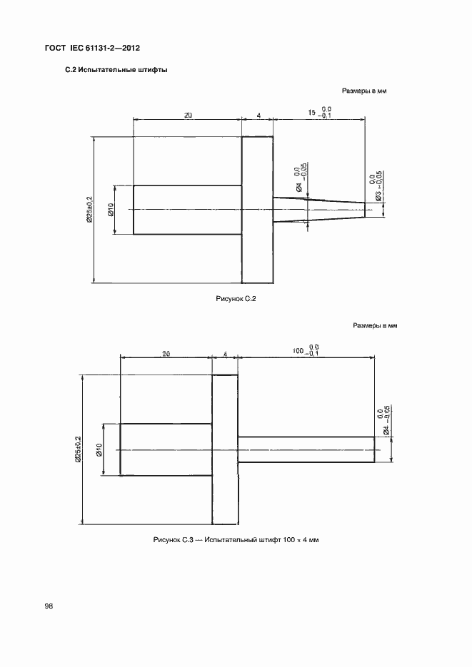
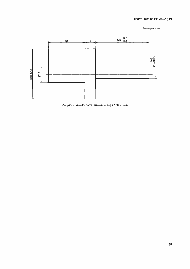
Настоящий стандарт устанавливает требования и соответствующие испытания для программируемых контроллеров (ПК) и связанных с ними периферийных устройств [например, инструментальные средства программирования и отладки (СПиО), человекомашинные интерфейсы (ЧМИ) и т. д.], которые предназначены для контроля и управления машинами и производственными процессами
Связи и замены
Заменяющий:
-
Описание стандарта
ГОСТ IEC 61131-2-2012 Контроллеры программируемые. Часть 2. Требования к оборудованию и испытания
Страницы стандарта
















































































































