ГОСТ Р 50827-95 Корпусы для аппаратов, устанавливаемые в стационарные электрические установки бытового и аналогичного назначения. Общие требования и методы испытаний
ГОСТ Р
Скачать ГОСТ в PDF или DOC бесплатно
Основная информация
Обозначение:
ГОСТ Р 50827-95
Статус:
Заменен
Тип:
ГОСТ Р
Название русское:
Корпусы для аппаратов, устанавливаемые в стационарные электрические установки бытового и аналогичного назначения. Общие требования и методы испытаний
Название английское:
Enclosures for accessories for household and similar fixed electrical installations. General requirements and methods of tests
Даты и сроки
Дата издания:
03-01-08
Дата введения в действие:
01-01-96
Дата завершения срока действия:
01-01-11
Применение и описание
Область и условия применения:
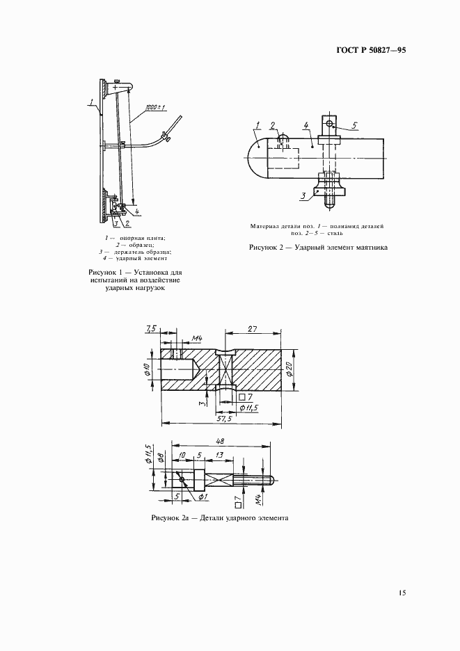
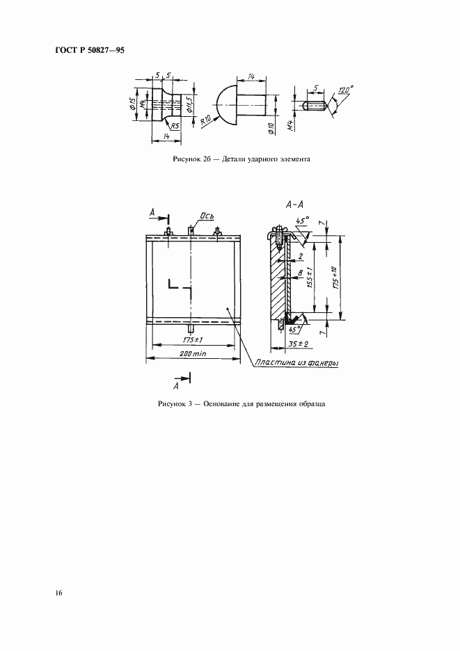
Настоящий стандарт распространяется на корпусы для встраивания выключателей, переключателей, штепсельных розеток, устройств защитного отключения и т.п. на номинальное напряжение не более 440 В, устанавливаемые в стационарные электрические установки бытового и аналогичного назначения и предназначенные для эксплуатации внутри помещений или на открытом воздухе. Положения настоящего стандарта могут быть распространены в качестве рекомендуемых на корпусы, устанавливаемые в электрические установки на номинальное напряжение до 1000 В. Корпусы в соответствии с настоящим стандартом предназначены для использования после монтажа при температуре окружающей среды до плюс 25 град. С с допустимым временным увеличением до плюс 35 град. С. Стандарт не распространяется на корпусы для встраивания аппаратов, содержащих элементы защиты от токов перегрузки и корпуса для систем сборных шин (шинопроводов)
Связи и замены
Заменяющий:
ГОСТ Р 50827.1-2009
Описание стандарта
ГОСТ Р 50827-95 Корпусы для аппаратов, устанавливаемые в стационарные электрические установки бытового и аналогичного назначения. Общие требования и методы испытаний
Страницы стандарта






















